RealtyDepotNY
Cell: 347-219-2037
Fax: 718-896-7020
























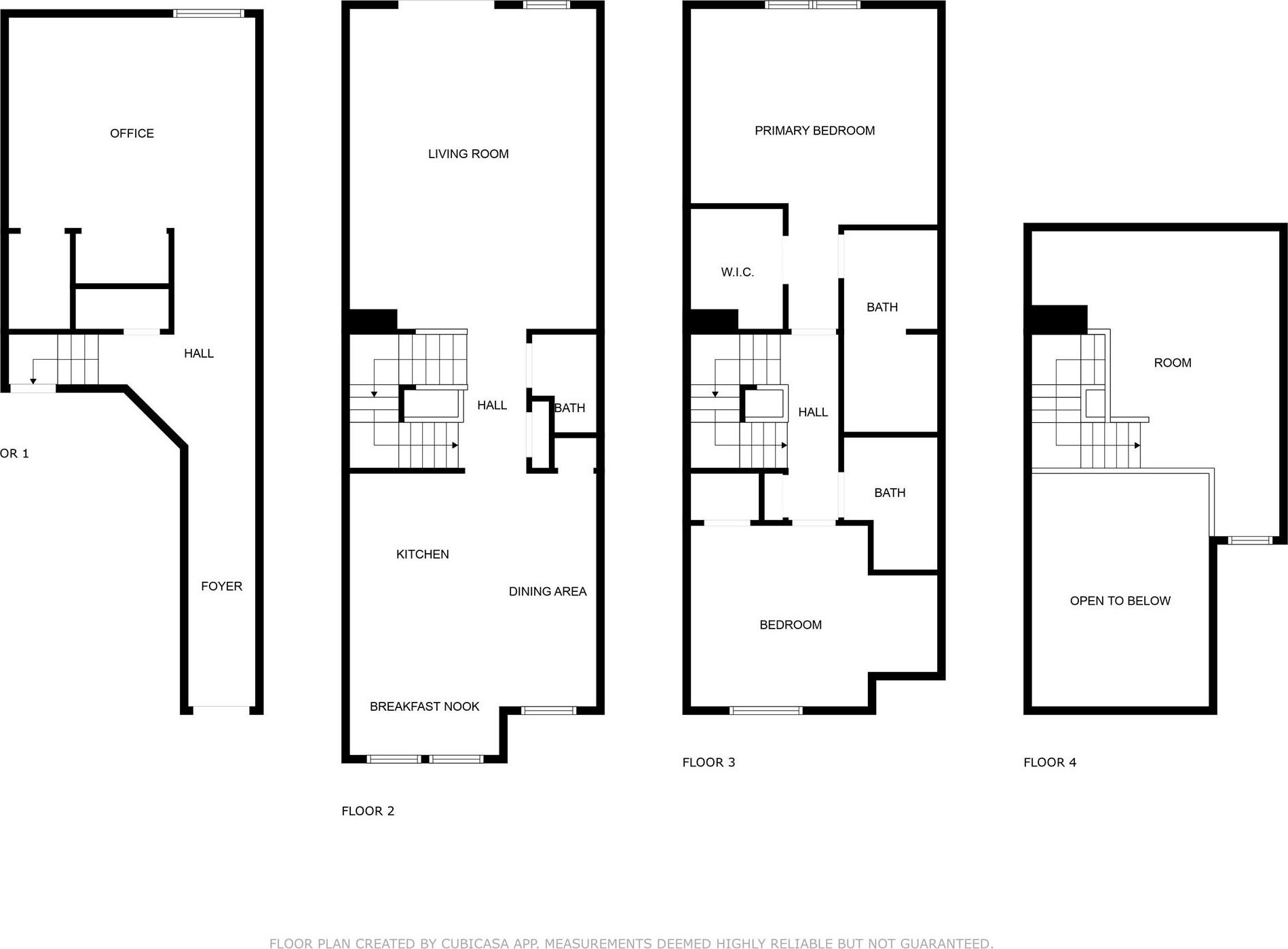
Live The Good Life In One Of Poughkeepsie's Most Sought After Communities. Hudson Pointe Overlooks The Majestic Hudson River And The Mid-hudson Bridge. With State Of The Art Medical Care, Great Shopping And Fantastic Dining Options All Close By What More Could One Ask For? This Home Features 2 Generously Sized Bedrooms And Two Renovated Full Baths Along With A Powder Room. The Kitchen Is Fully Updated And Features Beautiful Custom Tile Work. The First Level Has A Large Den. There Is Even A Loft Above The Primary Bedroom (which Has An Ensuite Bath) For Use As A Second Office, Storage, Crafting, Or Guest Accommodations. There Is A Clubhouse On Site Along With A Gym And A Pool. Furnishings Including Televisions But Excluding Art And Memorabilia Are Negotiable.
| Location/Town | Poughkeepsie |
| Area/County | Dutchess County |
| Prop. Type | Condo for Sale |
| Tax | $9,200.00 |
| Bedrooms | 2 |
| Total Rooms | 6 |
| Total Baths | 3 |
| Full Baths | 2 |
| 3/4 Baths | 1 |
| Year Built | 2006 |
| Construction | Frame |
| Pets | Yes |
| Lot SqFt | 436 |
| Cooling | Central Air |
| Heat Source | Ducts, Natural Gas |
| Util Incl | Cable Available, Electricity Connected, Natural Gas Connected, Sewer Connected, Trash Collection Private, Water Connected |
| Pets | Yes |
| Days On Market | 205 |
| Association Fee Includes | Common Area Maintenance, Exterior Maintenance, Grounds Care, Other, Pool Service |
| School District | Poughkeepsie City |
| Middle School | Poughkeepsie Middle School |
| Elementary School | Gov George Clinton School |
| High School | Poughkeepsie High School |
| Features | Cathedral ceiling(s) |
| Listing information courtesy of: VYLLA Home | |