RealtyDepotNY
Cell: 347-219-2037
Fax: 718-896-7020













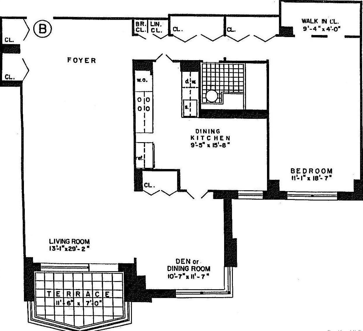
Come And Get It! No Board Approval For This Newly Renovated Jr4 Apartment With A Terrace At The Sought After Whitehall. Large Rooms, Eat-in Kitchen With Stainless Steel Appliances, Dining L, Lots Of Closets Including A Walk-in, Refinished Parquet Floors, New Closet Doors, And Central A/c. Eastern Views. Monthly Capital Assessment Of $259.57 Through December 2026. This Full Service Co-op Features A 24-hour Doorman, Live-in Superintendent, On-site Laundry Room, Dry Cleaner/tailor, Health Club With Indoor Pool, Gym, Exercise Classes Of All Kinds, And A Magnificently Designed Landscaped Outdoor Green Roof With Waterfall, Gazebo, Fire Pit, Walking Path, And Sitting Areas For Relaxing. Washer/dryers Are Permitted In The Apartment, Indoor Parking Is Available, And Dogs Are Welcome. The Whitehall Is Located In Central Riverdale Close To Shops, Restaurants, Transportation, Parks, Schools, And Houses Of Worship. The Public Library, Tennis Courts And Baseball Fields At Seton Park Are Across The Street. A 25 Minute Commute To Nyc Via Metro North And A 15 Minute Drive To Midtown Manhattan Makes This A Truly Special Home In One Of Riverdale's Premiere Buildings.
| Location/Town | New York |
| Area/County | Bronx |
| Post Office/Postal City | Bronx |
| Prop. Type | Coop for Sale |
| Style | Other |
| Bedrooms | 1 |
| Total Rooms | 4 |
| Total Baths | 1 |
| Full Baths | 1 |
| Year Built | 1970 |
| Basement | Walk-Out Access |
| Construction | Other |
| Pets | Yes |
| Cooling | Central Air |
| Heat Source | Baseboard |
| Util Incl | See Remarks |
| Pets | Yes |
| Days On Market | 107 |
| Parking Features | Assigned, Driveway, Off Street |
| School District | Contact Agent |
| Middle School | Call Listing Agent |
| Elementary School | Contact Agent |
| High School | Contact Agent |
| Features | Eat-in kitchen, entrance foyer |
| Listing information courtesy of: Brown Harris Stevens | |