RealtyDepotNY
Cell: 347-219-2037
Fax: 718-896-7020













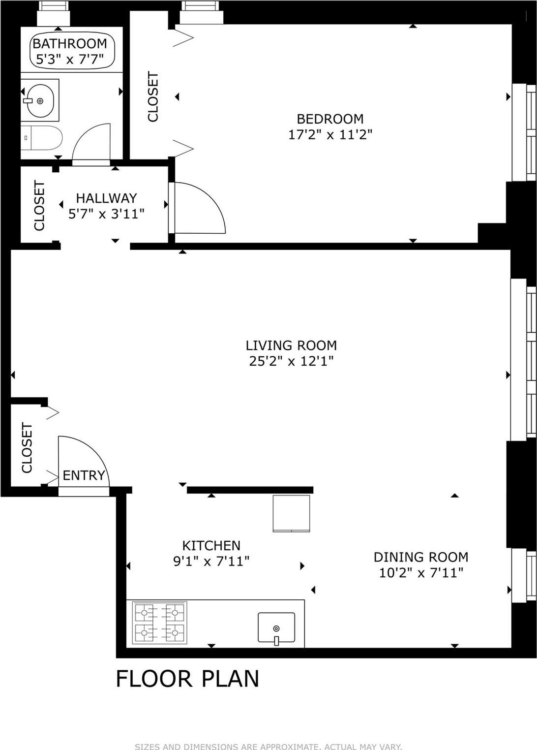
Welcome To 5730 Mosholu Avenue, Unit 5f! This Delightful One-bedroom Co-op In The Charming North Riverdale Neighborhood Offers A Cozy Urban Retreat On The 5th Floor Of A Well-maintained Post-war Low-rise Building. Step Into A Sunlit Space With A South-facing Exposure, Flooding The Rooms With Natural Light And Complementing The Rich Hardwood Floors That Run Throughout The Unit. The Inviting L-shaped Living Area Provides A Perfect Nook For Dining, Creating A Harmonious Blend Of Space And Comfort Adjacent To The Separate Kitchen. The Bedroom Is Generously Sized, Accommodating A Queen Or King-sized Bed And Additional Furnishings With Ease. Enjoy A Fully Functional Windowed Bathroom With A Pedestal Sink And Tub. Three Large Closets Complete This Spacious Unit. This Pet Friendly Building Boasts A Convenient Elevator, Resident Super And Garage Parking (wait Listed). North Riverdale's Tranquil Yet Vibrant Community Offers Ample Conveniences And Recreation. You're Minutes Away From The Lush Expanses Of Van Cortlandt Park, Renowned For Its Outdoor Activities And Scenic Landscapes. For Daily Commuters, The #1 Train And Local And Local/express Buses Provide Effortless Transit Options Into The Heart Of New York City. Delight In Nearby Dining Experiences Such As Beccofino, Frida's Tacos, And Emiliano's, Along With Numerous Shops That Cater To Your Every Need. In Addition, Horace Mann And Other Private Colleges Are Also Nearby. Don't Miss The Opportunity To Make This Lovely Space Your Own. Schedule Your Viewing And Discover The Exceptional Lifestyle That Awaits You At 5730 Mosholu Avenue!
| Location/Town | New York |
| Area/County | Bronx |
| Post Office/Postal City | Bronx |
| Prop. Type | Coop for Sale |
| Style | Other |
| Bedrooms | 1 |
| Total Rooms | 3 |
| Total Baths | 1 |
| Full Baths | 1 |
| Year Built | 1963 |
| Construction | Other |
| Pets | Yes |
| Cooling | Wall/Window Unit(s) |
| Heat Source | Radiant, Other |
| Util Incl | See Remarks |
| Property Amenities | Range, refrigerator, light fixtures |
| Pets | Yes |
| Days On Market | 33 |
| Parking Features | Waitlist |
| School District | Contact Agent |
| Middle School | Call Listing Agent |
| Elementary School | Contact Agent |
| High School | Contact Agent |
| Features | Other |
| Listing information courtesy of: Brown Harris Stevens | |