RealtyDepotNY
Cell: 347-219-2037
Fax: 718-896-7020















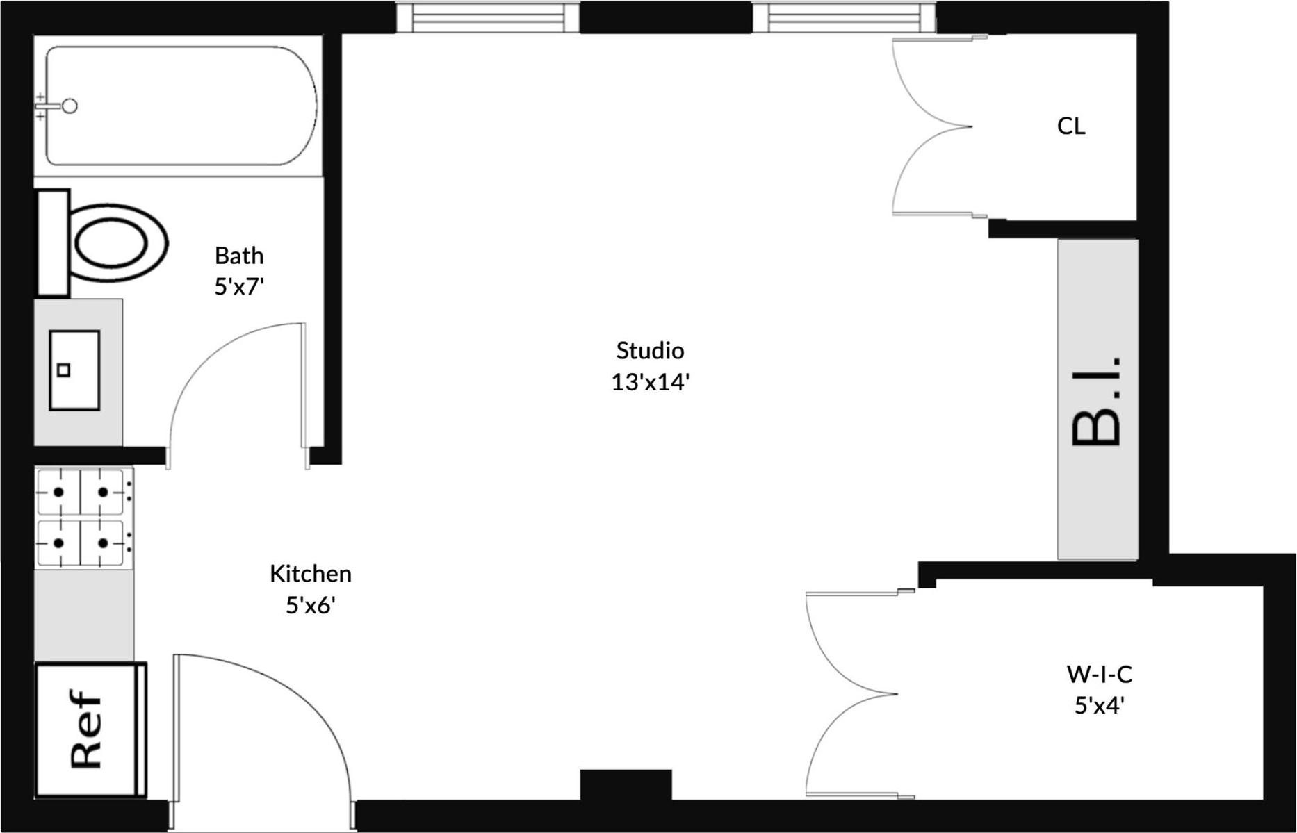
Location & Low-maintenance Living In Bronxville Village. Welcome To Stoneleigh Plaza, A Prestigious And Centrally Located Cooperative In The Heart Of Bronxville, Built Circa 1952 And Just Moments From Village Shops, Restaurants, And The Metro-north Train, Offering An Easy 28-minute Commute To Grand Central Terminal. This Thoughtfully Designed Studio Features Custom Built-in Bookcases, Two Walk-in Closets Providing Exceptional Storage, A Fully Equipped Kitchenette With Open-concept Flow To The Living/sleeping Area, And A Beautifully Updated Bathroom. The Space Is Efficient, Comfortable, And Ideal For Effortless Everyday Living. Residents Enjoy Beautifully Landscaped Gardens Perfect For Outdoor Relaxation, As Well As Storage Area Included With The Unit. The Impeccably Maintained Building Offers A Live-in Super, Assistant Super, And Porter Staff, Along With Up To Two Free Unassigned Outdoor Parking Spaces And A Heated Garage (waitlist, $125/month). A Perfect Pied-a-terre For Downsizers, Or For Professional Seeking Low Maintenance, Convenience And Charm. Ideally Located Near The Scenic Trails Of The Bronx River Parkway Reservation, This Residence Offers A Rare Blend Of Suburban Tranquility And Urban Accessibility. All Cash Purchase Only, No Financing Permitted, And No Pets Permitted.
| Location/Town | Eastchester |
| Area/County | Westchester County |
| Post Office/Postal City | Bronxville |
| Prop. Type | Coop for Sale |
| Style | Other |
| Bedrooms | Studio |
| Total Rooms | 1 |
| Total Baths | 1 |
| Full Baths | 1 |
| # Stories | 6 |
| Year Built | 1952 |
| Basement | Full, Storage Space |
| Construction | Stone |
| Pets | No |
| Cooling | Wall/Window Unit(s) |
| Heat Source | Oil |
| Util Incl | Cable Available, Electricity Connected, Sewer Connected, Trash Collection Public |
| Property Amenities | Headboard, double bed/box spring/mattress, two matching end tables, tv/wall mounted, black console under tv |
| Pets | No |
| Condition | Updated/Remodeled |
| Days On Market | 10 |
| Window Features | Blinds |
| Parking Features | Heated Garage, Parking Lot |
| School District | Bronxville |
| Middle School | Bronxville Middle School |
| Elementary School | Bronxville Elementary School |
| High School | Bronxville High School |
| Features | Open kitchen, walk-in closet(s) |
| Listing information courtesy of: Berkshire Hathaway HS NY Prop | |