RealtyDepotNY
Cell: 347-219-2037
Fax: 718-896-7020

















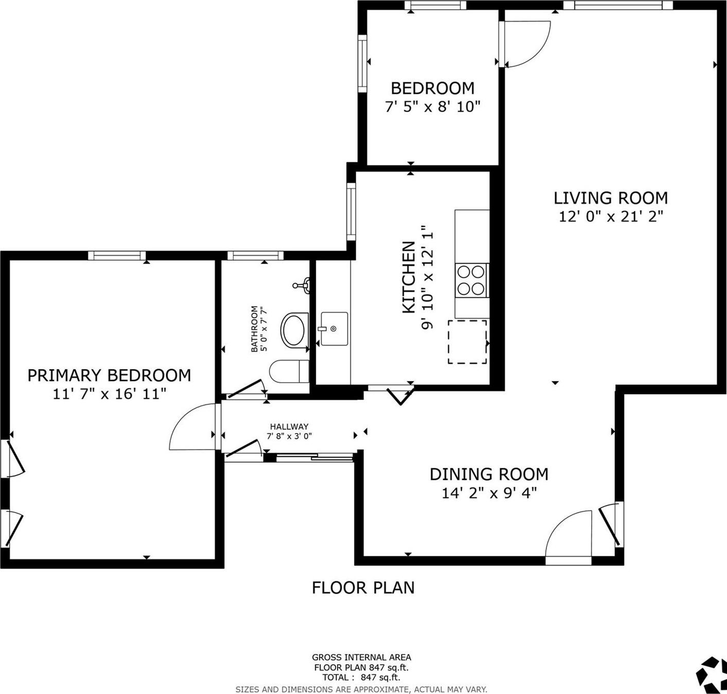
Welcome To Apt 4e At The Carlton — A Spacious Junior 4 Co-op Nestled Within The Prestigious Sherwood Village Complex In The Heart Of Corona, Queens. This Well-maintained 2-bedroom, 1-bath Home Offers A Versatile Layout With A Generous Living/dining Area That Can Easily Serve As A True Second Bedroom, Making It An Ideal Opportunity For First-time Buyers Or Investors Alike. Step Inside To A Welcoming Formal Foyer Entry, An Open And Airy Living Space Filled With Natural Light, And A Well-appointed Galley-style Kitchen. The Primary Bedroom Is Comfortably Sized, And The Flexible Jr4 Room Offers Endless Possibilities — Home Office, Nursery, Or Guest Bedroom. Additional Highlights Include Ample Closet Storage Throughout And A Classic Tile Bath. The Carlton Is Part Of The Highly Sought-after Sherwood Village Co-op Community — A Well-managed, Elevator Building With A Live-in Superintendent, On-site Laundry, And A Dedicated Parking Waitlist. Monthly Maintenance Covers Heat, Hot Water, Gas, And Real Estate Taxes, Providing Exceptional Value And Predictable Carrying Costs. Commuters Will Love The Prime Location With Easy Access To The Q38, Q88, Qm10, Qm11, And Qm40 Express Bus Lines, The Long Island Expressway, And The E, M, And R Subway Lines At Woodhaven Blvd Or 63rd Drive–rego Park Stations. Steps To Rego Center, Queens Center Mall, Costco, Supermarkets, Pharmacies, Houses Of Worship, Restaurants, And Parks. A Rare Opportunity To Own In One Of Corona's Most Established And Well-run Co-op Communities. Don't Miss This One — Schedule Your Private Showing Today!
| Location/Town | New York |
| Area/County | Queens |
| Post Office/Postal City | Corona |
| Prop. Type | Coop for Sale |
| Style | Other |
| Bedrooms | 2 |
| Total Rooms | 3 |
| Total Baths | 1 |
| Full Baths | 1 |
| # Stories | 6 |
| Year Built | 1960 |
| Basement | Full |
| Construction | Brick |
| Pets | No |
| Cooling | Wall/Window Unit(s) |
| Heat Source | Natural Gas |
| Util Incl | Electricity Available, Natural Gas Available, Sewer Available |
| Pets | No |
| Days On Market | 3 |
| Lot Features | Near Public Transit, Near School, Near Shops |
| Parking Features | Waitlist |
| Association Fee Includes | Common Area Maintenance |
| School District | Queens24 |
| Middle School | Is 61 Leonardo Da Vinci |
| Elementary School | Ps 14 Fairview |
| High School | High School For Arts & Busines |
| Features | Chandelier, eat-in kitchen, formal dining |
| Listing information courtesy of: EXP Realty | |