RealtyDepotNY
Cell: 347-219-2037
Fax: 718-896-7020










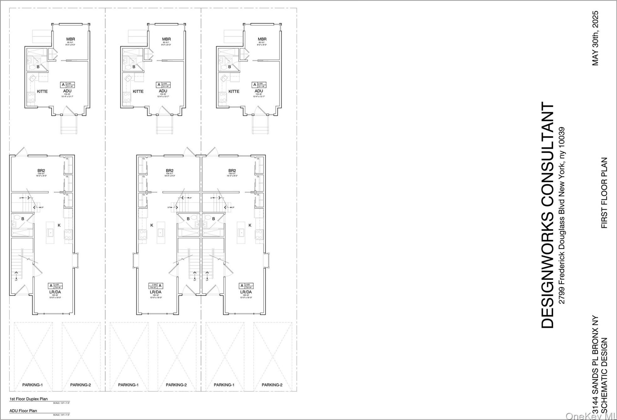
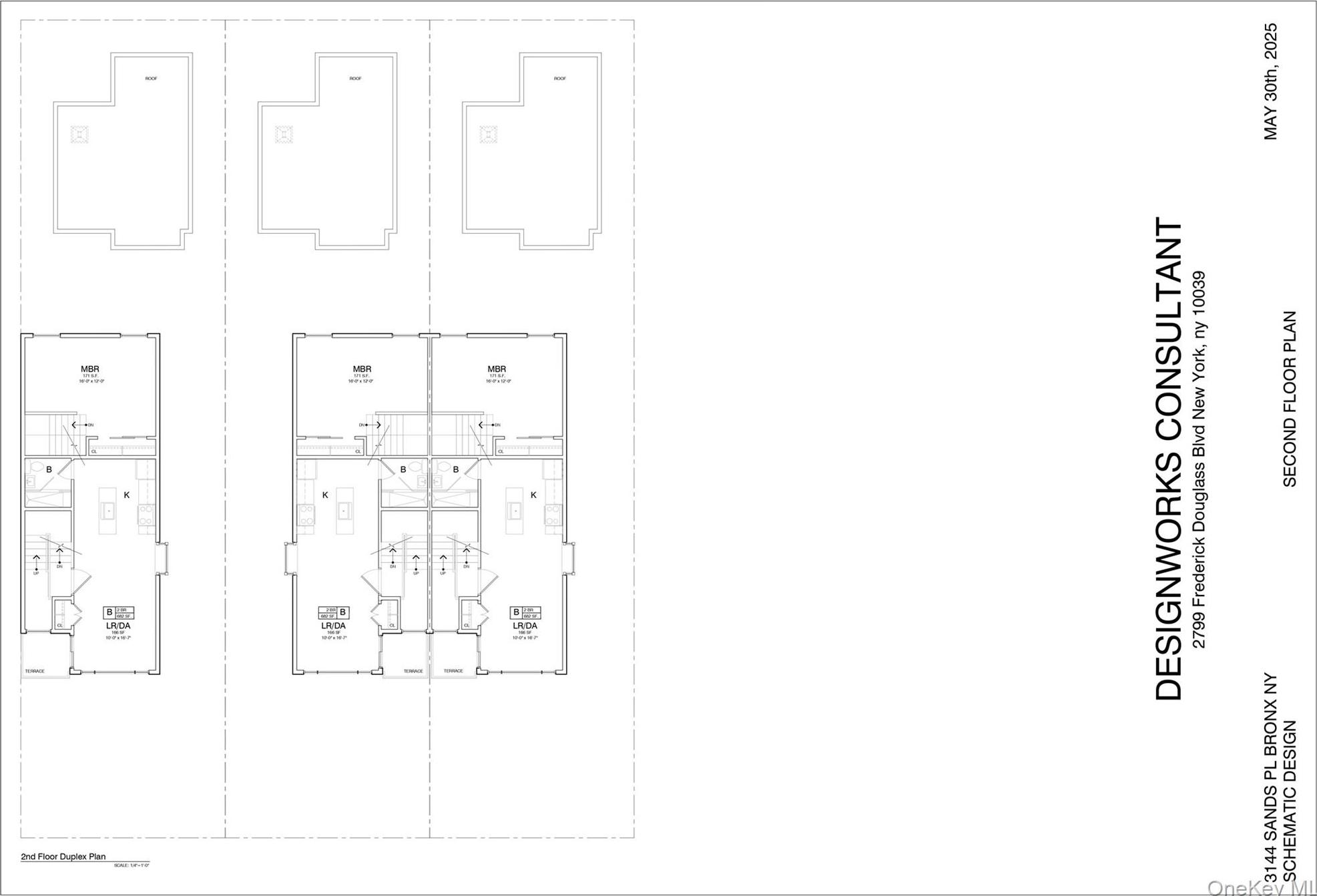
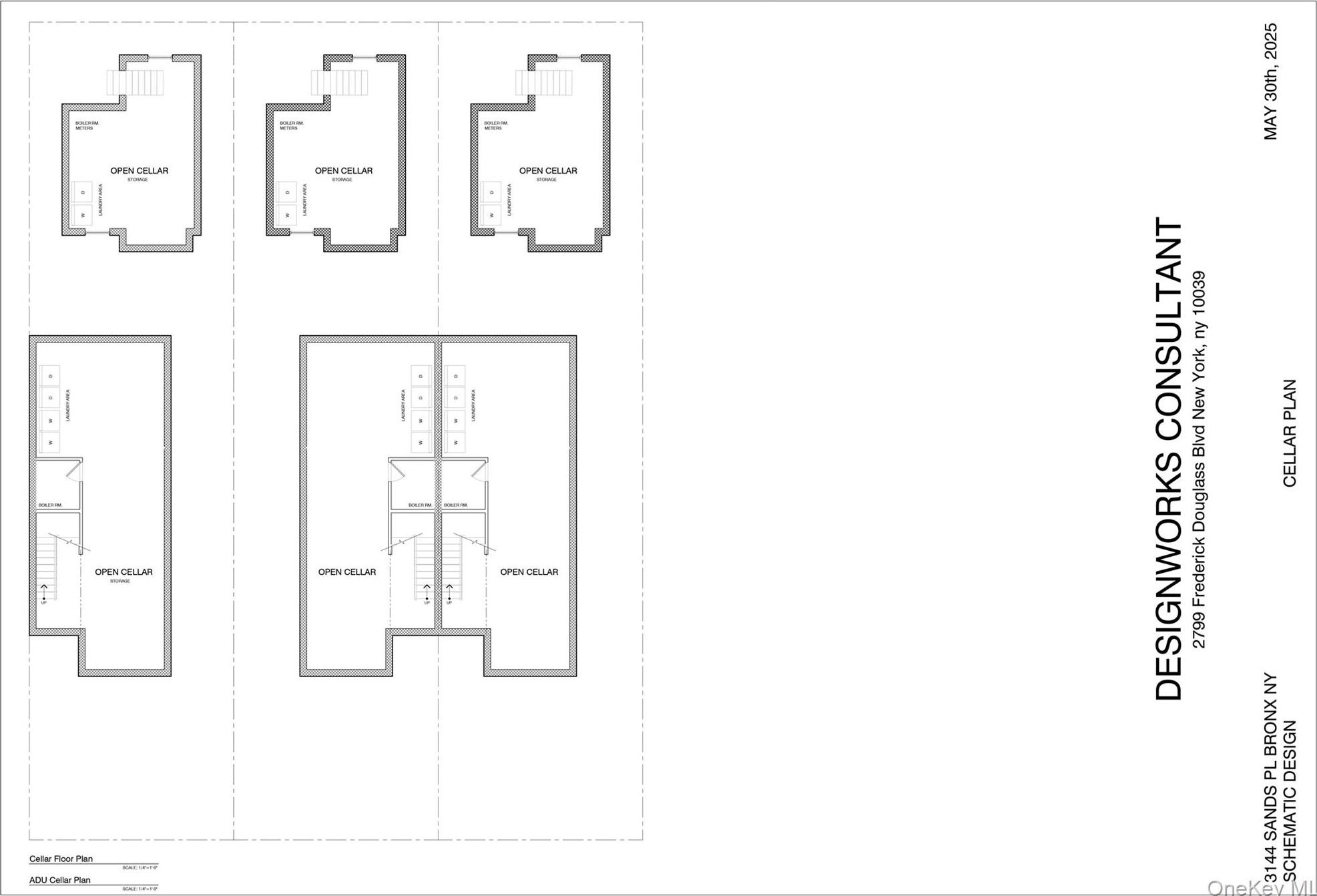
Here’s A Rare Development Deal In A Prime Pelham Bay Location. 3144 Sands Place (50x100 Lot) Is Being Sold Together With The Adjacent 3146 Sands Place (25x100 Vacant Lot) As A Package Deal For $999, 999, Offering A Combined 75x100 (7, 500 Sf) Lot With Multiple Development Potential. After Architectural Zoning Analysis, There Are Options For Builders Looking To Maximize The Site. Option 1 Includes Separating The Property Into Three 25x100 Lots And Constructing Three 15-foot-wide Homes At Approximately 1, 500 Sf Each, Designed With Duplex Layouts And Rear Adus, Allowing For A Potential Total Of 6 To 9 Units Depending On Final Configuration. Option 2 Includes Renovating The Existing House On The 50x100 Lot, Converting The Garage Into An Approximately 800 Sf 2-bedroom Adu With Kitchen And Bath, And Building An Additional 1, 500 Sf Home With A Rear Adu, Creating A Potential Total Of 6 Units (2 Two-family Homes And 2 One-family Adus). Fencing And Demolition Approvals Are Already In Place, And Schematic Drawings For Option 1 Are Included In The Photos To Showcase The Proposed Design Concept. Just A Short Walk To The 6 Train On Westchester Avenue, Close To Local Shops, Restaurants, Schools, And Minutes To I-95, Hutchinson River Parkway, And Pelham Bay Park; Making This A Highly Convenient Location That Will Continue To Attract Strong Tenant Demand.
| Location/Town | New York |
| Area/County | Bronx |
| Post Office/Postal City | Bronx |
| Prop. Type | Land |
| Tax | $1,439.00 |
| Lot Size | 25x100 |
| Lot SqFt | 2,500 |
| Tax Assessed Value | 12540 |
| School District | Bronx 11 |
| Middle School | Pelham Gardens Middle School |
| Elementary School | Ps 16 Wakefield |
| High School | Harry S Truman High School |
| Listing information courtesy of: eXp Realty | |