RealtyDepotNY
Cell: 347-219-2037
Fax: 718-896-7020



















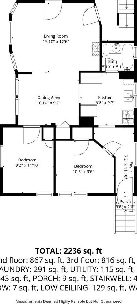
Prime Rental Income Opportunity - 3 Family Property Near The Beach In Arverne, Ny. Discover A Fantastic Investment Opportunity In The Heart Of Arverne! This Well-maintained Multi Family Home Features Three Distinct Units, Offering The Perfect Blend Of Rental Income And Living Space. Ideal For Both Investors And Those Looking To Reside In One Unit While Renting Out The Others. Sold As Is. Property Features: First Floor Unit: - 4 Bedrooms - 2 Bathrooms - Rental Income: $2, 900/month - Spacious Layout With A Decent Kitchen, Perfect For Groups. Second Floor Unit: - 3 Bedrooms - 1 Bathroom - Rental Income: $2, 000/month - Great Space For Tenants Looking For Comfort And Convenience. Third Floor Unit: - 2 Bedrooms - 1 Bathroom - Rental Income: $1, 200/month - A Unique Space With Potential For Additional Income. Additional Features: -basement: Provides Extra Storage Space For Tenants Or Homeowners. -garage: Convenient Parking Option And Additional Storage. -backyard: A Private Outdoor Space For Relaxation Or Gatherings. Investment Highlights: Total Rental Income: $6, 100/month, Providing Excellent Cash Flow. Cap Rate: 8.14% Indicating Strong Investment Potential. Location:just Minutes From Beautiful Beaches, Parks, And Local Amenities, Making It Attractive For Renters And Residents Alike. Additional Information: Opportunity For Updates: While The Units Are In Good Condition, There Is Potential For Minor Updates To Increase Rental Value. Why This Property? Whether You Are An Investor Looking To Expand Your Portfolio Or A Homeowner Seeking Rental Income, This Property Offers Endless Possibilities. Don’t Miss Out On This Chance To Own A Piece Of Arverne!
| Location/Town | New York |
| Area/County | Queens |
| Post Office/Postal City | Arverne |
| Prop. Type | Single Family House for Sale |
| Tax | $5,169.00 |
| Bedrooms | 9 |
| Total Baths | 4 |
| Full Baths | 4 |
| Year Built | 1920 |
| Basement | Full, Unfinished |
| Construction | Aluminum Siding |
| Total Units | 3 |
| Cooling | Wall/Window Unit(s) |
| Heat Source | Baseboard |
| Util Incl | Electricity Available, Natural Gas Available, Natural Gas Connected |
| Days On Market | 15 |
| Parking Features | Detached, Driveway, Garage |
| Tax Lot | 60 |
| Units | 3 |
| School District | Queens 27 |
| Features | First floor bedroom, first floor full bath, primary bathroom, master downstairs |
| Listing information courtesy of: Compass Greater NY LLC | |