RealtyDepotNY
Cell: 347-219-2037
Fax: 718-896-7020





































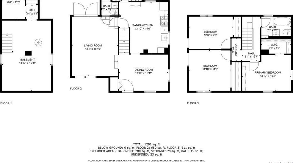
Here’s Your Chance To Bring Your Vision To Life! This 50’ X 100’ R2a-zoned Corner Lot In Prime Bayside Offers Endless Possibilities—whether New Construction, Expansion, Or Renovation. Bring Your Architect, Contractor, Decorator, To Create Your Dream Home. Currently Configured As Charming 3br/3ba Farmhouse Features A Welcoming Front Porch, Farmhouse Kitchen, Sunlit Dining Room, And Spacious Living Room With Double Doors To The Patio. An Attic And Basement Add Extra Functionality, While The Fenced-in, Hedge-lined Property Provides Privacy. Conveniently Located Near The Lirr, Bell Blvd Dining And Shopping, Parks, Marina, And More—this Is A Rare Opportunity In A Highly Sought-after Neighborhood! Survey Is Available. No Interior Access. Do Not Disturb Residents. Property Will Be Delivered Vacant At Closing.
| Location/Town | New York |
| Area/County | Queens |
| Post Office/Postal City | Bayside |
| Prop. Type | Single Family House for Sale |
| Style | Farmhouse |
| Tax | $10,046.00 |
| Bedrooms | 3 |
| Total Rooms | 6 |
| Total Baths | 3 |
| Full Baths | 3 |
| Year Built | 1940 |
| Basement | Partial, Unfinished |
| Construction | Wood Siding |
| Lot Size | 50x100 |
| Lot SqFt | 5,000 |
| Cooling | Wall/Window Unit(s) |
| Heat Source | Baseboard, Hot Water |
| Util Incl | Cable Available, Electricity Connected, Natural Gas Connected |
| Days On Market | 6 |
| Lot Features | Corner Lot, Level |
| Parking Features | Off Street |
| Tax Assessed Value | 1037000 |
| Tax Lot | 23 |
| School District | Queens 26 |
| Middle School | Ms 158 Marie Curie |
| Elementary School | Ps 41 Crocheron |
| High School | Bayside High School |
| Features | First floor full bath, open kitchen |
| Listing information courtesy of: RE/MAX Team | |