RealtyDepotNY
Cell: 347-219-2037
Fax: 718-896-7020















































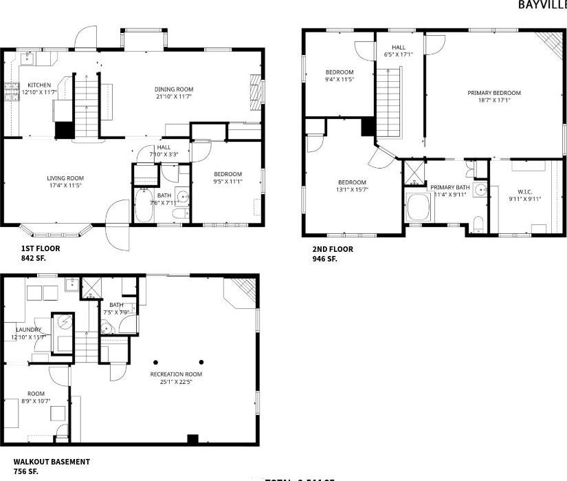
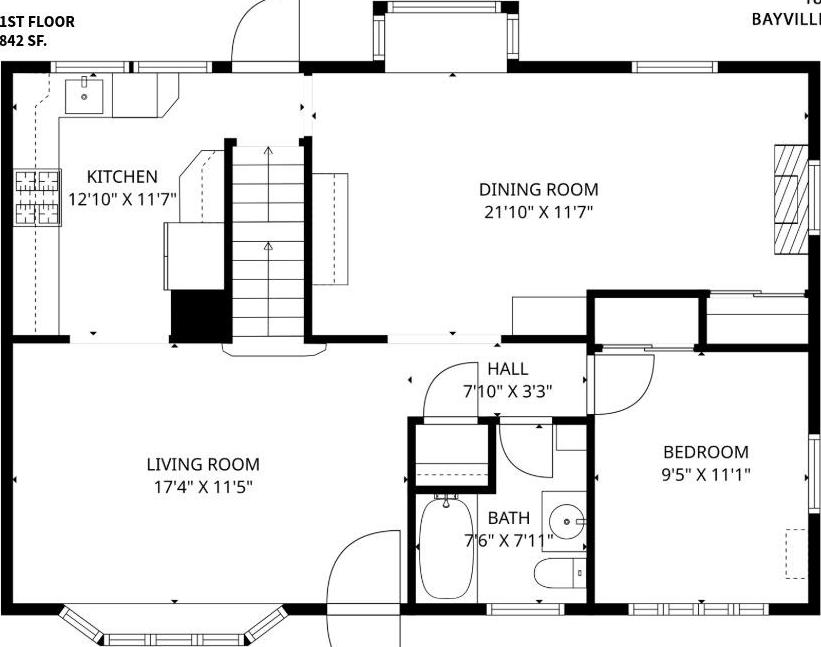
Diamond Condition Home In Prime Bayville Location – No Flood Zone! 3 Level House! Walk-out Basement With Private Entrance! Just 2 Blocks From The Beach! Enter Through The Inviting Main Entrance Or Access The Backyard Directly Via An Open Hallway. Meticulously Maintained By A Caring Owner, This Home Is In Pristine Condition And Feels Like New Throughout. The First Floor Boasts Gleaming Hardwood Floors, A Spacious Living And Dining Area, An Updated Kitchen With Backyard Access, One Bedroom, And A Full Bathroom. The Upstairs Level—added Approximately 30 Years Ago—features An Expansive Primary Suite With Vaulted Ceilings And A Cozy Fireplace, Walk-in Closet, And Private En-suite Bath, Along With Two Additional Spacious Bedrooms. The Finished Walk-out Basement Offers A Spacious Family Room With Fireplace And Direct Access To A Charming Patio Surrounded By Beautifully Landscaped Gardens; Full Bath, Cedar Room, Bonus Room, And Laundry Area. Additional Highlights Include Central Air, A Three-zone Heating System, A True Two-car Garage With Extra Space For Storage And A Full Spacious Attic, And A Beautifully Landscaped Backyard Featuring A Patio With Direct Street Access—perfect For Outdoor Entertaining Or Quiet Relaxation. Roof Is 3.5 Years Old. The Home Includes Four Electric Panels, A Four-zone Sprinkler System Covering Both Front And Back Yards, And A Central Water Purification System. Hardwood Floors And Water Heater Were Replaced Five Years Ago, And The Driveway Was Sealed Just Last Year. Lot 7, 102.63 Sf. Plus Extra 2, 000 Sf. (easement) Bayville Offers An Exceptional Coastal Lifestyle, Combining Vibrant Living With Serene Surroundings. Enjoy Five-star Dining, Picturesque Parks, Pristine Beaches, And Boating—all Within The Prestigious Locust Valley School District.
| Location/Town | Oyster Bay |
| Area/County | Nassau County |
| Post Office/Postal City | Bayville |
| Prop. Type | Single Family House for Sale |
| Style | Colonial |
| Tax | $11,360.00 |
| Bedrooms | 4 |
| Total Rooms | 8 |
| Total Baths | 3 |
| Full Baths | 3 |
| Year Built | 1959 |
| Basement | Finished, Walk-Out Access |
| Construction | Brick, Frame |
| Lot SqFt | 7,100 |
| Cooling | Central Air |
| Heat Source | Oil |
| Util Incl | Cable Available, Trash Collection Public |
| Features | Fire Pit, Garden, Lighting, Rain Gutters |
| Patio | Patio |
| Days On Market | 39 |
| Window Features | ENERGY STAR Qualified Windows |
| Parking Features | Detached |
| School District | Locust Valley |
| Middle School | Locust Valley Middle School |
| Elementary School | Bayville Elementary School |
| High School | Locust Valley High School |
| Features | First floor bedroom, energy star qualified door(s), formal dining, granite counters, high ceilings, open kitchen, pantry, primary bathroom, soaking tub, storage, walk through kitchen, walk-in closet(s), washer/dryer hookup |
| Listing information courtesy of: A Class Realty | |