RealtyDepotNY
Cell: 347-219-2037
Fax: 718-896-7020



































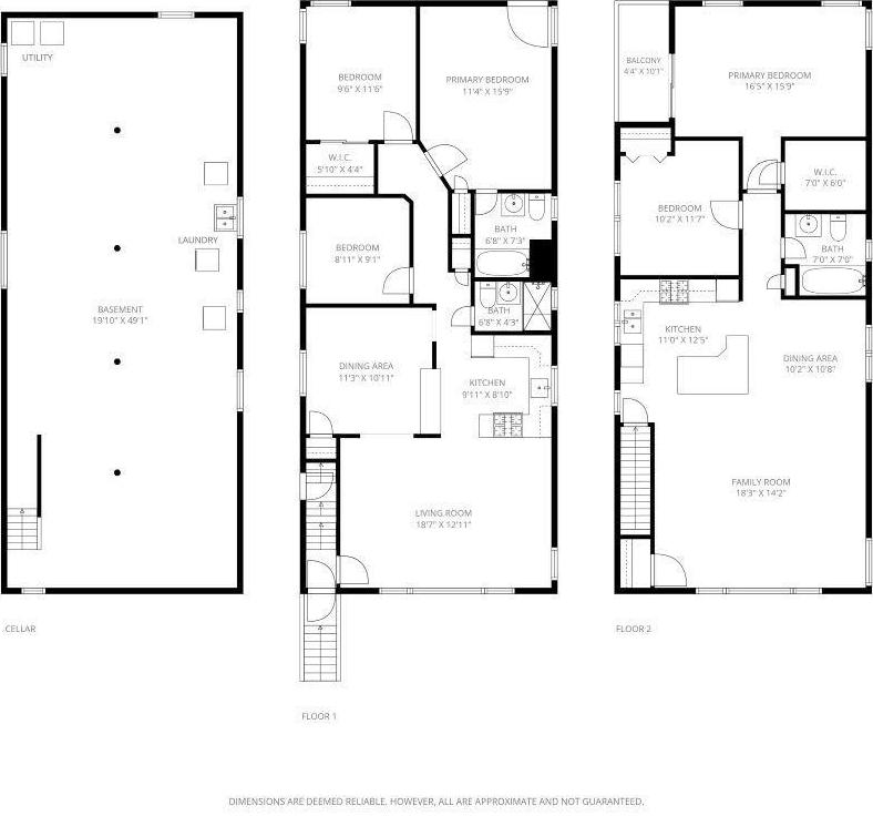
Welcome To Beach 122nd Street. This Detached 2-family Home In The Picturesque Area Of " Belle Harbor". Offers 6/4/+ Full Base. Situated On A 35x100 Lot With A 22x52 Building Size And Private Drive, Offering Breathtaking Bay Views And Endless Possibilities. Just A Few Minutes To The Beach! Fantastic Investment Opportunity — Perfect For A Large Family Or Rental Income. The Top-floor Unit Features An Open-concept Living And Dining Area, Granite Counters, Updated Appliances, Hardwood Floors, Ample Closet Space, And 2 Spacious Bedrooms. Enjoy Morning Sunrises On Your Main Bedroom Come Out Deck. The Main Floor Boasts 3 Large Bedrooms, Formal Dining Room W/ An Open Kitchen Seamlessly Flowing Into The Living Room. A Convenient ¾ Bath, Along With A Master Bedroom W/ Full Bath. Direct Access To The Private Rear Yard. Perfect For Entertaining. Additional Highlights: Huge Basement Waiting For Your Finishing Touches W/ Private And Interior Access For Additional Recreation Use. The Private Driveway Easily Accommodates Multiple Cars, Separate Heating Units. Property Will Be Delivered Vacant. This Fantastic Property Will Not Last. *subject To E&o. All Information Is Deemed Accurate, Not Guaranteed.
| Location/Town | New York |
| Area/County | Queens |
| Post Office/Postal City | Belle Harbor |
| Prop. Type | Single Family House for Sale |
| Tax | $7,867.00 |
| Year Built | 1955 |
| Basement | Finished, Full |
| Construction | Brick, Frame |
| Total Units | 2 |
| Lot SqFt | 3,500 |
| Cooling | None |
| Heat Source | Steam, Other |
| Util Incl | See Remarks |
| Days On Market | 60 |
| Parking Features | Private |
| Tax Assessed Value | 51300 |
| Tax Lot | 60 |
| Units | 2 |
| School District | Contact Agent |
| Middle School | Call Listing Agent |
| Elementary School | Contact Agent |
| High School | Contact Agent |
| Features | Other |
| Listing information courtesy of: RE/MAX Edge | |