Tel: 718-896-0777
Cell: 347-219-2037
Fax: 718-896-7020























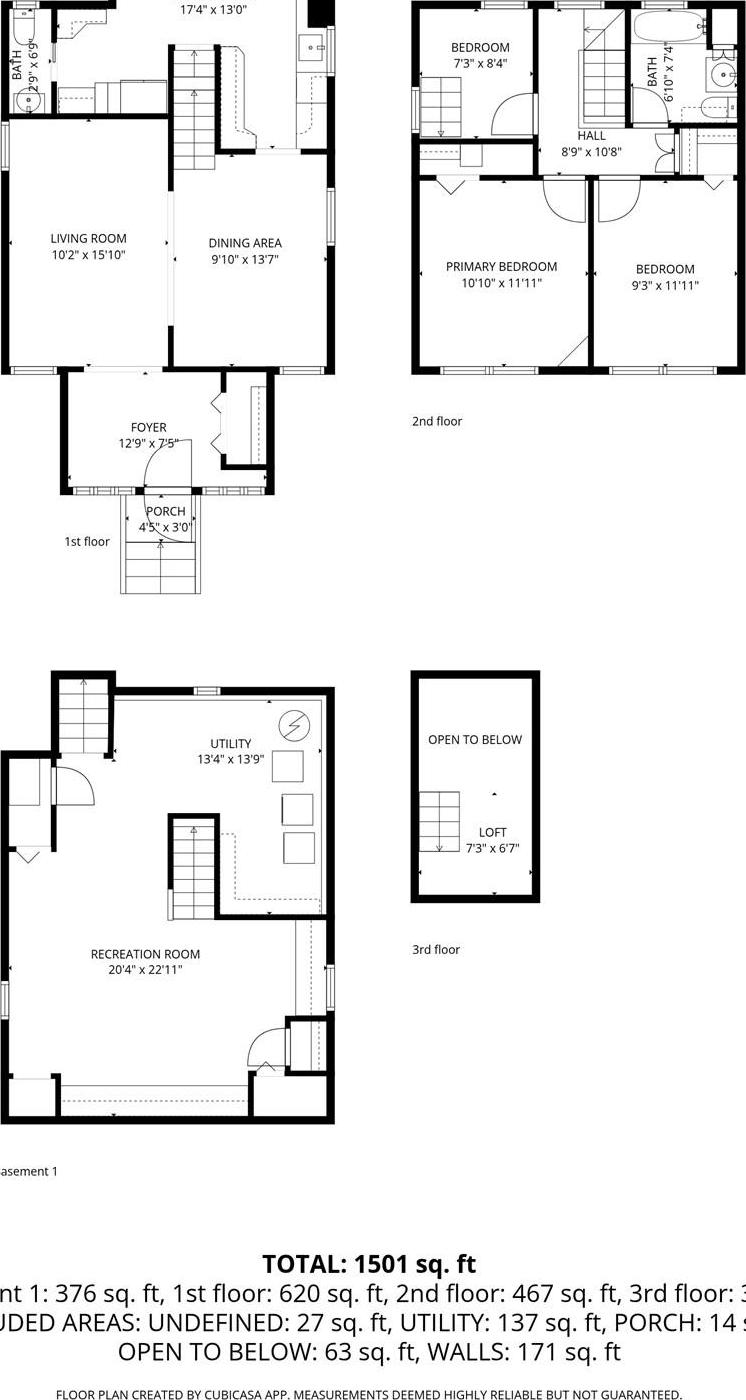
Pristine Colonial Located On Quiet Block In Bellerose, Ny. Enclosed Entry, Living Room, Dining Room And Full Kitchen With Half Bath On First Floor. Upstairs 3 Full Bedrooms, Full Bath And Closets For Storage. Downstairs Is The Full Basement With Built In Cabinets, Laundry, Storage And Bilco Doors To Your Private Back Yard. Private Driveway With Detached Garage, Sporting New Paved Patio With An Above Ground Pool, Private Fenced Yard Offering Loads Of Summer Time Entertainment For Friends And Family. This Home Has A New Roof, New Siding, Ductless Units, Updated Anderson Windows, New Pavers And Energy Efficient Features. Schedule To See This Awesome Home And Make It Yours.
| Location/Town | New York |
| Area/County | Queens |
| Post Office/Postal City | Bellerose |
| Prop. Type | Single Family House for Sale |
| Style | Colonial |
| Tax | $6,165.00 |
| Bedrooms | 3 |
| Total Rooms | 7 |
| Total Baths | 2 |
| Full Baths | 1 |
| 3/4 Baths | 1 |
| Year Built | 1920 |
| Basement | Bilco Door(s), Finished, Full |
| Construction | Vinyl Siding |
| Lot Size | 30x100 |
| Lot SqFt | 3,000 |
| Cooling | Ductless |
| Heat Source | Baseboard, Natural G |
| Util Incl | Cable Available, Electricity Available, Electricity Connected, Natural Gas Available, Natural Gas Connected, Phone Available, Sewer Available, Sewer Connected, Trash Collection Public, Water Available, Water Connected |
| Pool | Above Grou |
| Patio | Patio |
| Days On Market | 3 |
| Lot Features | Back Yard, Landscaped, Level, Near Public Transit |
| Parking Features | Driveway, Garage, Garage Door Opener, Private |
| Tax Assessed Value | 36960 |
| School District | Queens 26 |
| Middle School | Irwin Altman Middle School 172 |
| Elementary School | Ps 133 |
| High School | Martin Van Buren High School |
| Features | Eat-in kitchen, entrance foyer, high speed internet, quartz/quartzite counters, storage, walk through kitchen, washer/dryer hookup |
| Listing information courtesy of: Douglas Elliman Real Estate | |