RealtyDepotNY
Cell: 347-219-2037
Fax: 718-896-7020





































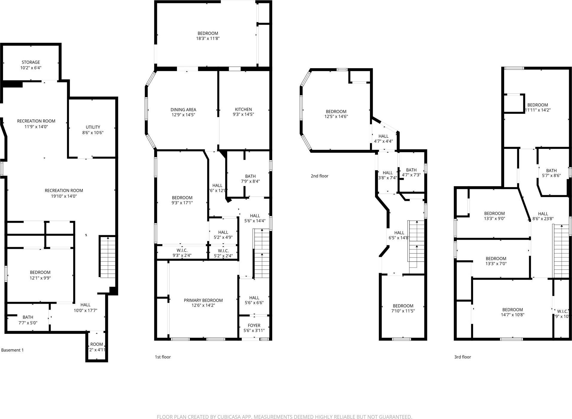
.well Maintained Detached Three Level Home In The Van Nest Section Of The Bronx With A Finished Walkout Basement. Close Proximity To The 180th St. Subway Hub With Access To The #2 And #5, Offering Quick Access For Manhattan Commuters. The Primary Unit On The 1st Floor Consists Of A 2br/1bath With A Back Patio, Backyard With Shed, And Access To The Basement Area Washer Dryer / Utility Room. The 2nd Floor Is A 3br/1bath As Well. The Top 3rd Floor Attic Unit Has An Additional 1br/1bath Which Will Be Delivered Vacant. This Unit Will Be Delivered Vacant. There Is A Finished Basement As Well With 1br And 1 Full Bath With Separate Egress. Total Bedroom 6. Total Bathrooms 4. The 1st Floor Tenant Acts As The Manager For This Property And 376 Bronx Park East, Which Is A Legal 13 Unit Sro Owned By The Same Owner (mls #938230). This Unit Is Vacating As Well. Both Properties Can Be Purchased As A Package Maximizing Living Large With Multiple Rents Streaming In $$$. All Present Tenants Are Month To Month. There Are Additional Upcoming Vacancies - All Tenants Are Month To Month.
| Location/Town | New York |
| Area/County | Bronx |
| Post Office/Postal City | Bronx |
| Prop. Type | Single Family House for Sale |
| Tax | $5,872.00 |
| Bedrooms | 6 |
| Total Baths | 4 |
| Full Baths | 4 |
| Year Built | 1910 |
| Basement | Finished |
| Construction | Aluminum Siding |
| Total Units | 4 |
| Lot SqFt | 2,500 |
| Cooling | None |
| Heat Source | Natural Gas |
| Util Incl | Electricity Connected, Natural Gas Connected, See Remarks, Trash Collection Public, Water Connected |
| Features | Awning(s) |
| Days On Market | 71 |
| Lot Features | Back Yard, Front Yard, Level, Near Public Transit |
| Parking Features | On Street |
| Tax Assessed Value | 35820 |
| Tax Lot | 6 |
| Units | 4 |
| School District | Contact Agent |
| Middle School | Call Listing Agent |
| Elementary School | Contact Agent |
| High School | Contact Agent |
| Features | First floor bedroom, entrance foyer |
| Listing information courtesy of: Keller Williams Realty NYC Grp | |