RealtyDepotNY
Cell: 347-219-2037
Fax: 718-896-7020




























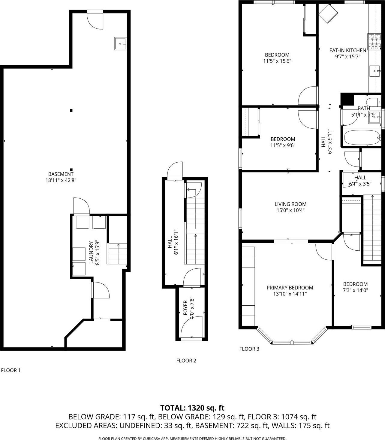
Investor’s Dream In Morris Park – Expand Your Portfolio Or Build Bigger! 679 Van Nest Avenue And An Expansion Potential Combining With 677 Van Nest Avenue Too! Unlock The Potential Of This Prime Morris Park Property—an Exceptional Opportunity For Savvy Investors And Visionaries Alike! Located In One Of The Bronx’s Sought-after Neighborhoods, This Two-family Multi-unit Residence Offers Flexibility, Income Potential, And The Rare Option To Combine With Neighboring 677 Van Nest Avenue For An Even Larger Development Footprint. Ideal For Rental Income, Owner-occupancy, Or Redevelopment. Convenient Location Near Major Highways, Public Transportation, Shopping, And Dining. Poised For Growth, Whether You're Looking To Continue As A Cash-flowing Multi-family Or Explore A Larger-scale Investment, 679 Van Nest Avenue Is Your Gateway To Opportunity In The Bronx. Don’t Miss This Chance To Invest In A Thriving Neighborhood With Strong Rental Demand And Development Upside!
| Location/Town | New York |
| Area/County | Bronx |
| Post Office/Postal City | Bronx |
| Prop. Type | Single Family House for Sale |
| Style | Other |
| Tax | $6,229.00 |
| Bedrooms | 5 |
| Total Baths | 2 |
| Full Baths | 2 |
| Year Built | 1901 |
| Basement | Full, Unfinished, Walk-Out Access |
| Construction | Frame |
| Total Units | 2 |
| Lot Size | 25 x 95 |
| Lot SqFt | 2,375 |
| Cooling | Wall/Window Unit(s) |
| Heat Source | Baseboard |
| Util Incl | Electricity Connected, Natural Gas Connected, Sewer Connected, Trash Collection Public, Water Connected |
| Condition | Actual |
| Days On Market | 105 |
| Lot Features | Level, Near Public Transit, Near School, Near Shops |
| Parking Features | None |
| Tax Assessed Value | 54720 |
| Units | 2 |
| School District | Bronx |
| Features | First floor bedroom, first floor full bath, washer/dryer hookup |
| Listing information courtesy of: RE/MAX Prestige Properties | |