Tel: 718-896-0777
                                                    Cell:  347-219-2037
                                                    Fax: 718-896-7020
                            
         
        


































 
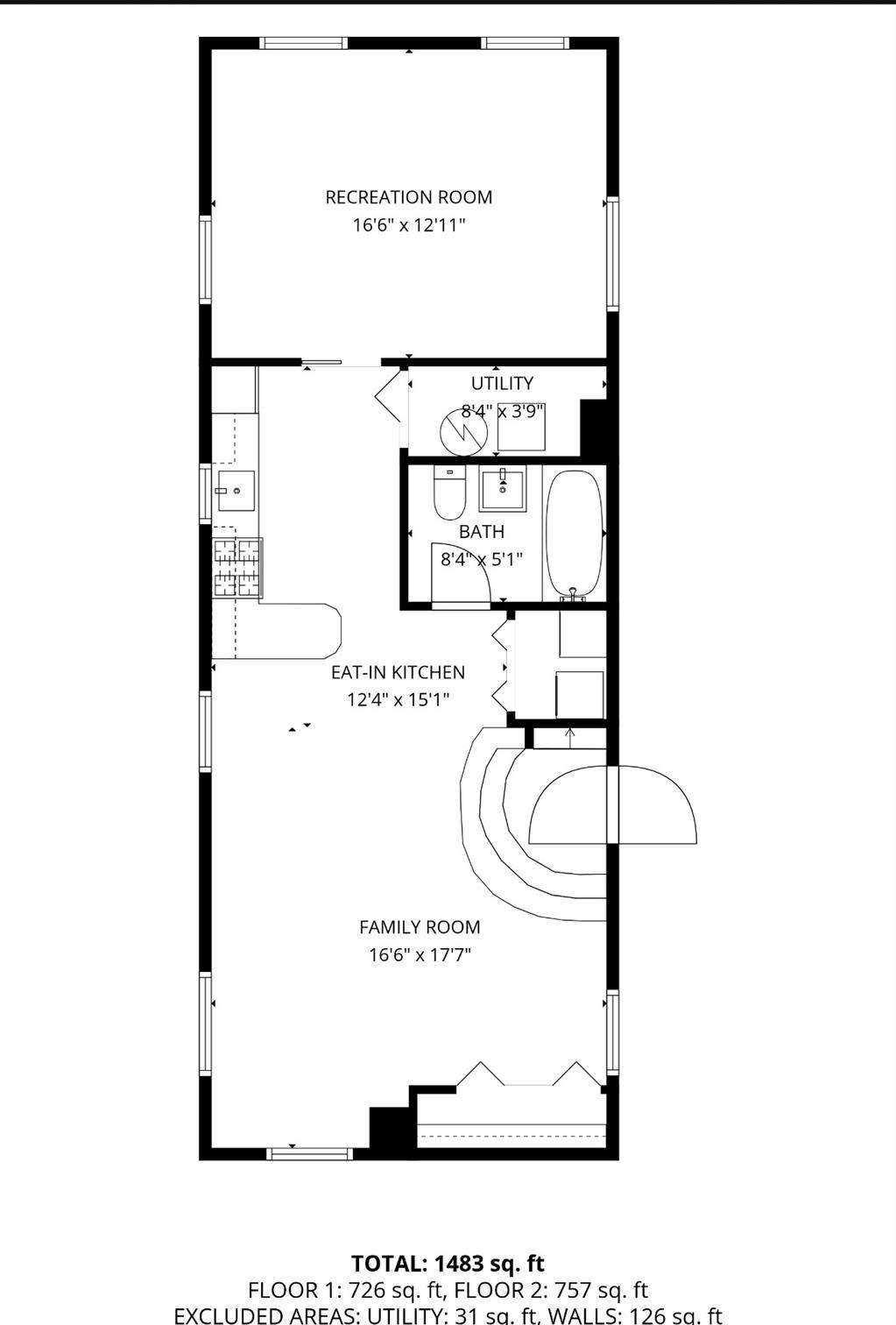
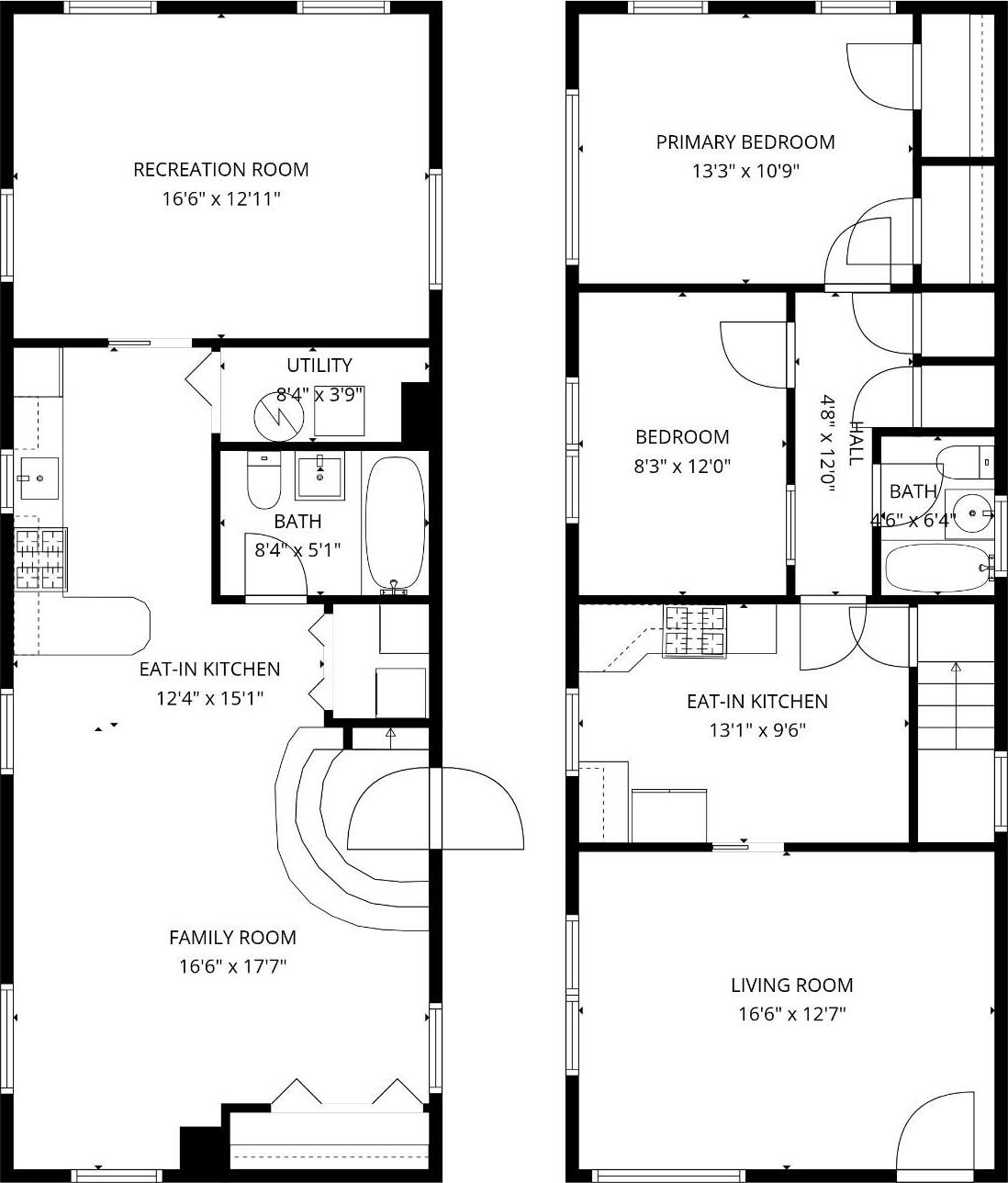
            Welcome To 410 Revere Ave! A Charming Single-family Home In Throgs Neck. The Main Level Features 2 Bedrooms And 2 Full Bathrooms, With A Spacious Layout That’s Ready For Your Personal Touch. The Fully Finished Walkout Basement Provides A Large Additional Bedroom, Private Entrance, And Endless Possibilities, Perfect For Extended Living Space, Guest Suite, Or Home Office. Recent Updates Include A New Boiler (nov. 2023), New Water Heater (july 2025), And A Roof That’s Only 10 Years Old, Offering Peace Of Mind For Years To Come. Property Being Sold As Is** Showings On Tuesdays And Thursdays Only, Please Book Accordingly***
| Location/Town | New York | 
| Area/County | Bronx | 
| Post Office/Postal City | Bronx | 
| Prop. Type | Single Family House for Sale | 
| Style | Traditional | 
| Tax | $6,147.00 | 
| Bedrooms | 2 | 
| Total Rooms | 6 | 
| Total Baths | 2 | 
| Full Baths | 2 | 
| Year Built | 1930 | 
| Basement | Full | 
| Construction | Brick | 
| Lot SqFt | 2,500 | 
| Cooling | Wall/Window Unit(s) | 
| Heat Source | Baseboard | 
| Util Incl | Sewer Available, Trash Collection Public | 
| Days On Market | 33 | 
| Parking Features | Detached | 
| School District | Contact Agent | 
| Middle School | Call Listing Agent | 
| Elementary School | Contact Agent | 
| High School | Contact Agent | 
| Features | First floor bedroom, original details | 
| Listing information courtesy of: Exit Realty DKC | |
