Tel: 718-896-0777
Cell: 347-219-2037
Fax: 718-896-7020








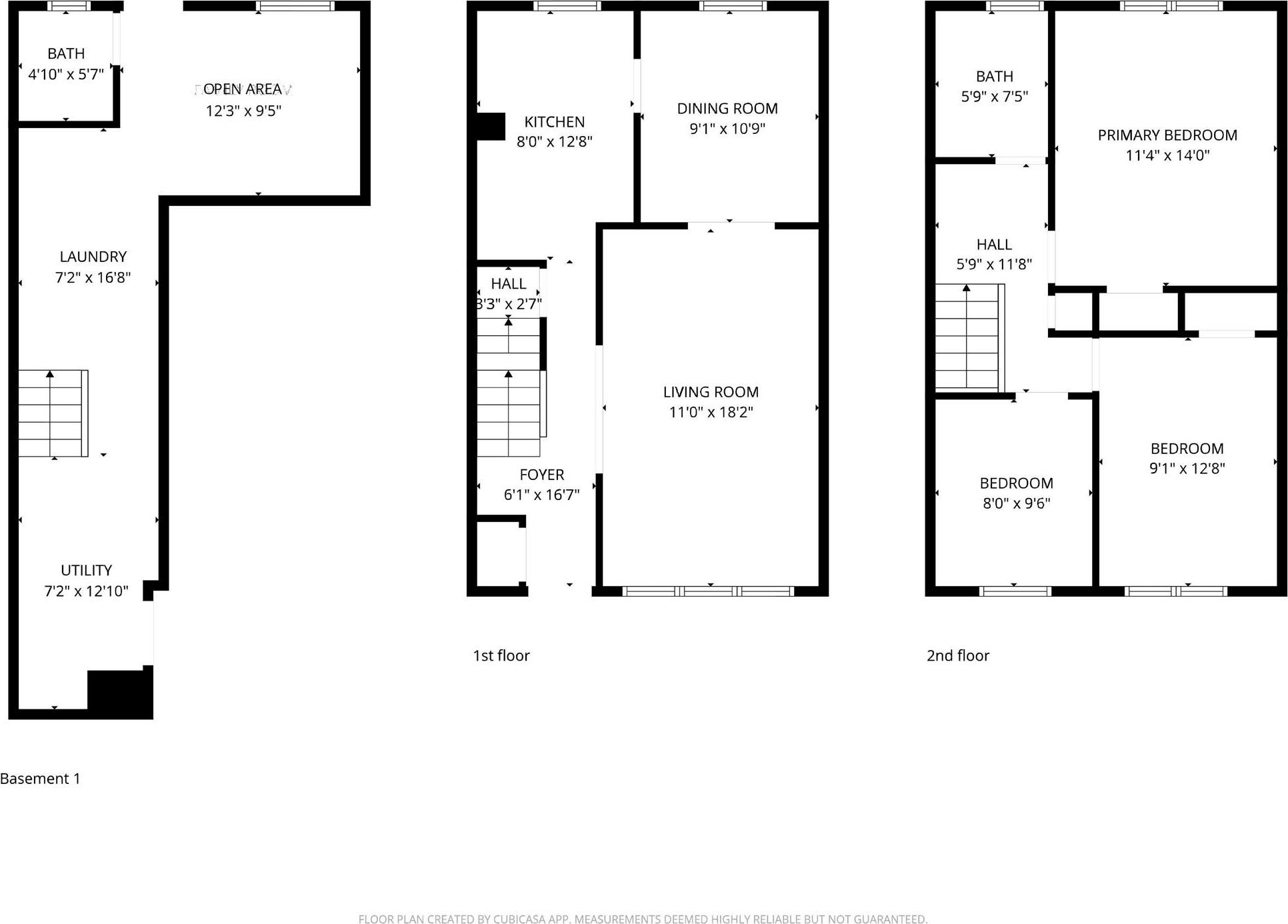
Single-family Home With A Brick Exterior Located On A Quiet Block. This Duplex Features Three Bedrooms And One And A Half Bathrooms. There Is Also A Basement Currently Used For Storage With Access To The Backyard Garden. The Property Offers A Spacious And Pleasant Backyard. The Home Has Been Owner-occupied For Over 40 Years And Is Currently Livable, Though It Does Require Some Updates And Improvements. With Some Work, It Has Incredible Potential. A Great Opportunity To Make This House Your Own, Don’t Miss It.
| Location/Town | New York |
| Area/County | Bronx |
| Post Office/Postal City | Bronx |
| Prop. Type | Single Family House for Sale |
| Style | Other |
| Tax | $5,635.00 |
| Bedrooms | 3 |
| Total Rooms | 6 |
| Total Baths | 2 |
| Full Baths | 1 |
| 3/4 Baths | 1 |
| Year Built | 1950 |
| Basement | Finished |
| Construction | Brick |
| Lot SqFt | 1,964 |
| Cooling | Wall/Window Unit(s) |
| Heat Source | Baseboard, Other |
| Util Incl | Natural Gas Available, Sewer Connected, Water Connected |
| Days On Market | 6 |
| Parking Features | Driveway, Garage |
| Tax Assessed Value | 32460 |
| School District | Bronx 11 |
| Middle School | Bronx Health Sciences High Sch |
| Elementary School | Ps 105 Sen Abraham Bernstein |
| High School | Pelham Preparatory Academy |
| Features | Other, primary bathroom |
| Listing information courtesy of: Stephen Kaufman Real Estate | |