RealtyDepotNY
Cell: 347-219-2037
Fax: 718-896-7020










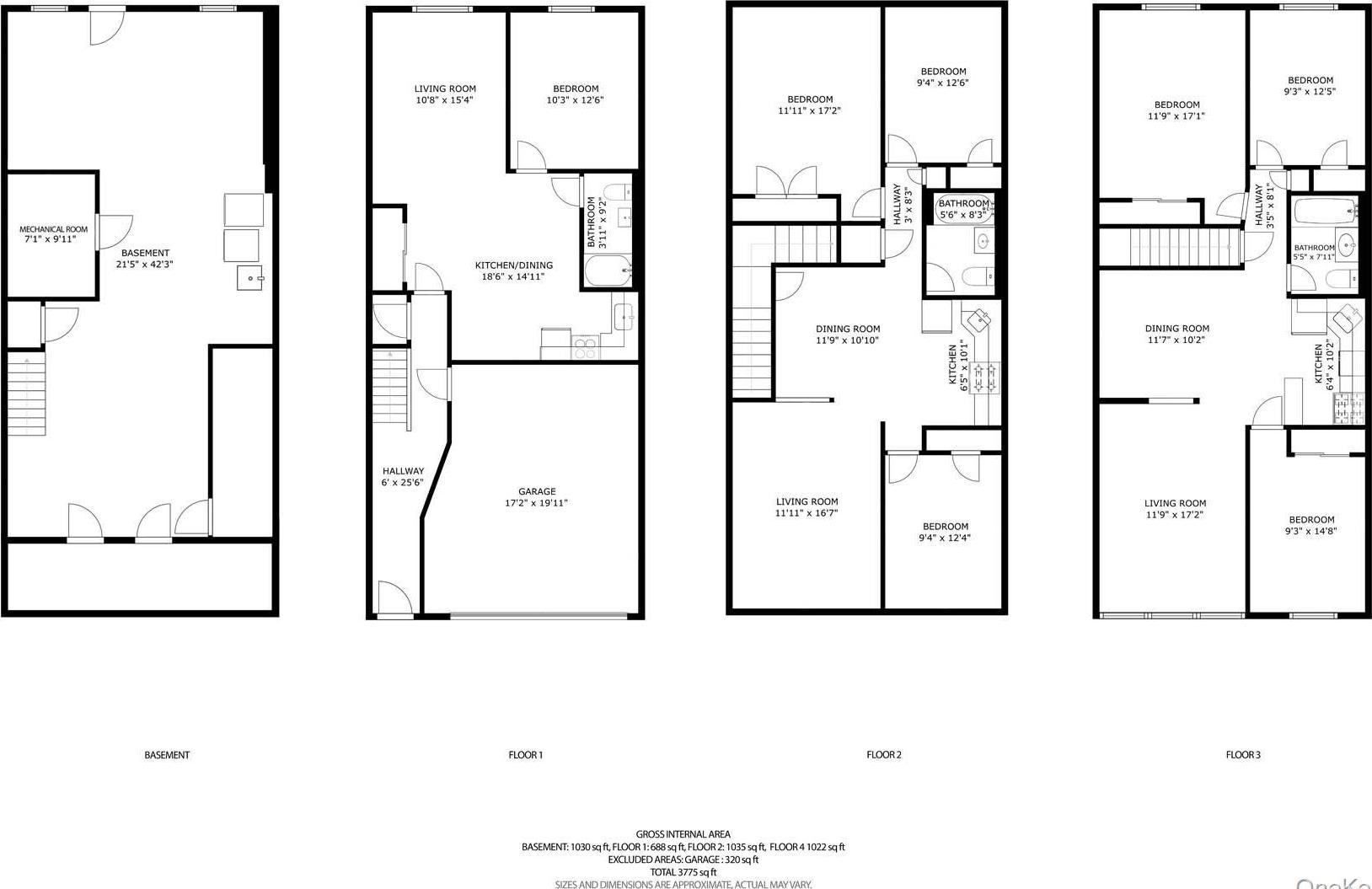
A/o No More Showings. Fully Occupied Multifamily House In Woodlawn. Unit 1 - 3 Bed Unit 2 - 3 Bed Unit 3 - 1 Bed Net Operating Income $29, 976/year. This Property Features Three Updated Units: A 1-bedroom, 1-bath Apartment On The First Floor With Access To The Garage, A Spacious 3-bedroom, 1-bath Apartment On The Second Floor; And Another 3-bedroom, 1-bath Apartment On The Top Floor. Each Unit Offers Generous Room Sizes, Great Natural Light, And Modern Finishes. Whether You're Looking To Live In One Unit And Rent Out The Others Or Seeking A Fully Income-producing Investment Property, This Is A Fantastic Opportunity In One Of The Bronx’s Most Desirable Neighborhoods. Close To Transportation, Shopping, And All That Woodlawn Has To Offer.
| Location/Town | New York |
| Area/County | Bronx |
| Post Office/Postal City | Bronx |
| Prop. Type | Single Family House for Sale |
| Tax | $8,580.00 |
| Year Built | 1965 |
| Construction | Brick |
| Total Units | 3 |
| Lot SqFt | 3,000 |
| Cooling | Wall/Window Unit(s) |
| Heat Source | See Remarks |
| Util Incl | Cable Connected, Electricity Connected, Natural Gas Connected, Phone Connected, Sewer Connected, Water Connected |
| Days On Market | 34 |
| Units | 3 |
| Features | Open kitchen |
| Listing information courtesy of: Compass Greater NY, LLC | |