RealtyDepotNY
Cell: 347-219-2037
Fax: 718-896-7020



















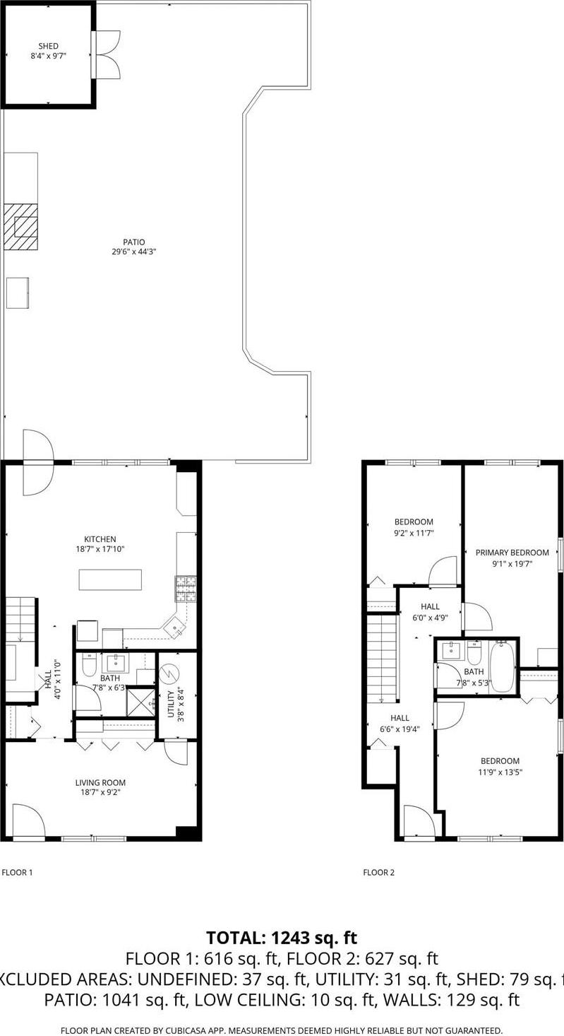
Renovated 3-family Brick Home In Prime Hunts Point – Income-producing & Low Maintenance Welcome To 1321 Lafayette Ave, A Solid Brick Semi-detached 3-family Home Offering Over 3, 100 Sq Ft Of Fully Upgraded Living Space. This Is A Turnkey Investment Opportunity In One Of The Bronx’s Most Rapidly Developing Neighborhoods. The Layout Includes A Spacious 3-bedroom, 2-bath Duplex And Two 2-bedroom, 1-bath Units. All Units Are Currently Occupied By Reliable Tenants, Delivering Immediate Income. The Property Is Being Sold As-is, Offering A Seamless Transition For Investors. The Property Brings In $8250 While The Expenses Are Close To $2000. Cap Rate= 6.25% Extensive Renovations Have Already Been Completed, Including A Newer Roof, Updated Gas Boiler, New Windows, Plumbing, Heating System, And Water Heater. With All Major Systems Updated, This Is A Low-maintenance Property With Strong Long-term Value. Additional Highlights Include A Private Fenced Backyard, Large Multi-car Driveway, And R6 Zoning—providing Future Development Potential. Annual Property Taxes Are Under $8, 000, Maximizing Your Return. Conveniently Located Near The 6 Train, Major Bus Lines, I-95, And The Bronx River Parkway, This Property Offers Excellent Access To Transit, Schools, And Local Amenities. Whether You're Expanding Your Portfolio Or Seeking A Hands-off Investment With Upside, This Property Delivers Immediate Cash Flow, Long-term Appreciation, And Minimal Upkeep. Opportunities Like This Are Rare. Don’t Miss It.
| Location/Town | New York |
| Area/County | Bronx |
| Post Office/Postal City | Bronx |
| Prop. Type | Single Family House for Sale |
| Tax | $7,879.00 |
| Total Baths | 3 |
| Full Baths | 3 |
| Year Built | 2000 |
| Basement | Finished |
| Construction | Brick |
| Total Units | 3 |
| Lot SqFt | 2,900 |
| Cooling | Wall/Window Unit(s) |
| Heat Source | Natural Gas, Other |
| Util Incl | Natural Gas Connected, Trash Collection Public, Water Available |
| Days On Market | 68 |
| Parking Features | Driveway |
| Units | 3 |
| Features | Other |
| Listing information courtesy of: Coldwell Banker American Homes | |