RealtyDepotNY
Cell: 347-219-2037
Fax: 718-896-7020


























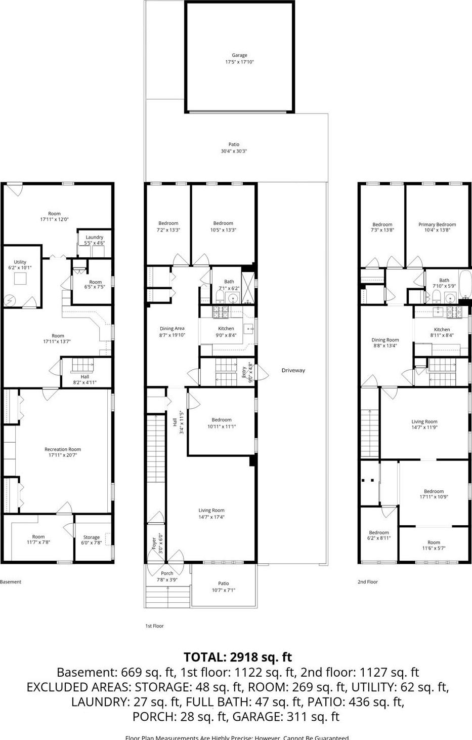
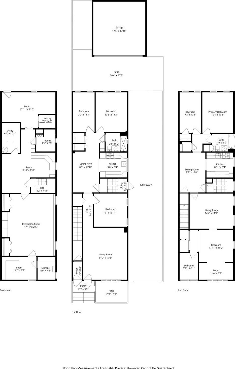
Welcome To This Large Semi-detached Brick Two Family Home Ideally Located In The Heart Of Bensonhurst. This Well Maintained Property Offers Generous Living Space And An Excellent Layout, Making It Perfect For Both End Users And Investors. Each Unit Features A Classic And Functional Floor Plan With A Formal Living And Dining Room Combination, A Kitchen With A Separate Dining Area, Three Bedrooms, And A Full Bathroom. The Apartments Boast High Ceilings, Abundant Natural Light, And Ample Closet Space, With Each Unit Offering Over 1, 200 Square Feet Of Living Space And Its Own Private Entrance. An Interior Staircase Conveniently Connects Both Units And The Basement, While Additional Access To The Lower Level Is Available Through The Side Entrance And Rear Yard. The Full Sized Basement Offers Excellent Versatility And Includes A Laundry Area, Utility Room, And Abundant Storage With Recreation Space. Additional Highlights Include A Shared Driveway Leading To A Private Two-car Garage And Fenced In Yard Space. Both Units Are Clean, Well Maintained, And Move-in Ready, Presenting A Fantastic Opportunity In One Of Brooklyn's Most Established And Convenient Neighborhoods, Close To Shopping, Dining, Transportation And Local Amenities. This Home Will Be Delivered Vacant.
| Location/Town | New York |
| Area/County | Brooklyn |
| Post Office/Postal City | Brooklyn |
| Prop. Type | Single Family House for Sale |
| Style | Other |
| Tax | $11,567.00 |
| Bedrooms | 6 |
| Total Baths | 2 |
| Full Baths | 2 |
| Year Built | 1930 |
| Basement | Full, Walk-Out Access |
| Construction | Brick |
| Total Units | 2 |
| Lot Size | 25x100 |
| Lot SqFt | 2,480 |
| Cooling | Wall/Window Unit(s) |
| Heat Source | Natural Gas |
| Util Incl | Cable Available, Electricity Connected, Natural Gas Connected, Sewer Connected, Trash Collection Public, Water Connected |
| Condition | Actual |
| Patio | Porch |
| Days On Market | 2 |
| Lot Features | Back Yard, Near Public Transit, Near Shops |
| Parking Features | Common, Garage |
| Tax Lot | 50 |
| Units | 2 |
| School District | Brooklyn 20 |
| Middle School | Jhs 227 Edward B Shallow |
| Elementary School | Ps 205 Clarion |
| High School | New Utrecht High School |
| Features | First floor bedroom, first floor full bath, eat-in kitchen |
| Listing information courtesy of: Daniel Gale Sothebys Intl Rlty | |