RealtyDepotNY
Cell: 347-219-2037
Fax: 718-896-7020























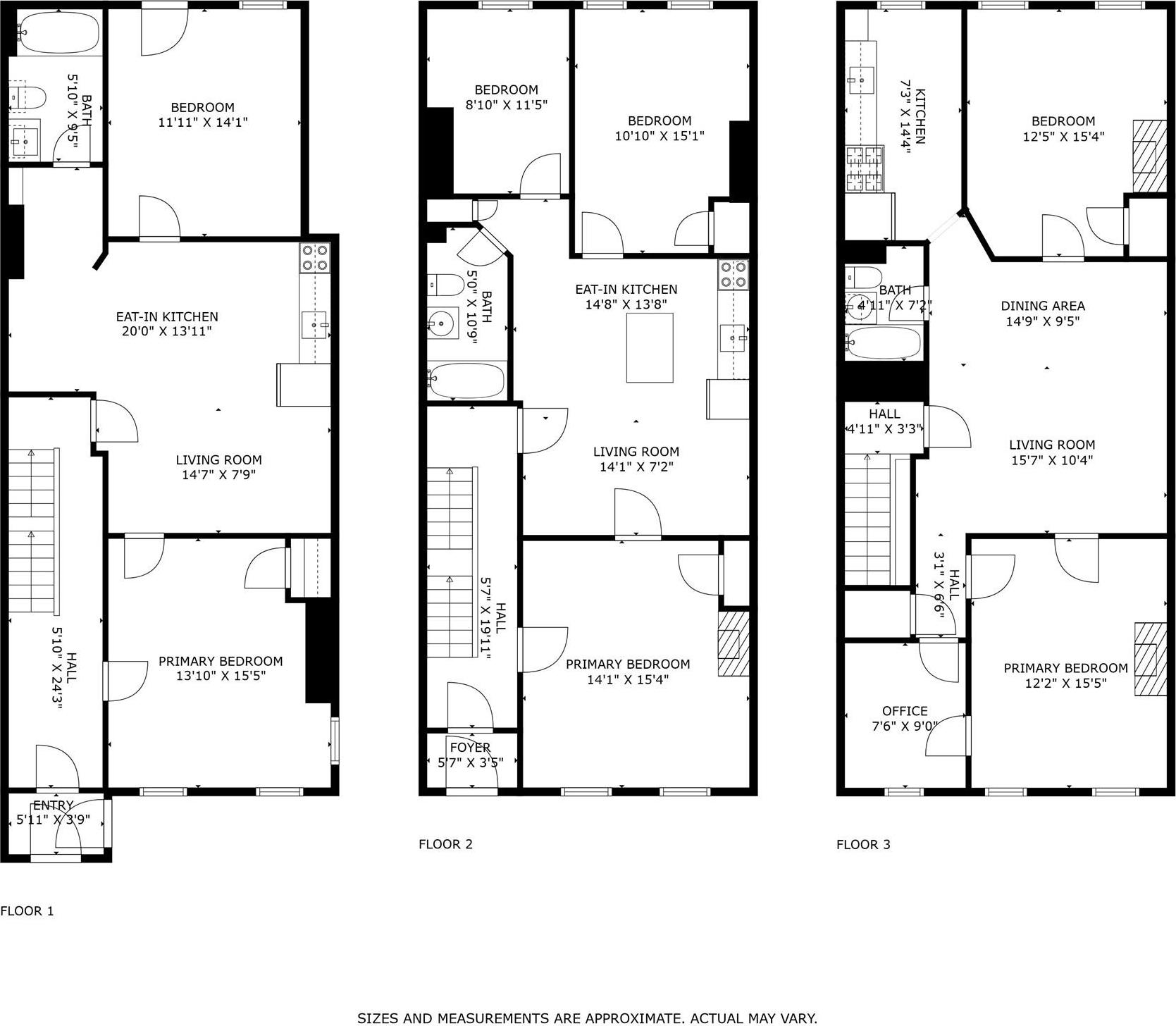
Legal 2 Family W/ Full Finished Basement & Backyard! This Great Investment Property Is A Legal 2 Family With 3 Units And A Full Finished Basement Located In The Heart Of Bushwick Right Between Wilson Ave And Central Ave. It Is Only 3 Short Blocks Away From Wilson Ave L Train Station And Irving Square Park. Steps Away From Several Bus Stops. It Is Surrounded By Stores, Groceries, Coffee Shops, Bars, And Restaurants. 0.5 Miles To Chauncey St J, Z Train Station. This Property Is An Investor’s Dream. It Features: - Ground Floor: 2br/1ba Unit W/ Private Access To The Backyard - 2nd Floor: 3br/1ba Unit - 3rd Floor: Renovated 4br/1ba Unit - Full Finished Basement With Kitchenette And Full Bath - Each Apartment Features Hardwood Floors, Eat-in Kitchen, Stainless Steel Appliances, Granite Countertops, Windows In Each Room And High Ceilings - Large Backyard And Front Yard - Roof Was Completely Replaced 3 Years Ago Lot: 20 X 100 Ft Building: 20 X 45 Ft Zoning: R6 Far: 1.35; Max Far: 2.43 Taxes: $2, 993/yr Great Investment Opportunity!
| Location/Town | New York |
| Area/County | Brooklyn |
| Post Office/Postal City | Brooklyn |
| Prop. Type | Single Family House for Sale |
| Tax | $2,956.00 |
| Bedrooms | 9 |
| Total Baths | 3 |
| Full Baths | 3 |
| Year Built | 1915 |
| Basement | Finished, Full |
| Construction | Frame |
| Total Units | 3 |
| Lot Size | 20 x 100 f |
| Lot SqFt | 2,000 |
| Cooling | Wall/Window Unit(s) |
| Heat Source | Natural Gas |
| Util Incl | Electricity Available, Natural Gas Available, Water Available |
| Days On Market | 1 |
| Parking Features | On Street |
| Tax Assessed Value | 92460 |
| Units | 3 |
| School District | Brooklyn 32 |
| Middle School | Evergreen Ms-Urban Exploration |
| Elementary School | Ps/Is 384 Frances E Carter |
| High School | Brooklyn School For Math And R |
| Features | Eat-in kitchen, granite counters, high ceilings |
| Listing information courtesy of: Capri Jet Realty Corp | |