RealtyDepotNY
Cell: 347-219-2037
Fax: 718-896-7020









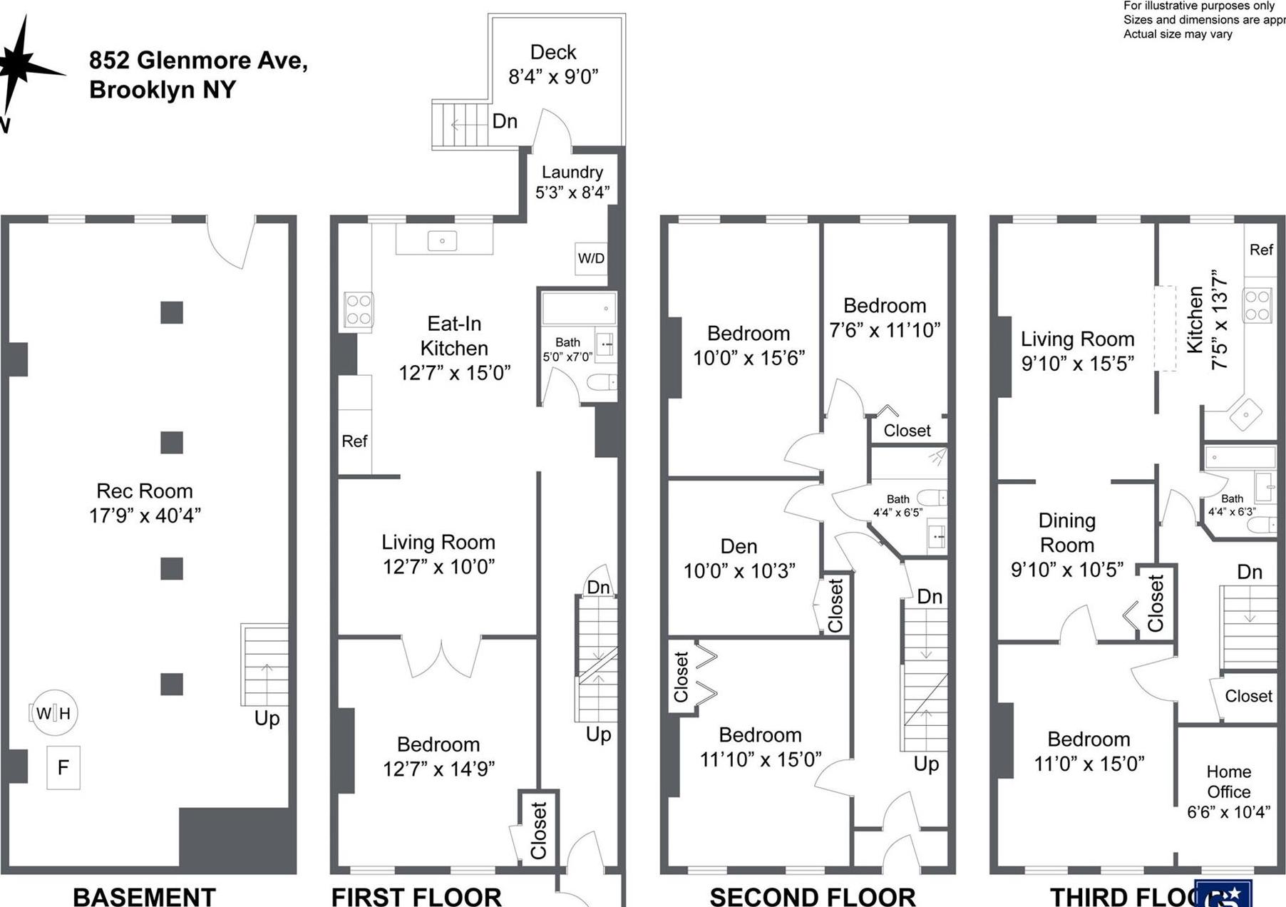
This Well Maintained three-family Home—currently Operating As A two-family Residence—dating Back To 1899 still Maintains Its Historic Charm. The Property Features Six Bedrooms And Three Bathrooms Across Three Distinct Floors And Will Be Delivered Vacant. The First And Second Floor Is An Owner’s Duplex With Four Bedrooms. On The First Floor There Is A King-sized Bedroom With Double-paneled Doors Leading To A Spacious Living Room. The Second Floor Has A Large Bedroom which Comfortably Accommodates A King-sized Bed, While The Two Additional Rooms Are Perfectly Suited For Queen-sized Beds. All The Bedrooms Are Bathed In Natural Light. An Extra Room On This Second Floor Provides Flexible Space That Could Serve As A Den Or Be Adapted To Suit Other Needs. The Open Concept Living, Dining, And Kitchen Area are Highlighted By The Kitchen’s Original Rustic Copper Tin Ceilings. There Is A Washer And Dryer Hookup And Direct Access To The Backyard Leading To A Cozy Porch—an Ideal Spot For Enjoying A Morning Coffee Or A Small Gathering. Additionally, A Side Entrance Enhances The Unit’s Accessibility. A Recently Finished Basement, Accessible From Both The Main Level And The Backyard, Offers Versatile Space For Storage, Recreation, Or Further Customization. The Third Floor Unit Spans The Entire Floor, Highlighting A Sun-filled Layout With A Spacious Bedroom And Two Extra Rooms Ideal For An Office, Guest Accommodation, Or Additional Storage. Large Windows Throughout Ensure The Space Remains Bright And Airy. additional Practical Features Include Oil Heating, Two Gas Meters, One Hot Water Heater, And Four Electric Meters. Located Conveniently Near Public Transportation, Parks, Schools, Shopping, And Dining, This Home Presents A Rare Opportunity To Own A Property With A Flexible Layout, Charming Historic Details, And Thoughtful Modern Updates.
| Location/Town | New York |
| Area/County | Brooklyn |
| Post Office/Postal City | Brooklyn |
| Prop. Type | Single Family House for Sale |
| Style | A-Frame, Traditional |
| Tax | $2,216.00 |
| Bedrooms | 6 |
| Total Rooms | 13 |
| Total Baths | 3 |
| Full Baths | 3 |
| Year Built | 1899 |
| Basement | Finished, Full |
| Construction | Brick, Brownstone, Other |
| Lot SqFt | 1,850 |
| Cooling | Wall/Window Unit(s) |
| Heat Source | Oil |
| Util Incl | Water Available |
| Days On Market | 59 |
| Tax Assessed Value | 62640 |
| School District | Brooklyn 19 |
| Middle School | Liberty Avenue Middle School |
| Elementary School | Ps 158 Warwick |
| High School | Transit Tech Career And Tech E |
| Features | First floor bedroom, ceiling fan(s), eat-in kitchen, open kitchen |
| Listing information courtesy of: Coldwell Banker Reliable R E | |