RealtyDepotNY
Cell: 347-219-2037
Fax: 718-896-7020
















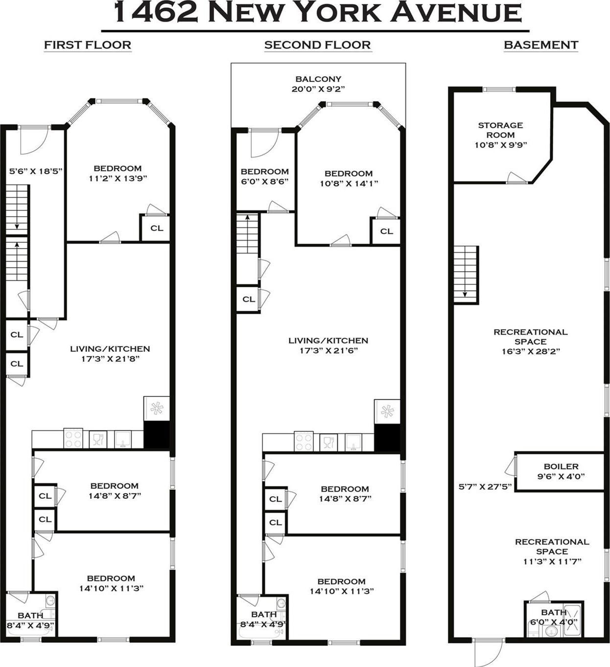
Beautifully Renovated Two-family Semi-attached Home In East Flatbush, Brooklyn, Offering Modern Finishes And Spacious Living Throughout. Each Unit Features Three Generously Sized Bedrooms And One Full Bathroom, Complemented By Hardwood Floors, Recessed Lighting, And Thoughtfully Updated Kitchens And Bathrooms That Create A Bright, Contemporary Feel. The Home Also Includes A Fully Finished Basement With A Full Bathroom And Private Entrance, Providing Additional Versatile Space Ideal For Recreation, Extended Living, Or Storage. Outside, The Property Offers A Private Gated Driveway And A Private Backyard, Perfect For Relaxing, Entertaining, Or Enjoying Outdoor Gatherings. Conveniently Located Near Shopping, Neighborhood Restaurants, Parks, And Public Transportation, This Home Offers Easy Access To Everything That Makes Brooklyn Living Vibrant And Convenient. East Flatbush Continues To Be A Sought-after Neighborhood Known For Its Strong Community Character And Accessibility Throughout The Borough. A Great Opportunity For Both Homeowners And Investors Alike.
| Location/Town | New York |
| Area/County | Brooklyn |
| Post Office/Postal City | Brooklyn |
| Prop. Type | Single Family House for Sale |
| Tax | $6,096.00 |
| Bedrooms | 6 |
| Total Baths | 2 |
| Full Baths | 2 |
| Year Built | 1910 |
| Basement | Finished |
| Construction | Brick |
| Total Units | 2 |
| Cooling | None |
| Heat Source | Baseboard |
| Util Incl | Cable Available, Electricity Connected, Natural Gas Connected, Phone Available, Sewer Connected, Trash Collection Public |
| Days On Market | 15 |
| Parking Features | Driveway, Off Street, Private |
| Units | 2 |
| Features | First floor bedroom, eat-in kitchen, open floorplan, open kitchen, recessed lighting |
| Listing information courtesy of: Landmark Elite Homes Corp | |