RealtyDepotNY
Cell: 347-219-2037
Fax: 718-896-7020
















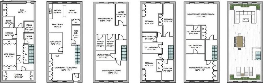
Bring Your Contractor And Your Designer And Create The Magical Home You've Always Envisioned In This Rare Park Slope Townhouse, Perfectly Located On A Tree-lined Block Of 7th Street Between 5th And 6th Avenues. The Owners Have Pristinely Gutted This Property And Installed New Subfloors, Making This The Ultimate Blank Canvas Townhouse For You To Craft A Masterpiece, While Saving You Hundreds Of Thousands Of Dollars In Renovation Costs And Many Months Of Demolition And Paperwork. Spanning 3 Floors, And A Full Basement, This High Ceiling, Expansive Space Is Primed For Customization To Suit Your Unique Vision Of Modern Luxury Living. Fully Renovated Homes In Park Slope Are Commanding Millions More, Offering You A Lucrative Opportunity To Build Equity While Designing Your Dream Space. Key Features: - Prime *park Slope* Location Near Top Schools, Parks, And Amenities - 18.33 X 100 Lot Size, With A Maximum Extension Buildable To 3, 666 Sq Ft Of Living Area (currently At 2, 475 Sq Ft Of Living Area) - High Ceilings, Large Windows, And Large Backyard And Rooftop Don’t Miss Out On This Exceptional Opportunity To Build A Custom Luxury Home In Park Slope
| Location/Town | New York |
| Area/County | Brooklyn |
| Post Office/Postal City | Brooklyn |
| Prop. Type | Single Family House for Sale |
| Tax | $8,744.00 |
| Bedrooms | 7 |
| Total Rooms | 13 |
| Total Baths | 6 |
| Full Baths | 6 |
| Year Built | 1899 |
| Basement | Full |
| Construction | Brownstone |
| Lot SqFt | 1,833 |
| Cooling | None |
| Heat Source | Natural Gas |
| Util Incl | None |
| Days On Market | 1 |
| Parking Features | Off Street |
| Tax Assessed Value | 178560 |
| Tax Lot | 61 |
| School District | Brooklyn 15 |
| Middle School | Boerum Hill School For Interna |
| Elementary School | Ps 39 Henry Bristow |
| High School | Brooklyn High School Of The Ar |
| Features | Open floorplan |
| Listing information courtesy of: Leonardo Jo | |