RealtyDepotNY
Cell: 347-219-2037
Fax: 718-896-7020










































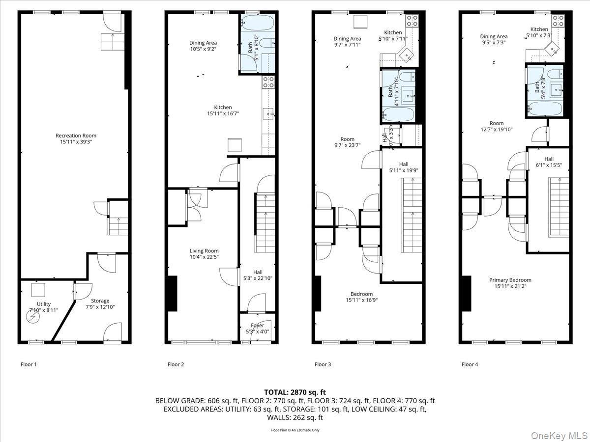
For Sale – Vacant Turnkey Move-in Ready Classic 3-family Townhouse With Expansion Potential 37 Jewel Street, Greenpoint, Brooklyn Discover Timeless Brooklyn Charm At 37 Jewel Street, A Vacant, Turnkey Move-in Ready Three-family Townhouse Offering Approximately 2, 600 Sq. Ft. Of Living Space On A 16.75’ X 100’ Lot In The Heart Of Greenpoint. Built In 1901, This Property Beautifully Blends Pre-war Character With Modern Potential—a Rare Opportunity To Own A Classic Three-family Income-producing Townhouse Or Create A Custom Single-family Dream Home. Property Highlights • Approx. 2, 600 Sq. Ft. Of Interior Living Space • Lot: 16.75’ X 100’ | Building: 16.7’ X 50’ • Zoning: R6b | Far 2.0 • Vacant – Delivered With No Tenants • Turnkey Move-in Ready Condition • Three Free-market Apartments Layout & Features • First Floor: Open-concept Layout With Flexible Bedroom Divisions — Ideal For Owner Occupancy Or Strong Rental Income. • Second Floor: Bright Apartment With Open Bedrooms, Eat-in Kitchen, 1 Bath, And Flexible Configuration For Additional Bedrooms Or A Home Office. • Third Floor: Similar Layout With Open Bedrooms, Eat-in Kitchen, And One Bath — Easily Reconfigured To A 1- Or 2-bedroom Layout. Major Feature – Full Grade Basement With Duplex Potential This Property Features A Full Grade Ground-level Basement With Front Egress Walkout Access To Jewel Street And A Rear Exit To The Backyard, Making It Ideal To Convert Into A Duplex With The First-floor Apartment. Perfect For A Spacious Owner’s Unit Or Increased Rental Value. The Basement Also Offers Excellent Ceiling Height, Providing Additional Living, Recreation, Or Storage Space. Outdoor Space Enjoy An 834 Sq. Ft. Private Backyard, Perfect For Entertaining, Gardening, Or Future Design Possibilities. Investment Potential Located In One Of Brooklyn’s Most Desirable Rental Markets, Greenpoint Continues To See High Rental Demand And Stable Pricing. With Three Free-market Units And A Prime Location Just Three Blocks From The G Train At Nassau Avenue, 37 Jewel Street Is A Strong Income-producing Asset With Significant Long-term Upside. Location & Lifestyle • G Train: Nassau Avenue (3 Blocks) • L Train: Lorimer Stop • B24 Bus & Bqe Nearby • Mcgolrick Park & Mccarren Park Just Minutes Away • Surrounded By Local Favorites Like Oxomoco, Five Leaves, Le Fanfare & Variety Coffee 37 Jewel Street Offers Both Immediate Value And Future Expansion Potential — A Classic Greenpoint Townhouse Ready To Serve As A Smart Investment Or An Exceptional Single-family Residence. Contact Today To Schedule A Private Showing And Explore The Possibilities Life In Greenpoint Offers An Unmatched Blend Of Style And Convenience, With Acclaimed Destinations Like Oxomoco, Five Leaves, And Le Fanfare Just Steps Away. From Artisanal Coffee At Variety To Boutique Shopping And Lively Cocktail Lounges, The Neighborhood’s Sophisticated Yet Laid-back Charm Makes It One Of Brooklyn’s Most Coveted Addresses Contact Today To Schedule A Private Showing And Explore The Possibilities.
| Location/Town | New York |
| Area/County | Brooklyn |
| Post Office/Postal City | Brooklyn |
| Prop. Type | Single Family House for Sale |
| Tax | $7,669.00 |
| Total Baths | 3 |
| Full Baths | 3 |
| Year Built | 1901 |
| Basement | Finished, Full |
| Construction | Stucco |
| Total Units | 3 |
| Lot SqFt | 1,675 |
| Cooling | None |
| Heat Source | Natural Gas |
| Util Incl | Electricity Connected, Natural Gas Connected |
| Days On Market | 29 |
| Parking Features | None |
| Units | 3 |
| School District | Brooklyn 14 |
| Features | First floor bedroom, eat-in kitchen, high ceilings |
| Listing information courtesy of: Keller Williams Realty Liberty | |