RealtyDepotNY
Cell: 347-219-2037
Fax: 718-896-7020










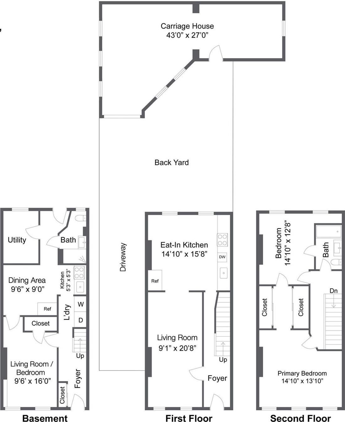
This Legal Two-family Home Offers A Rare Opportunity To Own A Property With A Private Driveway And A Spacious Carriage House In The Rear. Located On A Quiet, Tree-lined Block, It Combines Comfort, Flexibility, And Character In One Of Brooklyn’s Most Desirable Neighborhoods. The Main Residence Is Arranged As Two Units: A One-bedroom Apartment On The Lower Level And A Two-bedroom Duplex Above. Both Offer Newer Kitchens And Bathrooms, Along With Original Hardwood Floors And Charming Period Details That Bring Warmth To Each Space. At The Back Of The Property Sits A 2, 400 Sq. Ft. Carriage House, Offering A Blank Canvas With Endless Potential To Be Transformed Into Something Remarkable. Whether You Envision Additional Living Space, A Creative Retreat, Or Simply Room To Grow, The Possibilities Are Wide Open. With Its Mix Of Updated Interiors, Original Charm, Private Parking, And The Rare Bonus Of A Full Carriage House, This Property Stands Out As A Unique Opportunity In Brooklyn.
| Location/Town | New York |
| Area/County | Brooklyn |
| Post Office/Postal City | Brooklyn |
| Prop. Type | Single Family House for Sale |
| Tax | $4,792.00 |
| Bedrooms | 3 |
| Total Baths | 2 |
| Full Baths | 2 |
| Year Built | 1925 |
| Basement | Finished |
| Construction | Brick |
| Total Units | 2 |
| Lot SqFt | 2,323 |
| Cooling | Wall/Window Unit(s) |
| Heat Source | Natural Gas, Other |
| Util Incl | Natural Gas Connected, Sewer Connected, Water Connected |
| Days On Market | 8 |
| Parking Features | Driveway |
| Units | 2 |
| School District | Brooklyn 15 |
| Middle School | Is 136 Charles O Dewey |
| Elementary School | Ps 32 Samuels Mills Sprole |
| High School | Brooklyn Frontiers High School |
| Features | Other |
| Listing information courtesy of: Coldwell Banker Reliable R E | |