Tel: 718-896-0777
Cell: 347-219-2037
Fax: 718-896-7020













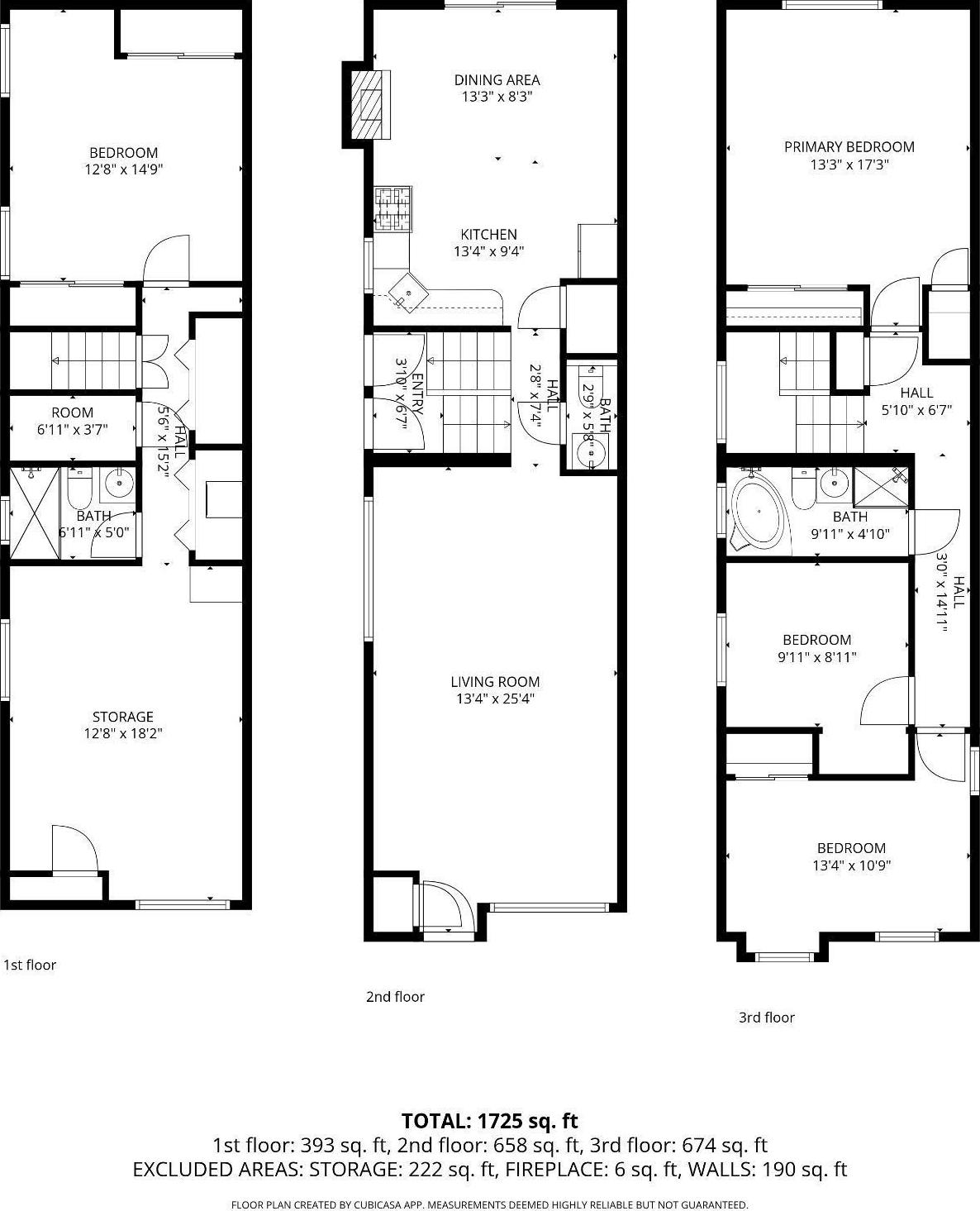
Welcome To This Cozy, Move-in-ready Townhouse Located On A Quiet, Private Block In Bergen Beach. This Well-maintained Home Offers Comfort And Convenience, Featuring A 3-bedroom, Large Eat In Kitchen, Private Driveway, Yard, And Deckâperfect For Relaxing Or Entertaining. The Home Includes A Spacious Two-room Basement With A Separate Side Entrance, Ideal For Extended Family, A Home Office, Or Additional Living Space. With A Functional Layout And Inviting Atmosphere, This Townhouse Is Perfect For Homeowners Seeking Privacy And Versatility. Close To Major Highways, Shopping, Transportation, And All.
| Location/Town | New York |
| Area/County | Brooklyn |
| Post Office/Postal City | Brooklyn |
| Prop. Type | Single Family House for Sale |
| Style | A-Frame |
| Tax | $6,267.00 |
| Bedrooms | 3 |
| Total Rooms | 7 |
| Total Baths | 3 |
| Full Baths | 3 |
| Year Built | 1998 |
| Basement | Finished, Full |
| Construction | Aluminum Siding |
| Lot SqFt | 2,455 |
| Cooling | Multi Units |
| Heat Source | Baseboard |
| Util Incl | Cable Available, Electricity Available, Natural Gas Available |
| Days On Market | 59 |
| Parking Features | Driveway |
| Association Fee Includes | Sewer, Trash |
| School District | Contact Agent |
| Middle School | Call Listing Agent |
| Elementary School | Contact Agent |
| High School | Contact Agent |
| Features | Eat-in kitchen, granite counters |
| Listing information courtesy of: Real Broker NY LLC | |