RealtyDepotNY
Cell: 347-219-2037
Fax: 718-896-7020












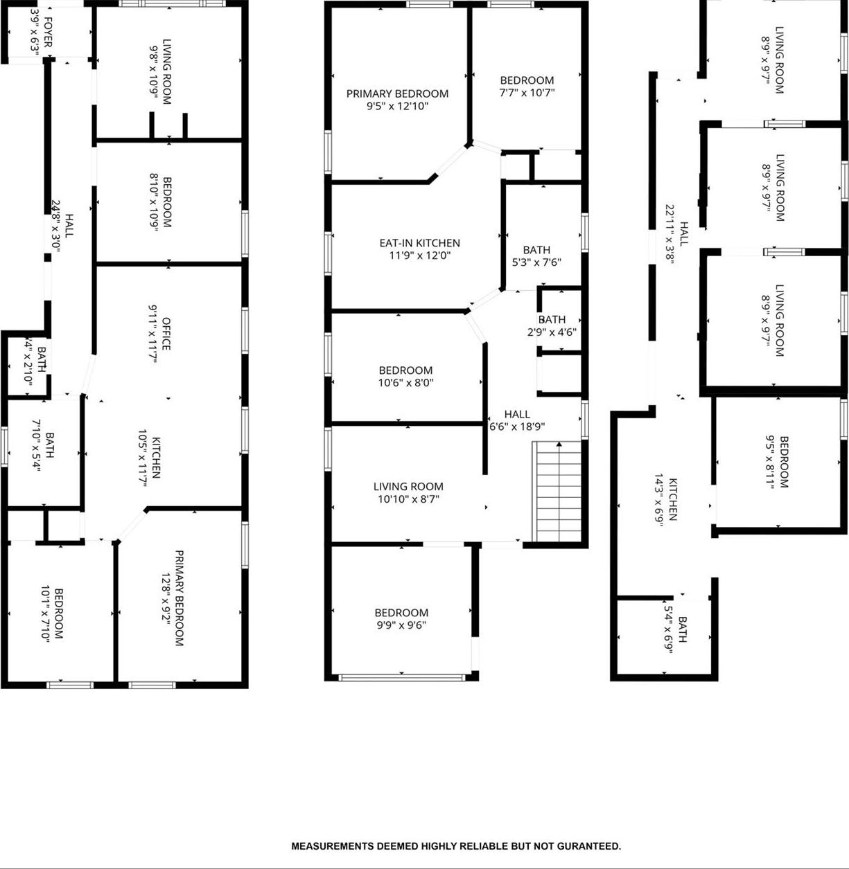
Great Investment Opportunity In Brighton Beach! Discover This Detached Three-family Located In The Desirable Manhattan Beach Neighborhood. This Spacious Property Features Three Well-maintained Apartments Perfect For Investors And Extended Families. Lower Level Consists Of 4 Bedrooms And 1 Bath, First, The Floor Consists Of 4 Bedrooms, 1.5 Bathrooms, A Generous Living Room Space And A Functional Layout And The Second Floor Consists Of 5 Bedrooms And 1.5 Bathrooms Great For Extended Family. Each Tenant Is Responsible For Their Own Utilities Expenses, Ensuring Low Operating Cost And Strong Income Potential For The New Owner. Conveniently Situated Near Shopping, School, Public Transportation, And The Beach, This Property Combines Excellent Location And Investment Value. Don't Miss This Opportunity To Own A High-demand Multi-family Home In Brighton Beach! Rental Income Presently Is: Ground Floor $3, 287 Per Month. First Floor $3, 016 Per Month Second Floor $2, 700 Per Month
| Location/Town | New York |
| Area/County | Brooklyn |
| Post Office/Postal City | Brooklyn |
| Prop. Type | Single Family House for Sale |
| Tax | $7,712.00 |
| Bedrooms | 13 |
| Total Baths | 5 |
| Full Baths | 5 |
| Year Built | 1915 |
| Construction | Other |
| Total Units | 3 |
| Lot SqFt | 1,773 |
| Cooling | Wall/Window Unit(s) |
| Heat Source | Hot Water |
| Util Incl | Natural Gas Available |
| Days On Market | 99 |
| Parking Features | None |
| Units | 3 |
| School District | Brooklyn 21 |
| Middle School | Is 98 Bay Academy |
| Elementary School | Ps 225 Eileen E Zaglin |
| High School | Abraham Lincoln High School |
| Features | First floor bedroom, first floor full bath |
| Listing information courtesy of: Coldwell Banker Reliable R E | |