RealtyDepotNY
Cell: 347-219-2037
Fax: 718-896-7020














































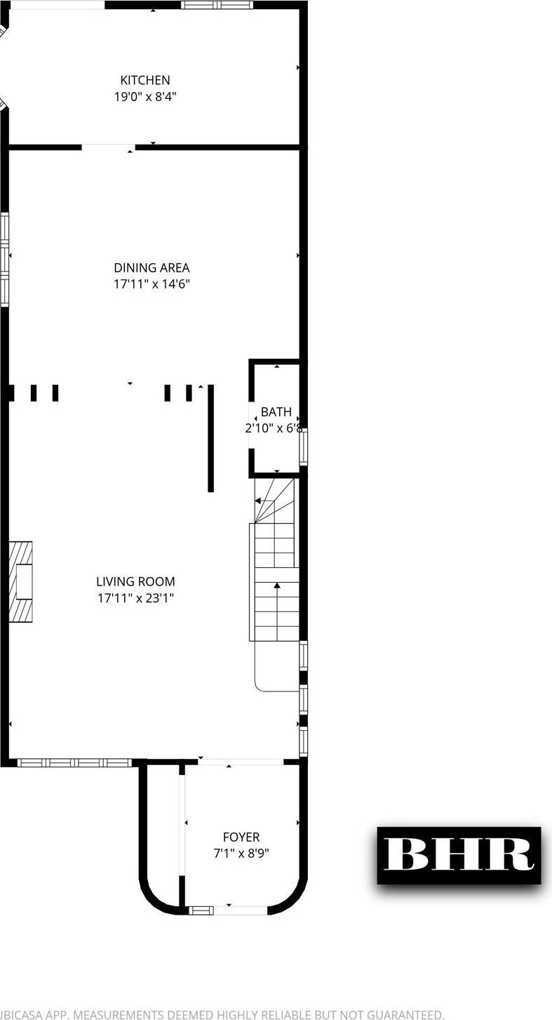
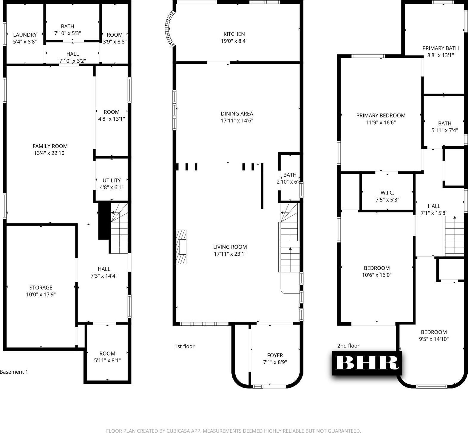
Manhattan Beach Ocean View One Of A Kind 1 Family Detached Side Hall Brick. Spacious Entrance Foyer With Large Closet. Large Eat In Kitchen With Radiant Heated Tile Floors, Granite Counters, And Access To Back Terrace. Living Room With Gas Fireplace, Hardwood Floors And Open Access To Formal Dining Room, 1/2 Bath With Radiant Heated Floors. The Second Floor Has A Primary Bedroom With Full Bath, Large Walk In Closet And Private Balcony. 2nd And 3rd Bedrooms Are Large With Double Closets, Hardwood Floors And Recessed Lighting. Another Terrace Is Off A Bedroom With Views Of The Beach And Ocean. 2nd Bathroom Is Fully Tiled. The Basement Is A Recreational Oasis. Beautiful Large Bar With Refrigerator For Beverages, Sink And Cabinets With Lots Of Counter Space. Also, A Sauna And Full Bath, Huge Walk-in Closet And Laundry Room Completes The Space. Gas Heat. 2 Zone Central A/c, Garage, Private Driveway
| Location/Town | New York |
| Area/County | Brooklyn |
| Post Office/Postal City | Brooklyn |
| Prop. Type | Single Family House for Sale |
| Style | Colonial |
| Tax | $18,435.00 |
| Bedrooms | 3 |
| Total Rooms | 6 |
| Total Baths | 4 |
| Full Baths | 3 |
| 3/4 Baths | 1 |
| Year Built | 1925 |
| Basement | Finished |
| Construction | Brick |
| Lot Size | 31' X 100' |
| Lot SqFt | 3,100 |
| Cooling | Central Air |
| Heat Source | Natural Gas, Radiant |
| Util Incl | Cable Connected, Electricity Connected, Natural Gas Connected, Phone Connected, Sewer Connected, Trash Collection Public, Water Connected |
| Days On Market | 1 |
| Lot Features | Back Yard, Near Public Transit, Near School, Paved |
| Parking Features | Private |
| Tax Lot | 0087 |
| School District | Brooklyn 22 |
| Middle School | James Madison High School |
| Elementary School | Ps 52 Sheepshead Bay |
| High School | James Madison High School |
| Features | Built-in features, ceiling fan(s), crown molding, eat-in kitchen, entertainment cabinets, formal dining, marble counters, primary bathroom, recessed lighting, sauna, soaking tub, storage, walk-in closet(s), washer/dryer hookup, wet bar |
| Listing information courtesy of: Bright Horizons Realty Inc | |