RealtyDepotNY
Cell: 347-219-2037
Fax: 718-896-7020































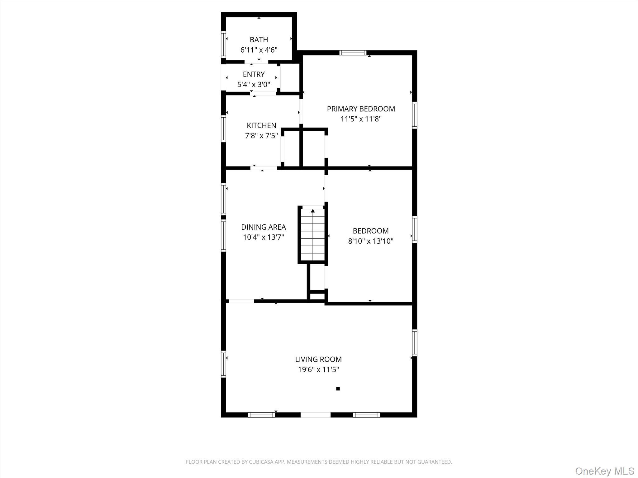
Charming 2-br With Oversized Garage & Modern Updates Walk Out Basement Welcome To This Cozy, Turn-key 2-bedroom, 1-bath Home, Perfectly Blending Comfort And Convenience. The Interior Has Been Thoughtfully Refreshed, Featuring Brand-new Flooring Throughout, A Fully Updated Bathroom, And A Fresh Coat Of Paint From Top To Bottom. The Kitchen Is Ready For Its New Owner With A Full Suite Of Brand-new Appliances. Outdoor Enthusiasts And Hobbyists Will Love The Oversized Detached Garage, Which Includes A Dedicated Workshop Area—perfect For Projects Or Additional Storage. Location & Logistics: Commuter's Dream: Centrally Located Between The Peekskill And Cortlandt Metro-north Stations, Offering A Scenic 50-minute Express Ride To Grand Central. Utilities: Natural Gas Is Already Run To The House For Easy Future Connection. Please Note There Is Currently A Buried Oil Tank On The Property In Use.
| Location/Town | Cortlandt |
| Area/County | Westchester County |
| Post Office/Postal City | Buchanan |
| Prop. Type | Single Family House for Sale |
| Style | A-Frame |
| Tax | $6,021.00 |
| Bedrooms | 2 |
| Total Rooms | 7 |
| Total Baths | 1 |
| Full Baths | 1 |
| Year Built | 1965 |
| Basement | Partial |
| Construction | Block, Fiberglass Siding |
| Lot SqFt | 5,621 |
| Cooling | None |
| Heat Source | Baseboard |
| Util Incl | Natural Gas Available, Sewer Connected, Trash Collection Public, Water Available |
| Days On Market | 22 |
| Parking Features | Attached, Garage |
| Tax Assessed Value | 2675 |
| School District | Hendrick Hudson |
| Middle School | Blue Mountain Middle School |
| Elementary School | Frank G Lindsey Elementary Sch |
| High School | Hendrick Hudson High School |
| Features | First floor bedroom, granite counters |
| Listing information courtesy of: Twin Bridges Properties | |