Tel: 718-896-0777
Cell: 347-219-2037
Fax: 718-896-7020





















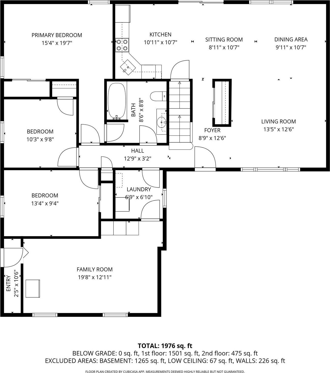
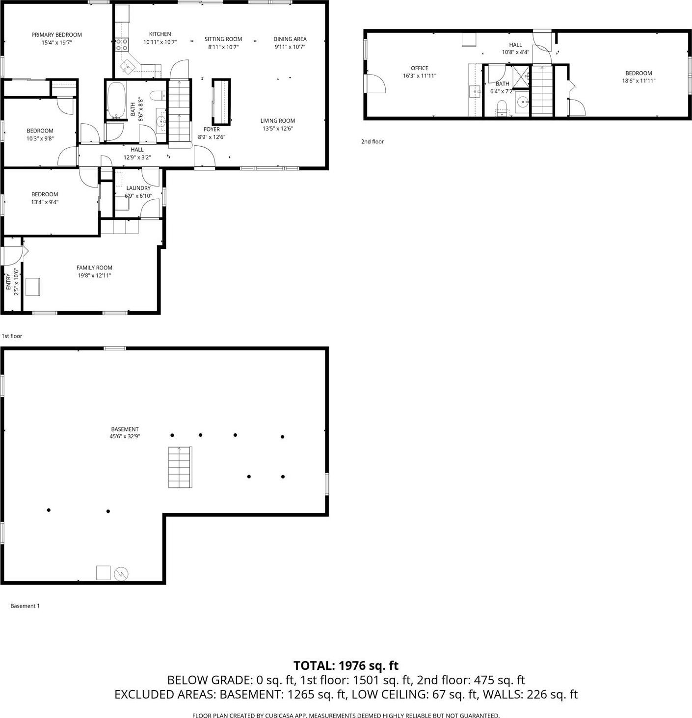
Welcome To This Renovated Farm Ranch, 5 Bedrooms, 2 Full Bathrooms. Situated On A Half-acre Lot, The Property Offers Convenience And Curb Appeal. First-floor Laundry, Updated Kitchen, Bathroom, Windows, And Roof With Solar Panels. Spacious Backyard, Perfect For Potential Horse Property. Just Down The Street To The Allwood Gate Of Connetquot Park, Where You Will Find Miles Of Trails.
| Location/Town | Islip |
| Area/County | Suffolk County |
| Post Office/Postal City | Central Islip |
| Prop. Type | Single Family House for Sale |
| Style | Farmhouse |
| Tax | $8,461.00 |
| Bedrooms | 5 |
| Total Rooms | 10 |
| Total Baths | 2 |
| Full Baths | 2 |
| Year Built | 1966 |
| Basement | Full, Unfinished |
| Construction | Frame |
| Lot SqFt | 20,473 |
| Cooling | None |
| Heat Source | Oil |
| Util Incl | Cable Connected, Electricity Connected, Trash Collection Public, Water Connected |
| Days On Market | 5 |
| Parking Features | Driveway |
| Tax Assessed Value | 25100 |
| School District | Central Islip |
| Middle School | Ralph Reed School |
| Elementary School | Andrew T Morrow School |
| High School | Central Islip Senior High Scho |
| Features | First floor bedroom, first floor full bath, master downstairs |
| Listing information courtesy of: Douglas Elliman Real Estate | |