RealtyDepotNY
Cell: 347-219-2037
Fax: 718-896-7020

























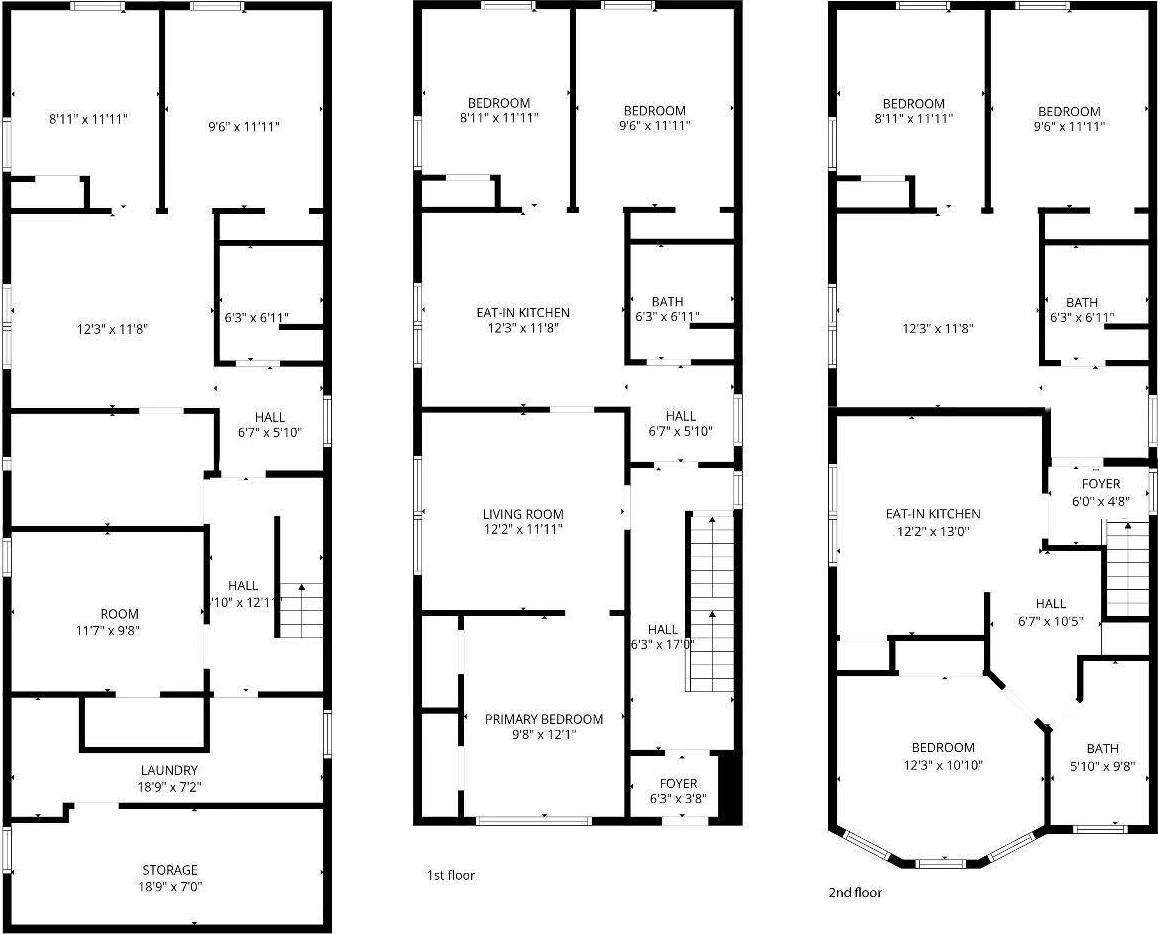
This Is A Fantastic Opportunity To Make This Detached Two-family Home Your Own, Located In The Heart Of College Point. With Abundant Natural Sunlight Throughout The Day, This Investor’s Dream Offers Approximately 2, 048 Sq Ft Of Living Space (building Size: 20x50) On A 2, 500 Sq Ft Lot With R4a Zoning. The Home Features Hardwood Flooring, Split-type Air Conditioning, Two Natural Gas Heaters, Two Hot Water Tanks, And A Fully Finished Basement (with Half Bath Only) With A Separate Entrance. Low Annual Property Taxes Are Approximately $7, 829. Leased Solar Panels Provide Added Energy Efficiency. Enjoy The Oversized Front Deck—a Perfect Space For The Whole Family To Relax—and A Large Backyard. Conveniently Located Just A 10-minute Drive To Flushing And Only Two Blocks From The Q20, Q25, And Q26 Bus Lines. Situated Near College Point Blvd And Just Half A Block From Supermarkets, Restaurants, Pharmacies, Laundromats, And Libraries. Close To Target, Homegoods, And Bj’s As Well. This House Is Ready To Become Your New Home. Priced To Sell—won’t Last!
| Location/Town | New York |
| Area/County | Queens |
| Post Office/Postal City | College Point |
| Prop. Type | Single Family House for Sale |
| Tax | $7,734.00 |
| Bedrooms | 6 |
| Total Baths | 3 |
| Full Baths | 3 |
| Year Built | 1920 |
| Basement | Finished, Full |
| Construction | Frame, Vinyl Siding |
| Total Units | 2 |
| Lot SqFt | 2,500 |
| Cooling | Ductless, Electric |
| Heat Source | Electric, Natural Ga |
| Util Incl | Cable Connected, Electricity Connected, Natural Gas Connected, Sewer Connected, Trash Collection Public, Water Connected |
| Days On Market | 11 |
| Parking Features | On Street |
| Tax Assessed Value | 57180 |
| Units | 2 |
| School District | Queens 25 |
| Middle School | Jhs 185 Edward Bleeker |
| Elementary School | Ps 129 Patricia Larkin |
| High School | Flushing High School |
| Features | First floor bedroom, first floor full bath, eat-in kitchen |
| Listing information courtesy of: B Square Realty | |