RealtyDepotNY
Cell: 347-219-2037
Fax: 718-896-7020


























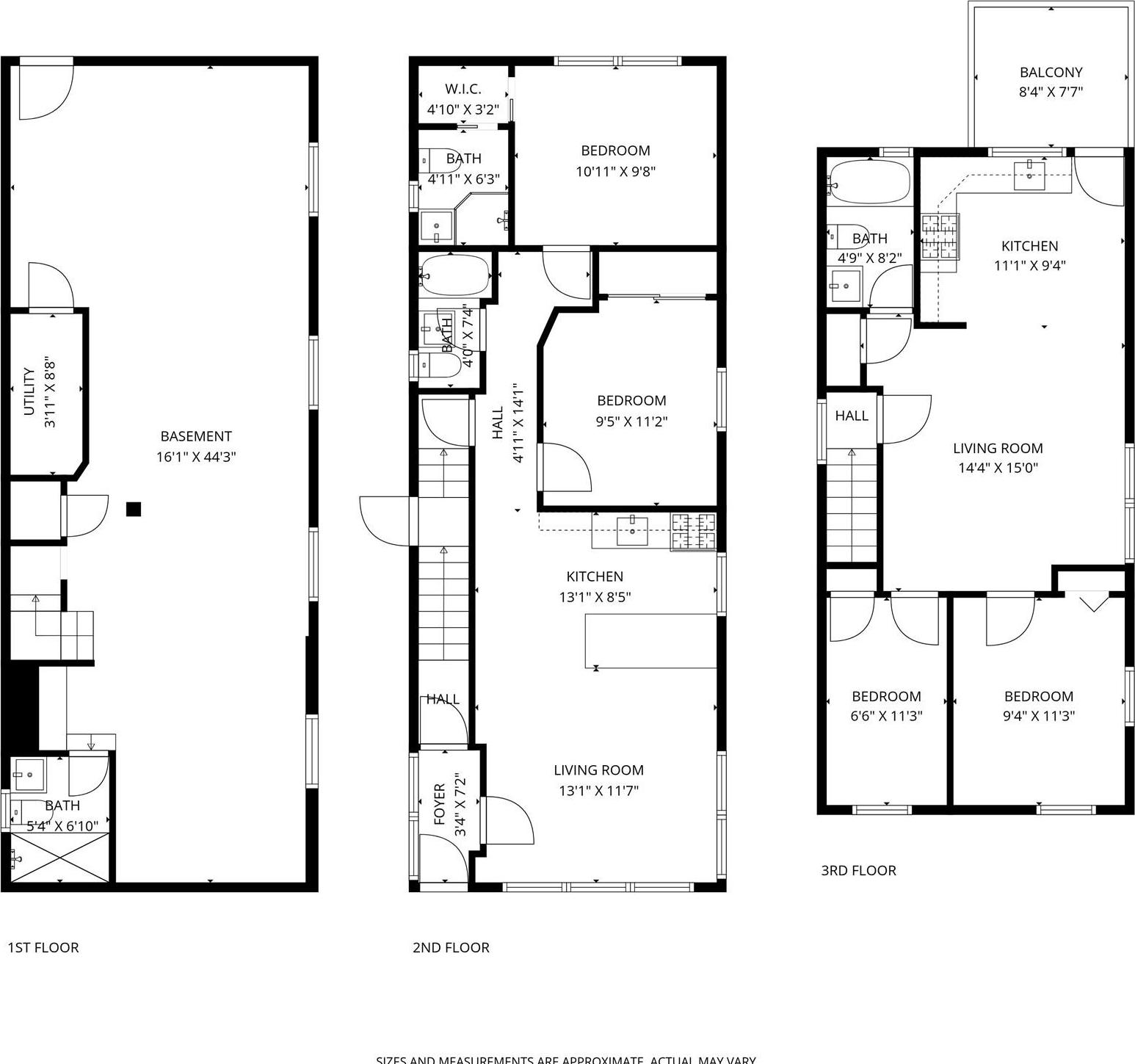
Prepared To Be Delivered To It's New Owner, Situated On A Corner Lot With An Attached Brick Garage, With Every Part Having Just Undergone Renovations. This Property Is A Must See For Anyone Looking To Supplement Their Cost Of Home-ownership. Full Basement With Separate Entrance, With The Owner Being Open To Entertaining Requests For Additions To, Spans The Entirety Of The Properties Footprint, Whether To Be Utilized For Gatherings, A Home Office, Gym, Or Large Storage, The Choice Is Yours. Each Unit Is A 2 Bedroom With Second Floor Also Having A Balcony Leading Straight Out Of The Kitchen, And First Floor Unit Having One Bathroom In Hallway And One Connected To The Main Bedroom. Among The Upgrades And Overall Work Ensuring No Repairs Or Work Needs To Be Done For Long Time To Come, This Property Is Surrounded By Five Different Bus Lanes, Making Public Transportation A Breeze. Among The Many Different Advantages Of This Location, There Are Two Different Schools Within Six Blocks, Two Blocks From Astoria Blvd, And A Plethora Of Stores, Choices Of Eateries, And More, All Within Minutes Of Travel. Reserve Your Showing Today, And Come See For Yourself!
| Location/Town | New York |
| Area/County | Queens |
| Post Office/Postal City | East Elmhurst |
| Prop. Type | Single Family House for Sale |
| Style | Other |
| Tax | $7,689.00 |
| Bedrooms | 4 |
| Total Baths | 3 |
| Full Baths | 3 |
| Year Built | 1930 |
| Basement | Finished, Full, Walk-Out Access |
| Construction | Stucco |
| Total Units | 2 |
| Lot SqFt | 2,100 |
| Cooling | None |
| Heat Source | Natural Gas, Other |
| Util Incl | Electricity Connected, Natural Gas Connected, Sewer Connected, Water Connected |
| Features | Balcony |
| Days On Market | 31 |
| Lot Features | Corner Lot |
| Parking Features | Garage, Private |
| Tax Assessed Value | 56400 |
| Units | 2 |
| School District | Queens 30 |
| Middle School | Is 227 Louis Armstrong |
| Elementary School | Ps 148 |
| High School | Newcomers High School |
| Features | Other |
| Listing information courtesy of: Keller Williams Realty Liberty | |