RealtyDepotNY
Cell: 347-219-2037
Fax: 718-896-7020























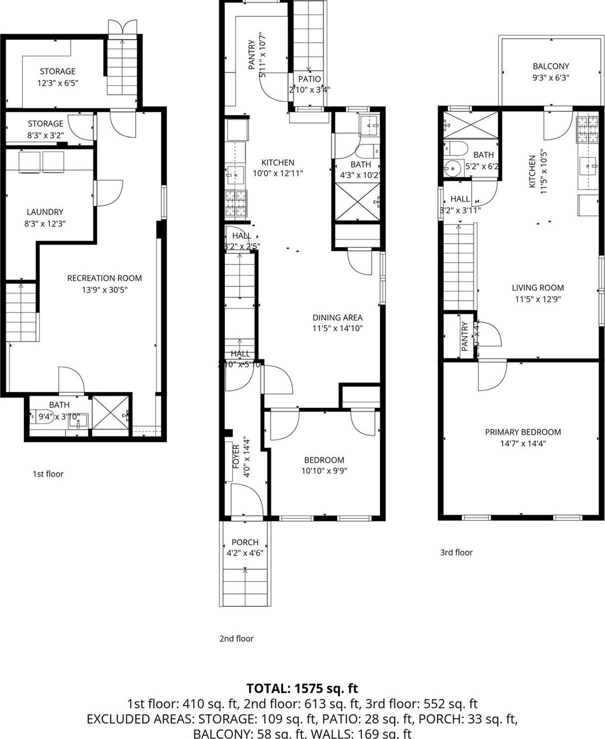
Welcome To 22-29 73rd Street, A Detached Two-family Home Located In The Desirable Astoria Heights Section Of East Elmhurst. This Meticulously Maintained Property Offers A Flexible Layout, Featuring A First-floor Bedroom And An Open Concept Living Space. The Second-floor Features A Large Bedroom, An Airy Living Space And A Balcony Perfect For Relaxing Outdoors. The Finished Basement Offers Extra Usable Living Space. Its A Legal Two-family Home Offering Excellent Income Potential In A Sought-after Neighborhood. The Home Features A Brand-new Roof And New Siding. Outside A Large Private Garage Providing Ample Space For Cars And Storage. Centrally Located, This Home Offers Quick Access To Manhattan, Brooklyn, Long Island And Laguardia Airport With The Grand Central Parkway, Brooklyn-queens Expressway (bqe) And Laguardia Airport Just Minutes Away. Ease Of Travel With Public Transportation Via The M60 And Q69 And W/n Train. The Neighborhood Is Walkable And Bike-friendly, Leading Directly To The Scenic Astoria Park. Nearby Ditmars Boulevard Offers A Mix Of Shops, Restaurants And Everyday Conveniences. This Inviting Home Is Move-in Ready And Perfectly Suited To Welcome And Create A Fresh Set Of Lasting Memories.
| Location/Town | New York |
| Area/County | Queens |
| Post Office/Postal City | East Elmhurst |
| Prop. Type | Single Family House for Sale |
| Style | Other |
| Tax | $6,477.00 |
| Bedrooms | 2 |
| Total Baths | 2 |
| Full Baths | 2 |
| Year Built | 1925 |
| Basement | Bilco Door(s), Finished, Full |
| Construction | Vinyl Siding |
| Total Units | 2 |
| Lot SqFt | 2,500 |
| Cooling | Wall/Window Unit(s) |
| Heat Source | Steam |
| Util Incl | Cable Connected, Electricity Connected, Natural Gas Connected, Water Connected |
| Features | Balcony |
| Days On Market | 86 |
| Window Features | Aluminum Frames |
| Parking Features | Covered, Detached, Garage, Off Street, Shared Driveway |
| Units | 2 |
| School District | Queens 30 |
| Middle School | Is 141 Steinway (The) |
| Elementary School | Ps 2 Alfred Zimberg |
| High School | William Cullen Bryant High Sch |
| Features | First floor bedroom, first floor full bath, eat-in kitchen, entrance foyer, pantry, quartz/quartzite counters, recessed lighting, washer/dryer hookup |
| Listing information courtesy of: Keller Williams Realty S I | |