RealtyDepotNY
Cell: 347-219-2037
Fax: 718-896-7020
































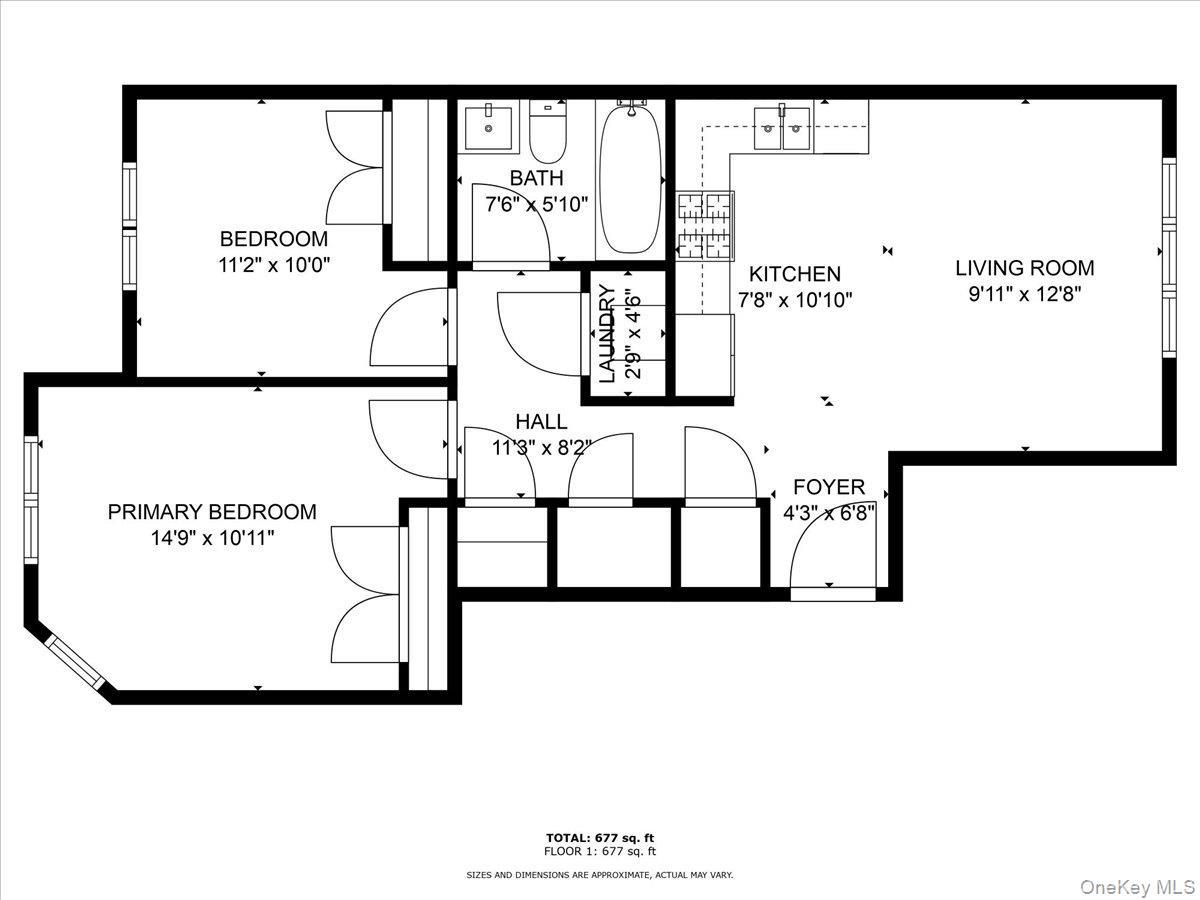
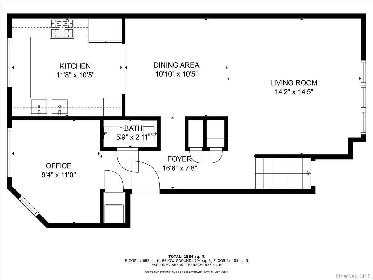
Discover Beach Side Living In This Luxury 2 Family Townhouse Complex Situated On The Beach. Boasting Contemporary Design By Renowned Architect Cetraruddy, Each Townhouse Offers Spacious Living Areas, Gourmet Kitchens With Double Sinks, Marble Counters And Backsplash With Porcelanosa Fixtures, And Private Balconies And Rooftops With Breathtaking Ocean Views And To A Private Dock And Beach Access. This Meticulously Designed Property Features Two Distinct Units. The Lower Unit Offers Two Spacious Bedrooms, A Beautifully Appointed Bathroom, A Bosch Washer-dryer, And An Open-plan Living Area That Flows Seamlessly Into A Modern Kitchen. The Upper Unit Unfolds Across Three Levels, Creating An Expansive Triplex Layout. On The Main Floor, An Inviting Living, Dining, And Kitchen Space Set The Stage For Elegant Entertaining. There Is Also An Additional Room Adjacent To The Kitchen That Can Be Used As A Playroom Or An Office. Upstairs, There Are Three Or Four Generously Sized Bedrooms And A Bathroom, Including A Master Suite With A Luxurious En-suite Bathroom. Ascend To The Top Level To Discover A Stunning Rooftop Terrace, Offering Panoramic Views Of The Coastline-a Serene Retreat For Relaxation And Gatherings. This Townhouse Also Features A Garage With Two Storage Rooms, Ensuring Ample Space And Convenience. This Extraordinary Property Not Only Promises Unparalleled Comfort And Sophistication But Also Presents A Unique Investment Opportunity With Dual Residences, Each Offering Its Own Distinctive Charm And Functionality. Whether As A Private Oasis Or An Income-generating Asset, This Luxury Townhouse Embodies The Pinnacle Of Beachfront Living.
| Location/Town | New York |
| Area/County | Queens |
| Post Office/Postal City | Far Rockaway |
| Prop. Type | Single Family House for Sale |
| Tax | $10,545.00 |
| Bedrooms | 5 |
| Total Baths | 4 |
| Full Baths | 4 |
| Year Built | 2017 |
| Basement | None |
| Construction | Frame, Vinyl Siding |
| Total Units | 2 |
| Lot Size | 60x80 |
| Lot SqFt | 4,800 |
| Cooling | Central Air |
| Heat Source | Natural Gas, Hydro A |
| Util Incl | Electricity Connected, Natural Gas Connected, Sewer Connected, Water Connected |
| Features | Dock, Private Roof |
| Condition | New Construction |
| Days On Market | 40 |
| Parking Features | Private, Attached |
| Tax Lot | 3 |
| Units | 2 |
| School District | Queens 27 |
| Middle School | Jhs 202 Robert H Goddard |
| High School | Rockaway Collegiate High Schoo |
| Features | First floor bedroom, double vanity, high ceilings, marble counters, open floorplan, primary bathroom |
| Listing information courtesy of: Five Towns Miller Realty Inc | |