RealtyDepotNY
Cell: 347-219-2037
Fax: 718-896-7020


































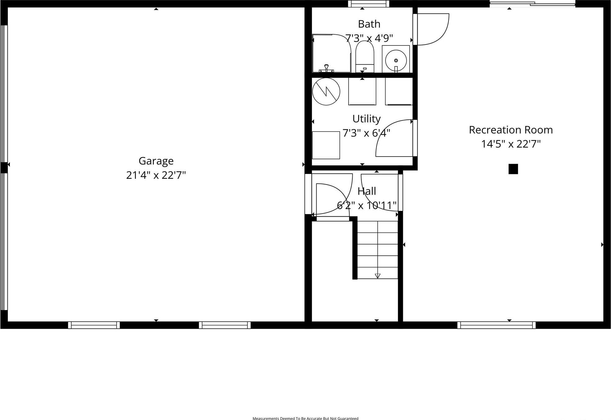
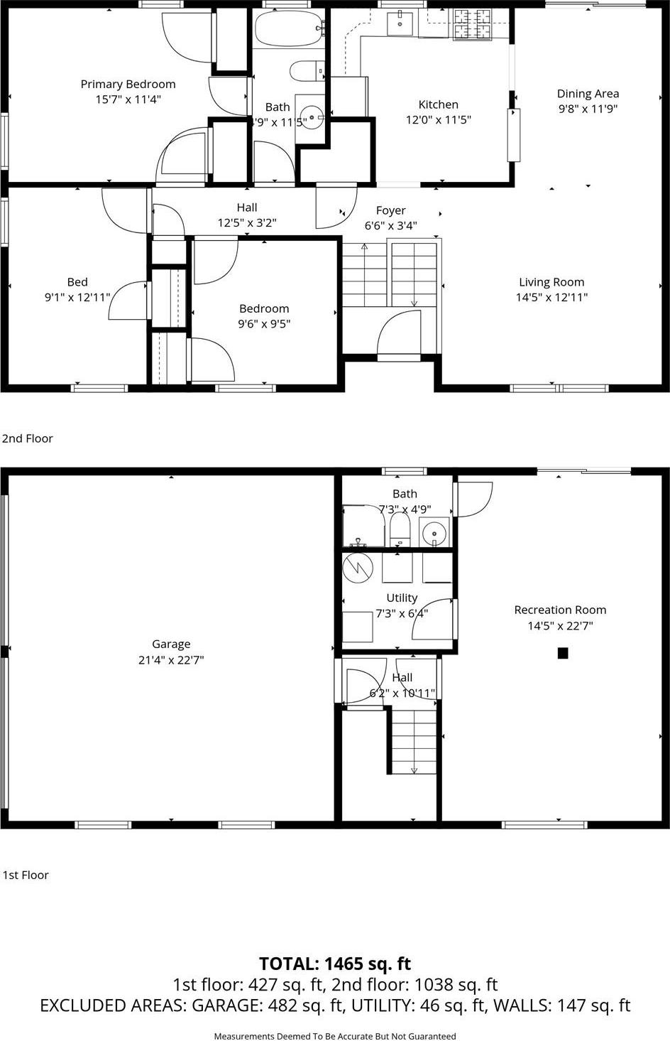
Location At It's Best! This Meticulously Maintained Home Is Just Minutes From Everything! The Main Level Showcases An Updated Kitchen, Three Comfortable Bedrooms, And A Dining Room With A Vaulted Ceiling That Opens To The Deck And Backyard, Filling The Space With Wonderful Natural Light. The Lower Level Offers A Spacious Family Room With Sliders To A Patio And Backyard, A Full Bathroom, A Laundry/utility Room, And A Generous Two-car Garage. Set On A Level, Fully Usable One-acre Lot, The Property Feels Like Your Very Own Private Park. This Home Features Numerous Updates, Including An Andersen Bow Window In The Living Room, A Central A/c System, Oil Burner, Chimney Liner, Well Pump, Water Softener, Front Door, Dishwasher, Refrigerator, Stove, Washer And Dryer, And A New Back Patio. Don't Miss This Home!
| Location/Town | Fishkill |
| Area/County | Dutchess County |
| Prop. Type | Single Family House for Sale |
| Style | Raised Ranch |
| Tax | $8,492.00 |
| Bedrooms | 3 |
| Total Rooms | 7 |
| Total Baths | 2 |
| Full Baths | 2 |
| Year Built | 1996 |
| Basement | Partially Finished, Walk-Out Access |
| Construction | Brick, Vinyl Siding |
| Lot SqFt | 43,560 |
| Cooling | Central Air |
| Heat Source | Baseboard, Oil |
| Util Incl | Cable Available, Electricity Connected, Propane, Trash Collection Private, Water Connected |
| Property Amenities | Refrigerator, oven/stove, dishwasher, microwave, washer, dryer, ceiling fans, curtains, rods, blinds |
| Days On Market | 27 |
| Parking Features | Driveway, Garage, Garage Door Opener |
| Tax Assessed Value | 431000 |
| School District | Wappingers |
| Middle School | Van Wyck Junior High School |
| Elementary School | Myers Corners |
| High School | John Jay Senior High School |
| Features | First floor full bath, cathedral ceiling(s), ceiling fan(s), chandelier, entrance foyer, formal dining, granite counters, his and hers closets, open kitchen, soaking tub, washer/dryer hookup |
| Listing information courtesy of: KW MidHudson | |