RealtyDepotNY
Cell: 347-219-2037
Fax: 718-896-7020























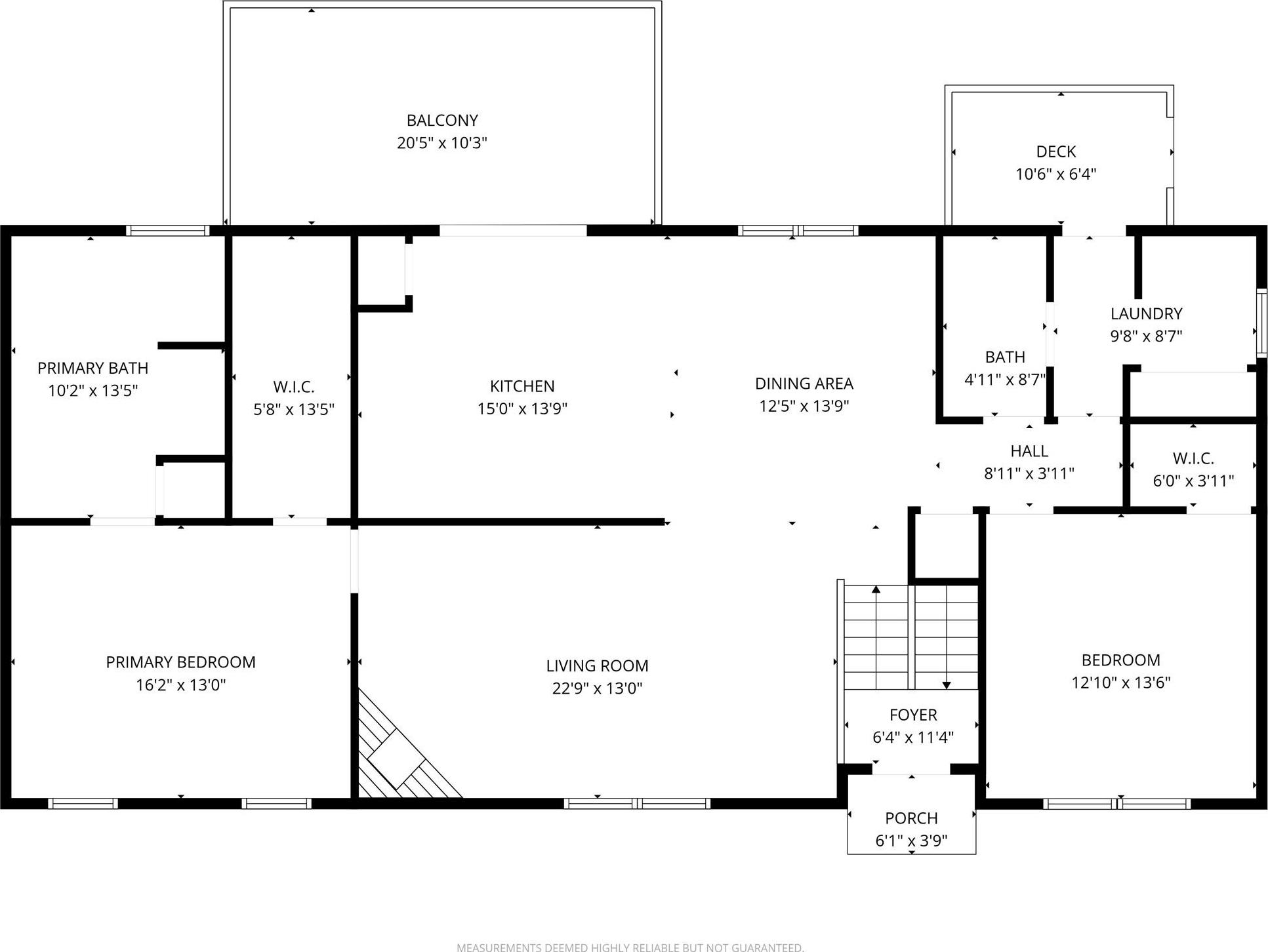
Welcome To Your Dream Equestrian Property!! This Gorgeous Working Horse Farm Is Situated On Almost 5 Acres, With Direct Access To The Wallkill Valley Rail Trail (part Of The Empire Trail System), Features Four Pastures, One Riding Ring, Horse Barn And A Large Mechanic/hobbyist's Workshop. There Is Ample Room For 10 Horses, With A 4-stall Shed Row, Four Run In Sheds, One Outdoor Riding Arena, Perfect For Lessons/training, Round Pen, Riding Arena With Quartz Lights. Entire Property Surrounded By Wood And Electric Fencing. Horse Barn With Electricity (updated In 2015) With Ground Faults, Hydrant For Water, Tack And Feed Room. Chicken And Rabbit Coop With Separate Paddock/pen Attached To The Barn. Step Inside This Homey Oversized Bi-level Featuring A Great Room, Adorned With A Cozy Fireplace, Gorgeous Hardwood Floors, Formal Dining Room, Seating At The Large Kitchen Granite Peninsula With Plenty Of Cherry Wood Cabinets (42") Overlooking A Good-sized Deck. Sizable Pantry Space And Stainless-steel Appliances. The Primary Bedroom Is Spacious With A Walk-in Closet, Large Ensuite With Soaking Jacuzzi Tub And Separate Shower. The Secondary Bedroom Is On The Other Side Of The Home For Privacy, Full Bathroom (shower), Marble Floors And Counter. Laundry On Main Level With Separate Entrance. The Walk Out Lower Level, Finished With 18" Porcelain Tile And Is A Blank Canvas With Room For Entertaining, Lounging, Home Office, Den, Possible Bedrooms. The Full Bathroom Is Equipped With 14" Porcelain Tile, Soaking Tub, Granite Counter With Linen Closet. The Heated Detached 24' X 56' Garage/workshop Is A Mechanic's, Car Enthusiast Or Hobbyist Dream. This Outbuilding Has 10' Sidewalls, Insulated Garage Door And Walls, Separate Workshop, Offering Heating With A Half Bathroom (5000 Watt Electric Heater). Conveniently Located Minutes From Nys Thruway, Majestic Park, Minnewaska State Park, Mohonk Preserve, Mohonk Mountain House, Skydive The Ranch, Fine Dining And Quaint Shops. Whether You're A Passionate Rider, A Small Business Owner, Or Simply Looking For Serene Country Living, This Property Delivers It All-space, Functionality, And An Unbeatable Location. Also See Listing #936484 For A Great Business Opportunity.........horse Tack Shop Assets Inventory $130, 000 A 2022 Enclosed Trailer (28 Ft), In Good Condition, Is Also Available For The Right Buyer. This Trailer Is Ideal For Anyone Needing Secure Space For Hauling Inventory, Equipment, Show Supplies, Or Business Materials. Here's Your Chance To Purchase Over $250, 000 For A Fraction Of A Price!
| Location/Town | Gardiner |
| Area/County | Ulster County |
| Prop. Type | Single Family House for Sale |
| Style | Raised Ranch |
| Tax | $11,619.00 |
| Bedrooms | 2 |
| Total Rooms | 9 |
| Total Baths | 3 |
| Full Baths | 3 |
| Year Built | 2010 |
| Basement | Full, Partially Finished, Walk-Out Access |
| Construction | Vinyl Siding |
| Lot SqFt | 203,425 |
| Cooling | Wall/Window Unit(s) |
| Heat Source | Forced Air, Natural |
| Util Incl | Cable Available, Electricity Available, Phone Available |
| Patio | Deck |
| Lot Features | Level |
| Parking Features | Driveway, Garage, Garage Door Opener, Heated Garage, Oversized, Storage |
| Tax Assessed Value | 310000 |
| School District | New Paltz |
| Middle School | New Paltz Middle School |
| Elementary School | Lenape Elementary School |
| High School | New Paltz Senior High School |
| Features | Cathedral ceiling(s), ceiling fan(s), double vanity, formal dining, granite counters, kitchen island, open floorplan, pantry, primary bathroom, soaking tub, storage |
| Listing information courtesy of: RE/MAX Benchmark Realty Group | |