RealtyDepotNY
Cell: 347-219-2037
Fax: 718-896-7020



























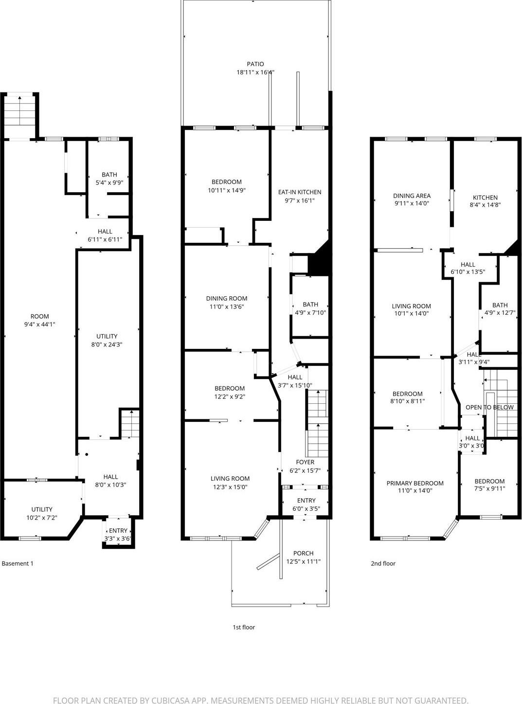
Welcome To This Spacious Semi-attached Two-family Railroad-style Townhouse. Brimming With Potential And Opportunity This Home Offers Versatility For End-users, Investors, Or Those Seeking Multigenerational Living. Features Include A 3-bedroom, 1-bath Unit Over A 2-bedroom, 1-bath Unit. Step Inside To Discover An Abundance Of Space, Classic Architectural Charm, And A Layout Ideal For Customization. With Five Total Bedrooms And Two Full Bathrooms, This Home Provides Room To Grow, Work, And Relax. The Partially Finished Full Basement Is A Standout Feature—complete With Its Own Outside Entrance And An Additional Full Bath. This Flexible Area Is Perfect For A Recreation Room, Home Office, Guest Suite, Or Extra Storage, Making It A Valuable Extension Of The Home’s Living Space. Situated In The Vibrant And Highly Sought-after Glendale Community, This Property Is Conveniently Located Near Shopping, Dining, And Excellent Schools. Everything You Need Is Right At Your Fingertips On A Serene Tree Lined Street. Whether You’re A First-time Homebuyer, Investor, Or Seasoned Renovator, This Home Presents An Ideal Canvas For Your Vision. With Thoughtful Updates And Personal Touches, It Has The Potential To Be Transformed Into A Lucrative Investment Property Or Stunning Residence With Both Immediate And Long-term Value. Don’t Miss This Incredible Opportunity To Reimagine A Classic Glendale Gem. With Its Spacious Layout, Prime Location, And Remarkable Potential, This Two-family Home Is Truly A Diamond In The Rough!
| Location/Town | New York |
| Area/County | Queens |
| Post Office/Postal City | Glendale |
| Prop. Type | Single Family House for Sale |
| Tax | $6,477.00 |
| Bedrooms | 5 |
| Total Baths | 2 |
| Full Baths | 2 |
| Year Built | 1920 |
| Basement | Bilco Door(s), Full, Partially Finished, Storage Space, Walk-Out Access |
| Construction | Brick, Brownstone |
| Total Units | 2 |
| Lot SqFt | 2,000 |
| Cooling | Wall/Window Unit(s) |
| Heat Source | Ducts, Forced Air, N |
| Util Incl | Cable Connected, Electricity Connected, Natural Gas Connected, Phone Available, Sewer Connected, Trash Collection Public |
| Condition | Actual |
| Patio | Patio, Porch, Terrace |
| Days On Market | 5 |
| Window Features | Bay Window(s), Casement, Double Pane Windows, Oversized Windows |
| Parking Features | On Street, Open |
| Tax Assessed Value | 59520 |
| Units | 2 |
| School District | Queens24 |
| Middle School | PS/IS 119 Glendale |
| Elementary School | PS/IS 119 Glendale |
| Features | First floor bedroom, first floor full bath, built-in features, ceiling fan(s), crown molding, eat-in kitchen, entrance foyer, formal dining, original details, washer/dryer hookup |
| Listing information courtesy of: Leesa Byrnes Realty Inc | |