Tel: 718-896-0777
Cell: 347-219-2037
Fax: 718-896-7020













































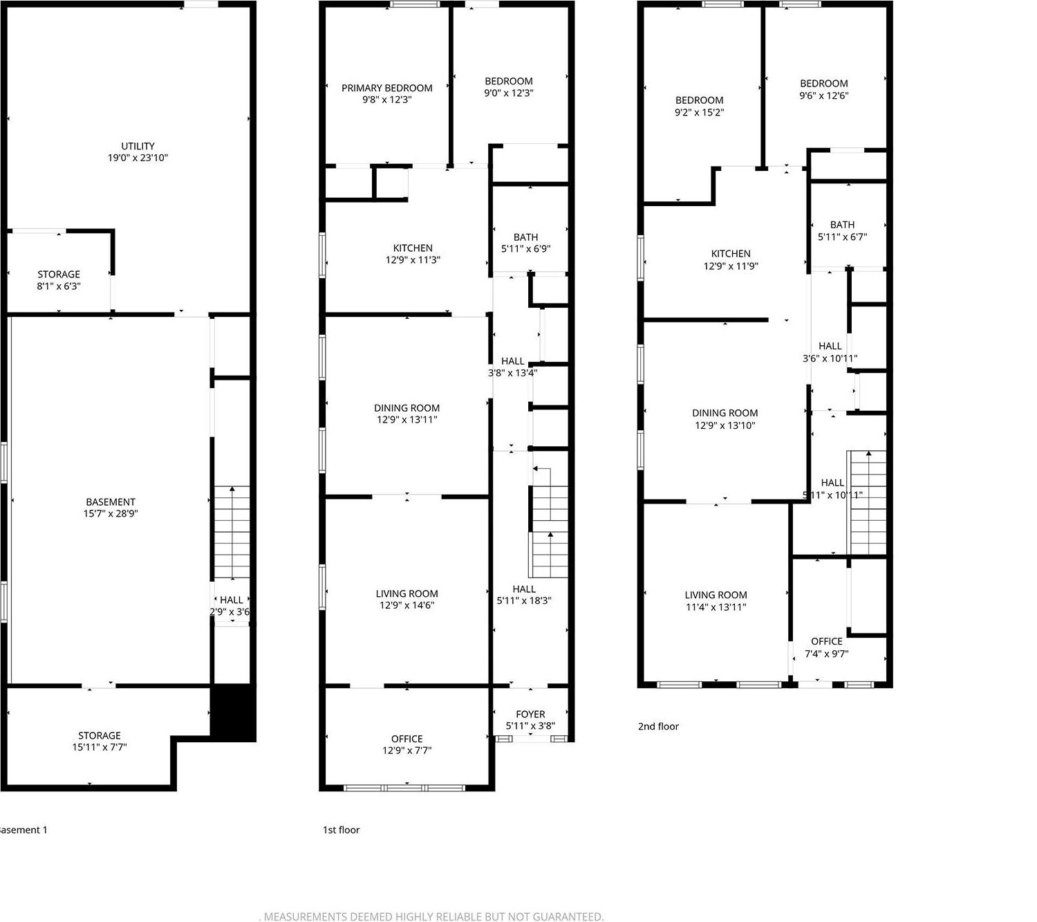
Two-family Home Located On A Quiet Residential Block In Glendale. Property Features A Shared Driveway With Access To A Two-car Garage In The Rear, Offering Valuable Off-street Parking. The Home Offers Two Comfortable Units, Ideal For Owner-occupants Seeking Rental Income Or Investors Looking For A Stable Long-term Opportunity. Conveniently Located Near Shopping, Dining, Parks, And Public Transportation With Easy Access Throughout Queens And Into Manhattan.
| Location/Town | New York |
| Area/County | Queens |
| Post Office/Postal City | Glendale |
| Prop. Type | Single Family House for Sale |
| Tax | $8,137.00 |
| Bedrooms | 5 |
| Total Baths | 2 |
| Full Baths | 2 |
| Year Built | 1920 |
| Basement | Unfinished |
| Construction | Frame |
| Total Units | 2 |
| Lot SqFt | 2,422 |
| Cooling | Wall/Window Unit(s) |
| Heat Source | Radiant |
| Util Incl | Electricity Connected, Natural Gas Connected |
| Days On Market | 53 |
| Parking Features | Driveway |
| Tax Assessed Value | 57600 |
| Units | 2 |
| School District | Queens24 |
| Features | High ceilings |
| Listing information courtesy of: Keller Williams Legendary | |