Tel: 718-896-0777
Cell: 347-219-2037
Fax: 718-896-7020












































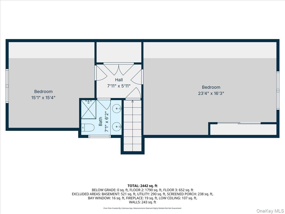
Welcome To 346 Ridgefield Road In Hauppauge, Ny! This Charming Home Offers Nearly 2, 700 Square Feet Of Inviting Living Space, Featuring Four Bedrooms And Three Full Baths. The Large, Sunlit Kitchen Is Perfect For Everyday Cooking And Entertaining. Relax In The Beautiful Sunroom, A Perfect Spot To Enjoy The Changing Seasons. The Expansive Backyard Includes A Sparkling Inground Pool With A Newer Liner, Set On A Flat Lot That Backs Onto A Peaceful Green Belt. Inside, You’ll Find A Spacious Den With A Cozy Fireplace, Converted From A Second Garage, While Still Offering A Convenient One-car Garage. This Delightful Property Is Ready To Be Your New Haven Of Comfort And Relaxation!
| Location/Town | Islip |
| Area/County | Suffolk County |
| Post Office/Postal City | Hauppauge |
| Prop. Type | Single Family House for Sale |
| Style | Exp Ranch |
| Tax | $14,044.00 |
| Bedrooms | 4 |
| Total Rooms | 9 |
| Total Baths | 3 |
| Full Baths | 3 |
| Year Built | 1964 |
| Basement | Partial, Unfinished |
| Lot SqFt | 21,344 |
| Cooling | Air Purification System, Central Ai |
| Heat Source | Oil |
| Util Incl | Cable Available, Electricity Connected, Phone Connected |
| Days On Market | 3 |
| Parking Features | Driveway, Garage |
| Tax Assessed Value | 60000 |
| School District | Hauppauge |
| Middle School | Hauppauge Middle School |
| Elementary School | Bretton Woods Elementary Schoo |
| High School | Hauppauge High School |
| Features | Eat-in kitchen, entrance foyer, primary bathroom, master downstairs, recessed lighting |
| Listing information courtesy of: Compass Greater NY LLC | |