RealtyDepotNY
Cell: 347-219-2037
Fax: 718-896-7020




























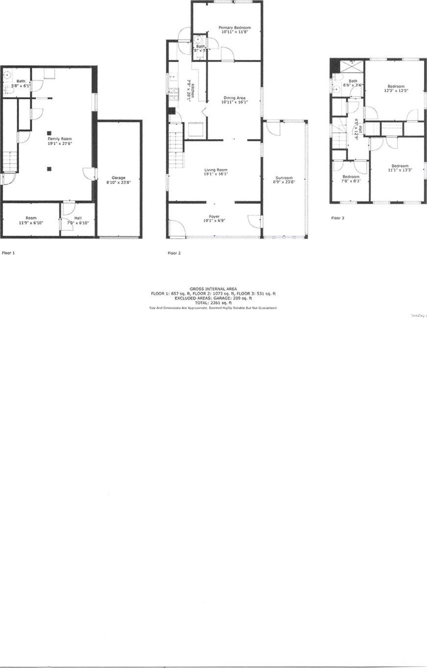
Step Into A Beautiful Detached 4br, 2.5 Bath Colonial In The Heart Of Ultra-desirable Holliswood, Perfectly Positioned Within The Prestigious School District 26. A Rare Holliswood Opportunity — The One Everyone Will Want, But Only One Can Have. Homes In This Neighborhood Are Scarce To Begin With — But A Property Offering This Level Of Location, Size, And Future Potential Is Almost Never Available. Important Update: Earlier Information About The Lot And Building Size Was Incorrect. This Home Sits On A 55 X120 (5, 390 Sq Ft) Lot With An Existing 2, 261 Sq Ft Interior Floor Area. Also With A .6 Far, You Can Expand Up To A 3, 234 Sq Ft Interior Home — A Tremendous Advantage In One Of Queens’ Most Sought-after Enclaves. Opportunities Like This Simply Do Not Come Around Often. Inside, The First Floor Opens With A Grand Foyer, Leading To A Lovely Living Room, Formal Dining Room, Eat-in Kitchen, Sunroom, Bedroom, And Full Bath — A Layout That Delivers Both Comfort And Flexibility. Upstairs, A Long Landing Introduces Three Generous Bedrooms And Full Bath. The Huge Finished Walk-out Lower Level With Its Full Bath Offers Endless Possibilities — Recreation, Guest Space, Home Office, Gym, Or Multi-generational Living. The Property Also Features A One-car Garage, A Long Driveway Accommodating Several Vehicles, A Free-standing Storage Shed, And An Attic With The Potential To Be Transformed Into An Impressive Additional Living Area. The Ability To Create Even More Usable Space Makes This Home An Exceptional Long-term Investment. There Is Beautiful Wood Flooring Throughout This Beautiful Home. Set On A Picturesque Tree-lined Street, You’re Just Moments From Houses Of Worship, Transportation, And Shopping — The Perfect Blend Of Peace, Convenience, And Community. Homes Like This — With Expansion Potential, A Prime Holliswood Address, And Top-tier District 26 Schools — Are The Ones Buyers Wait Years For. They Rarely Hit The Market, And When They Do, They Never Last. If You’ve Been Searching For The Right Holliswood Home, This Is The One You Cannot Afford To Miss.
| Location/Town | New York |
| Area/County | Queens |
| Post Office/Postal City | Hollis |
| Prop. Type | Single Family House for Sale |
| Style | Colonial |
| Tax | $8,480.00 |
| Bedrooms | 4 |
| Total Rooms | 12 |
| Total Baths | 3 |
| Full Baths | 2 |
| 3/4 Baths | 1 |
| Year Built | 1925 |
| Basement | Finished, Full, Storage Space, Walk-Out Access |
| Construction | Brick, Vinyl Siding |
| Lot Size | 55x120 |
| Lot SqFt | 5,390 |
| Cooling | Wall/Window Unit(s) |
| Heat Source | Baseboard, Hot Water |
| Util Incl | None |
| Days On Market | 1 |
| Lot Features | Back Yard, Front Yard |
| Parking Features | Driveway, Garage, Private |
| Tax Assessed Value | 58980 |
| School District | Queens 26 |
| Middle School | Jhs 216 George J Ryan |
| Elementary School | Ps/Is 178 Holliswood |
| High School | Benjamin N Cardozo High School |
| Features | First floor bedroom, eat-in kitchen, entrance foyer, formal dining, washer/dryer hookup |
| Listing information courtesy of: Exit Realty First Choice | |