RealtyDepotNY
Cell: 347-219-2037
Fax: 718-896-7020












































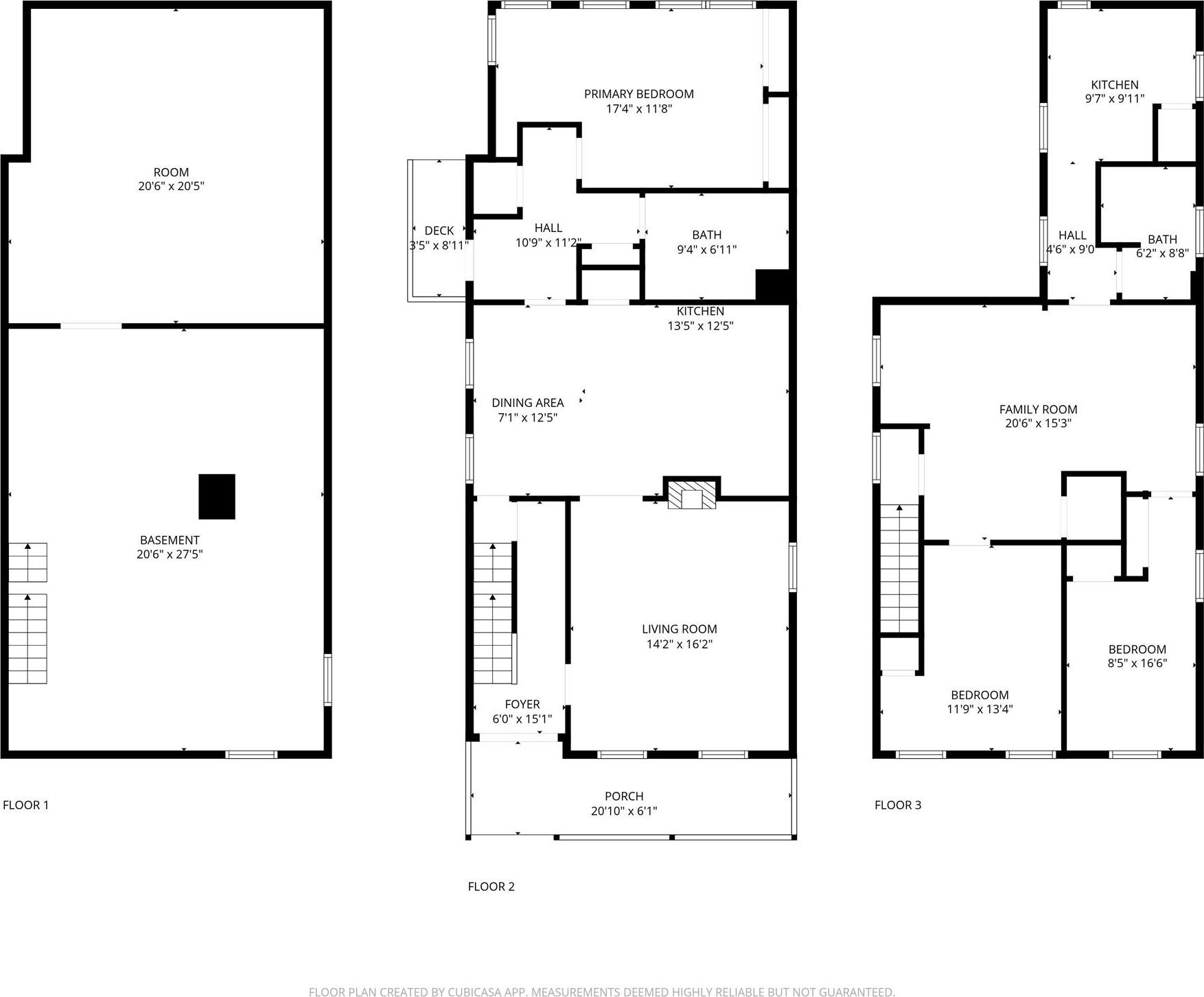
Welcome To Fritts Crawford House, A Beautifully Updated Circa 1890 Victorian Two-family Home Just Steps From Hudson’s Vibrant Upper Warren Street. This 2, 058-square-foot Property Offers Three Bedrooms, Two Full Bathrooms, And Rare Off-street Parking For Up To Five Cars. Original Tin Ceilings And Pine Floors Preserve The Home’s Historic Character, And A Host Of Recent Upgrades, Including A New Roof, Updated Windows, And Extensive Structural And Mechanical Improvements Ensure Peace Of Mind For Years To Come. The First-floor One-bedroom Residence Features A Newly Renovated Bathroom With Marble Floors And A Deep Soaking Tub, And In-unit Washer/dryer. The Eat-in Kitchen Is A Showstopper With Quartz Countertops And Top-of-the-line Stainless-steel Appliances, Opening To A Refined Living Room With An Elegant Decorative Mantle And Oversized Windows That Fill The Space With Light. Upstairs, An Inviting Two-bedroom Apartment Features Wide Plank Wood Floors, A Sun-drenched Kitchen With Butcher Block Counters, A Bosch Dishwasher, And A Newly Finished Bathroom With Extra-deep Soaking Tub And High-end Delta Fixtures. Every Detail Has Been Refreshed, From New Paint And Lighting To Updated Plumbing, Electrical, And A Separate Central Air And Furnace System. Outside, Enjoy A Rocking Chair Front Porch And A Fenced Backyard With A Raised Deck, Garden Beds, And Mature Maple Tree. Located On A Quiet, Friendly Block, The Home Is An Easy Stroll To Galleries, Shops, And Restaurants Along Upper Warren Street. Walk To Café Mutton For Morning Coffee, Grab Fresh Produce At The Hudson Farmers’ Market, Or Enjoy Dinner At Rivertown Lodge Without Needing A Car. With Two Fully Updated Units, Off-street Parking, And A Prime Downtown Location, Fritts Crawford House Offers A Combination Of Immediate Income Potential, Historic Charm, And Effortless Hudson Living.
| Location/Town | Hudson |
| Area/County | Columbia County |
| Prop. Type | Single Family House for Sale |
| Style | Victorian |
| Tax | $15,471.00 |
| Bedrooms | 3 |
| Total Baths | 2 |
| Full Baths | 2 |
| Year Built | 1890 |
| Basement | Unfinished |
| Construction | Brick, Frame, Wood Siding |
| Total Units | 2 |
| Lot SqFt | 4,792 |
| Cooling | Central Air |
| Heat Source | Forced Air, Natural |
| Util Incl | Electricity Connected |
| Patio | Deck, Porch |
| Days On Market | 24 |
| Lot Features | Historic District, Landscaped, Level |
| Parking Features | Driveway, Off Street, Private |
| Tax Assessed Value | 611800 |
| Units | 2 |
| School District | Hudson Falls |
| Middle School | Hudson Falls Middle School |
| Elementary School | Hudson Falls Intermediate Scho |
| High School | Hudson Falls High School |
| Features | First floor bedroom, first floor full bath, entrance foyer, high speed internet, natural woodwork |
| Listing information courtesy of: Houlihan Lawrence, Inc | |