RealtyDepotNY
Cell: 347-219-2037
Fax: 718-896-7020











































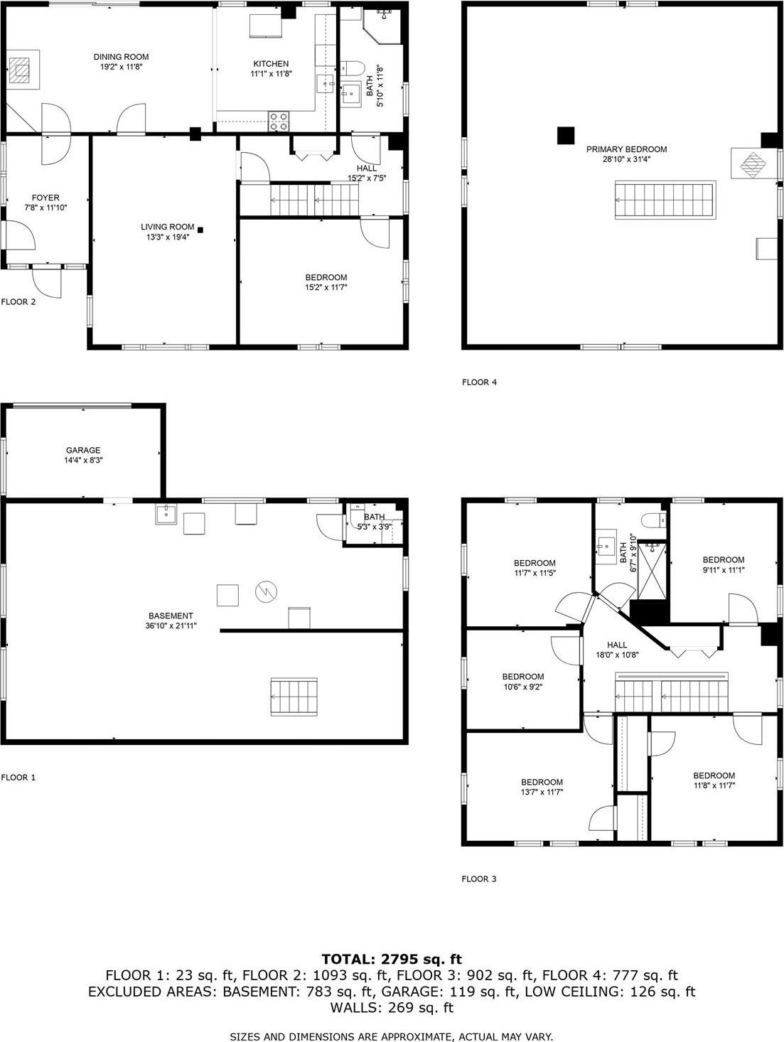
Investment Property Or Weekender Refuge Along The Peaceful Schoharie Creek In The Town Of Hunter! This Traditional Three-level Home Is A Rare Find—solid, Stately, And Built To Last. Meticulously Maintained Throughout The Years, It Offers Timeless Charm In A Truly Remarkable Setting. Superb For Entertaining, With Sweeping Mountain Views That Are Sure To Impress. Step Inside To A Spacious Mudroom, The Ideal Catch-all For Gear After A Day Of Adventure. From Here, Enter The Heart Of The Home—the Kitchen—featuring Gleaming Granite Countertops, Stainless Steel Appliances, And A Cozy Pellet Stove. This Open And Inviting Space Is Ideal For Both Cooking And Conversation. Sip Your Morning Coffee As You Watch Skiers Carve Down The Backside Of Hunter Mountain. This Home Offers No Shortage Of Bedrooms—five On The Second Floor Plus One On The Main Level, Each Floor Complete With A Full Bath For Convenience. The True Standout Is The Finished, Heated Attic, Offering Nearly 1, 000 Square Feet Of Versatile Living Space! Whether Used As A Private Haven, A Recreational Area, Or Simply A Place To Unwind, It's The Ultimate Escape After A Long Day. Your Guests Will Feel Like They've Found Their Own Private Paradise With A Dedicated Lodging Space. The Open-concept Design Paired With Rustic Charm Creates A Warm And Welcoming Retreat, Complete With Its Own Kitchen Area And Full Bath. Step Outside To A Private Covered Deck Overlooking The Creek—the Sweetest Spot For Dining And Relaxation. Enjoy Plenty Of Off-street Parking, With Additional Spaces Available Out Front. The Property Features A Two-car Garage Beside The Home, Plus Another In The Back That Doubles As A Workshop—great For Projects Or Extra Storage. Public Water And Sewer Provide Serviceability And Peace Of Mind. This Location Can't Be Beat! Perfectly Situated Between Phoenicia And Windham, There's Something To Enjoy In Every Season—hiking, Skiing, Biking, Swimming, Golfing, Fishing, And Festivals. At Just 2.5 Hours From Nyc, Plus A Trailways Bus Stop In Town, You're Absolutely Connected While Still Immersed In The Heart Of The Catskills.
| Location/Town | Hunter |
| Area/County | Greene County |
| Prop. Type | Single Family House for Sale |
| Style | Traditional |
| Tax | $4,061.00 |
| Bedrooms | 5 |
| Total Rooms | 9 |
| Total Baths | 4 |
| Full Baths | 3 |
| 3/4 Baths | 1 |
| Year Built | 1904 |
| Basement | Full, Walk-Out Access |
| Construction | Vinyl Siding |
| Lot SqFt | 20,038 |
| Cooling | Wall/Window Unit(s) |
| Heat Source | Electric, Oil, Steam |
| Util Incl | Cable Available |
| Patio | Covered, Deck, Patio |
| Days On Market | 10 |
| Lot Features | Views, Waterfront |
| Tax Lot | 16 |
| School District | Hunter-Tannersville |
| Middle School | Hunter-Tannersville Middle/Hig |
| Elementary School | Hunter Elementary School |
| High School | Hunter-Tannersville Middle/Hig |
| Features | First floor bedroom, first floor full bath, ceiling fan(s), eat-in kitchen, entrance foyer, granite counters, natural woodwork, recessed lighting, storage |
| Listing information courtesy of: Corcoran Country Living | |