RealtyDepotNY
Cell: 347-219-2037
Fax: 718-896-7020






























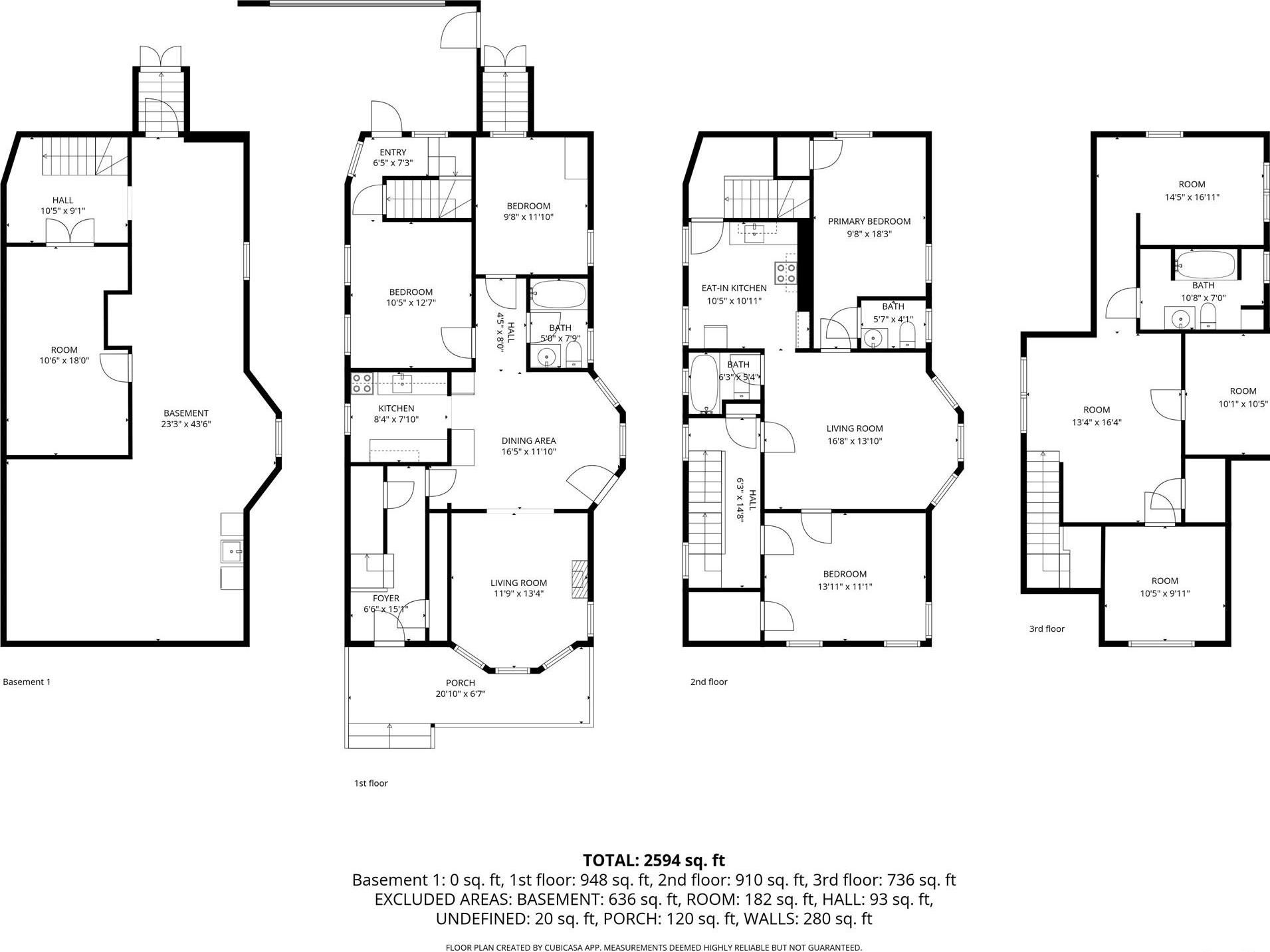
This Classic 1920 Two-family Home In The Heart Of Briarwood Offers A Rare Blend Of Early-century Charm, Exceptional Interior Volume, And An Oversized Lot That Is Increasingly Difficult To Find In Queens. Set On A Generous 50' X 100' Property, The Residence Features A Long Private Driveway That Can Comfortably Accommodate Up To Six Cars, In Addition To A Detached Two-car Garage, Creating An Unmatched Parking And Convenience Profile For The Neighborhood. The First Unit Occupies The Main Level And Features Two Well-proportioned Bedrooms And A Full Bathroom, Along With Warm, Light-filled Living Spaces That Reflect The Craftsmanship And Character Of The Era. The Second Unit Extends Across The Upper Floor, Offering Two Additional Bedrooms And Two Half Baths, Making It Ideal For Multi-generational Living, Rental Income, Guest Accommodations, Or Dedicated Work-from-home Setups. Above It All, A Standout Feature Of The Property Is The Expansive Finished Attic, Thoughtfully Divided Into Multiple Rooms And Offering Tremendous Flexibility—perfect For Recreation, Creative Studios, Storage, Or A Peaceful Retreat Tucked Away From The Main Living Areas. The Home Also Includes A Large Unfinished Basement With Excellent Ceiling Height And A Wide Footprint, Providing Abundant Storage And Significant Potential For Future Customization, Whether As A Workshop, Gym, Media Space, Or Fully Finished Lower Level. Outside, The Deep Lot Offers Room For Gardening, Play Areas, Or Outdoor Entertaining, While The Detached Garage And Extended Driveway Add Everyday Practicality. Located In The Highly Desirable Briarwood Section Of Queens, The Property Sits Moments From Multiple Subway Lines, Bus Routes, And Major Roadways, Offering Quick And Easy Access To Manhattan And The Rest Of New York City. With Its Combination Of Space, Flexibility, Historic Charm, And Unbeatable Commuter Convenience, This Home Represents An Exceptional Opportunity For Both End-users And Investors Seeking A Truly Special Property In One Of Queens’ Most Connected And Welcoming Neighborhoods.
| Location/Town | New York |
| Area/County | Queens |
| Post Office/Postal City | Jamaica |
| Prop. Type | Single Family House for Sale |
| Tax | $8,134.00 |
| Bedrooms | 4 |
| Total Baths | 3 |
| Full Baths | 3 |
| Year Built | 1920 |
| Basement | Unfinished |
| Construction | Aluminum Siding |
| Total Units | 2 |
| Lot SqFt | 5,000 |
| Cooling | None |
| Heat Source | Hot Water, Steam |
| Util Incl | Electricity Connected, Natural Gas Connected, Sewer Connected, Water Connected |
| Days On Market | 4 |
| Parking Features | Detached, Driveway, Garage |
| Tax Assessed Value | 73380 |
| Tax Lot | 40 |
| Units | 2 |
| School District | Queens 28 |
| Middle School | Jhs 217 Robert A Van Wyck |
| Elementary School | Ps 117 J Keld/Briarwood School |
| High School | Hillcrest High School |
| Features | First floor bedroom, first floor full bath, formal dining, high ceilings |
| Listing information courtesy of: Real Estate Brokerage America | |