RealtyDepotNY
Cell: 347-219-2037
Fax: 718-896-7020

















































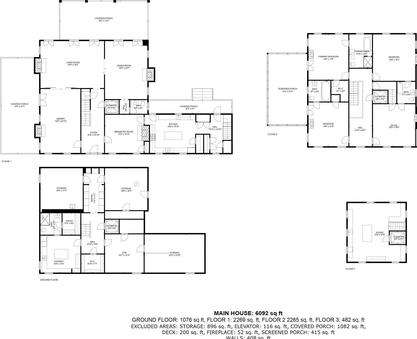
Deep Acres - The Embodiment Of Timeless Elegance And Refined Country Living In An Unparalleled Setting. Nestled In The Rolling Farmland Of Columbia County, In New York's Hudson Valley, Deep Acres Is A Singular Estate Blending The Grace Of An English Country Manor With The Tranquility Of Pastoral Landscapes. Spanning 293-acres Across Six Meticulously Maintained Parcels, The Property Blends Rolling Hayfields With Formal Gardens, Offering Unobstructed Vistas To The Catskill Mountains, Dramatic Sunsets And A Lifestyle Rooted In Beauty, Craftmanship And Serenity. A Tree Lined Drive Leads To The Stately 4, 900 Sf Greek Revival Manor Home Where Classic Architecture Meets Stately Elegance. Adjacent Sits A Heated Three-car Garage Complete With A 1.200 Sf Second Floor Office Apartment And A Spacious Parking Court. Entering The Home, You Will Experience Some Of The Finest Craftmanship, Curated Lighting And Architectural Detailing. The Entrance Foyer, With A Grand Staircase To The Second Floor, Is Flanked By A Mahogany Paneled Library And A Sunlit Breakfast Room. Further, Is The Formal Salon And Dining Room Which Extend Onto A Deep ''southern-style'' Covered Sitting Porch With Views Of The Far-reaching Meadows And Catskill Range Beyond. The Chef's Kitchen Is Designed For Effortless Entertaining While Remaining Intimate Enough For Everyday Living. Just Beyond The Kitchen Is A Service Entrance With Access To A Private One-bedroom Apartment Above. Upstairs, The Primary En-suite Is Joined By Two Additional En-suite Bedrooms And A Richly Paneled Home Office Which Connects To A Third-floor Studio With Panoramic Views. The Finished Lower Level Includes A Gym, A Fully Appointed Laundry, A Second Pantry, A Cedar Lined Walk-in Closet And The Home's Mechanical Systems. Every Floor Is Serviced By An In-home Elevator. Formal Gardens And Secret Gardens Are A Masterclass In Landscape Design And Laid Out To Elicit Curiosity And Showcase The Season's Full Vibrancy Of Color, While The Surrounding Hayfields Offer A Timeless Rural Counterpoint. Cool Off In The Pool Or Dine ''al Fresco'' At The Pool Pavilion - An Historic Barn Transformed Into An Inviting Retreat Complete With Changing Room, Full Bath, Kitchenette And Garden Room. The Second Floor Of This Original Timber Framed Structure Offers Space For One's Future Vision. Nearby, Is The ''head House'' Garden Complex With Gardener's Office, Workroom, Garage And Glass Conservatory, Imported From England - All Supporting The Estate's Fenced In Perennial/vegetable Garden. Further Down A Gravel Lane Is A Private Two-story 2, 900 Sf Guest House/caretaker's Cottage Renovated Into A 3-bedroom, 2-1/2 Bath Home, Perfect For Family Or On-site Management. A Few Of The Property Highlights Include A 35-zone Irrigation System, Landscape Lighting Showcasing The Arboretum Quality Plantings, Multiple Back-up Generators, High Speed Internet And Connectivity And A Property Security System. Deep Acres Is A Rare And Complete Estate, Timeless In Its Design And Masterful In Its Execution. A Hudson Valley Treasure, Ready To Be Experienced.
| Location/Town | Kinderhook |
| Area/County | Columbia County |
| Prop. Type | Single Family House for Sale |
| Style | Other |
| Tax | $59,416.00 |
| Bedrooms | 4 |
| Total Rooms | 20 |
| Total Baths | 6 |
| Full Baths | 5 |
| 3/4 Baths | 1 |
| Year Built | 1858 |
| Basement | None |
| Construction | Frame, Other |
| Cooling | Central Air |
| Heat Source | Oil, Other |
| Util Incl | Cable Connected, Electricity Connected, Propane, See Remarks |
| Features | Garden |
| Pool | In Ground |
| Days On Market | 7 |
| Parking Features | Heated Garage |
| School District | Ichabod Crane (Kinderhook) |
| Middle School | Ichabod Crane Middle School |
| Elementary School | Ichabod Crane Elementary Schoo |
| High School | Ichabod Crane Senior High Scho |
| Features | First floor bedroom, first floor full bath, breakfast bar, built-in features, cathedral ceiling(s), chandelier, crown molding, eat-in kitchen, entrance foyer, formal dining, high ceilings, high speed internet, kitchen island, marble counters, natural woodwork, original details, other, primary bathroom, sauna, walk through kitchen, walk-in closet(s), washer/dryer hookup |
| Listing information courtesy of: Corcoran Country Living | |