RealtyDepotNY
Cell: 347-219-2037
Fax: 718-896-7020
































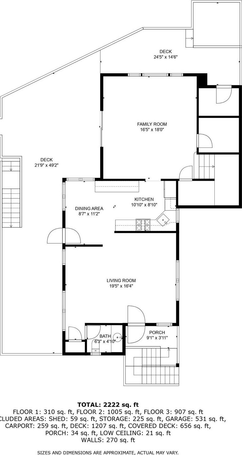
Calling All Boaters, Water Lovers! Location, Location, Location! Beautiful Waterfront Property Located On Strong's Creek Canal In The Venice Of Long Island Section Of Lindenhurst. A Natural Spring Fed Deep Canal That Can Accommodate Large Boats. House Redone In 2012/2013 And Raised 13 Feet With 3 Stories, 2 Wrap Around Decks And An Exterior Elevator That Brings You From The Lower Wooden Deck To The Upper Composite Deck And Main Living Area. The Beautiful Interior Features Magnificent Picture Windows; Bringing In Lots Of Natural Sunlight, Cathedral Ceilings, An Updated Eik With Maple Cabinets, Ss Appliances And Access To The Upper Deck. The Spacious Primary Bedroom Has 2 Picture Windows With Views Of The Canal, 2 Custom Closets And Space For King Sized Furniture And Then Some! The Full Unfinished Basement Adds A Tremendous Amount Of Storage With Sectioned Off Areas, Access To The Outside And Overflow For Parties. The Basement Offers Endless Opportunities With Multiple Means Of Egress And A Work Bench For Those Who Are Handy Or Want To Become Handy! The Leased Solar Panels Provide Energy Savings And Efficiency; There Is A Full House Surge Protector, A Newer Hot Water Heater And New Gas Boiler, New Pipes And Wiring, 2 Updated Electric Panels And 19 Vents Throughout The House To Keep The Flood Insurance Low. The Garage With Soaring Ceilings Fits A 21 Ft Boat With A Trailer. With 50 Feet Of Bulkhead And Views Like No Other, This Fabulous House Is The "just Right" House For Boaters, Entertainers And Just About Anyone Who Loves Nature, Parties And Being On The Water. This House Truly Has It All! Located Within Close Proximity To Schools, Parks, Stores, Restaurants, Places Of Worship And Anything You Need, This House Is Just Waiting For Its Next Home Owners Who Will Love This House As Much As The Current Homeowner's Obviously Do.
| Location/Town | Babylon |
| Area/County | Suffolk County |
| Post Office/Postal City | Lindenhurst |
| Prop. Type | Single Family House for Sale |
| Style | Colonial |
| Tax | $16,926.00 |
| Bedrooms | 3 |
| Total Rooms | 6 |
| Total Baths | 2 |
| Full Baths | 1 |
| 3/4 Baths | 1 |
| Year Built | 1949 |
| Basement | Full, Storage Space, Unfinished, Walk-Out Access |
| Construction | Frame, Stone, Vinyl Siding |
| Lot SqFt | 2,500 |
| Cooling | Wall/Window Unit(s) |
| Heat Source | Baseboard |
| Util Incl | Cable Available, Electricity Available, Electricity Connected, Natural Gas Available, Natural Gas Connected, Sewer Available, Sewer Connected, Water Available, Water Connected |
| Features | Dock, Garden |
| Condition | Updated/Remodeled |
| Patio | Covered, Deck |
| Days On Market | 94 |
| Window Features | Casement, Oversized Windows |
| Parking Features | Driveway, Garage, On Street |
| School District | Lindenhurst |
| Middle School | Lindenhurst Middle School |
| Elementary School | West Gates Avenue School |
| High School | Lindenhurst Senior High School |
| Features | Cathedral ceiling(s), ceiling fan(s), eat-in kitchen, elevator, entrance foyer, formal dining, granite counters, high ceilings, pantry, recessed lighting, storage, walk through kitchen, washer/dryer hookup |
| Listing information courtesy of: Goldilocks Real Estate | |