RealtyDepotNY
Cell: 347-219-2037
Fax: 718-896-7020







































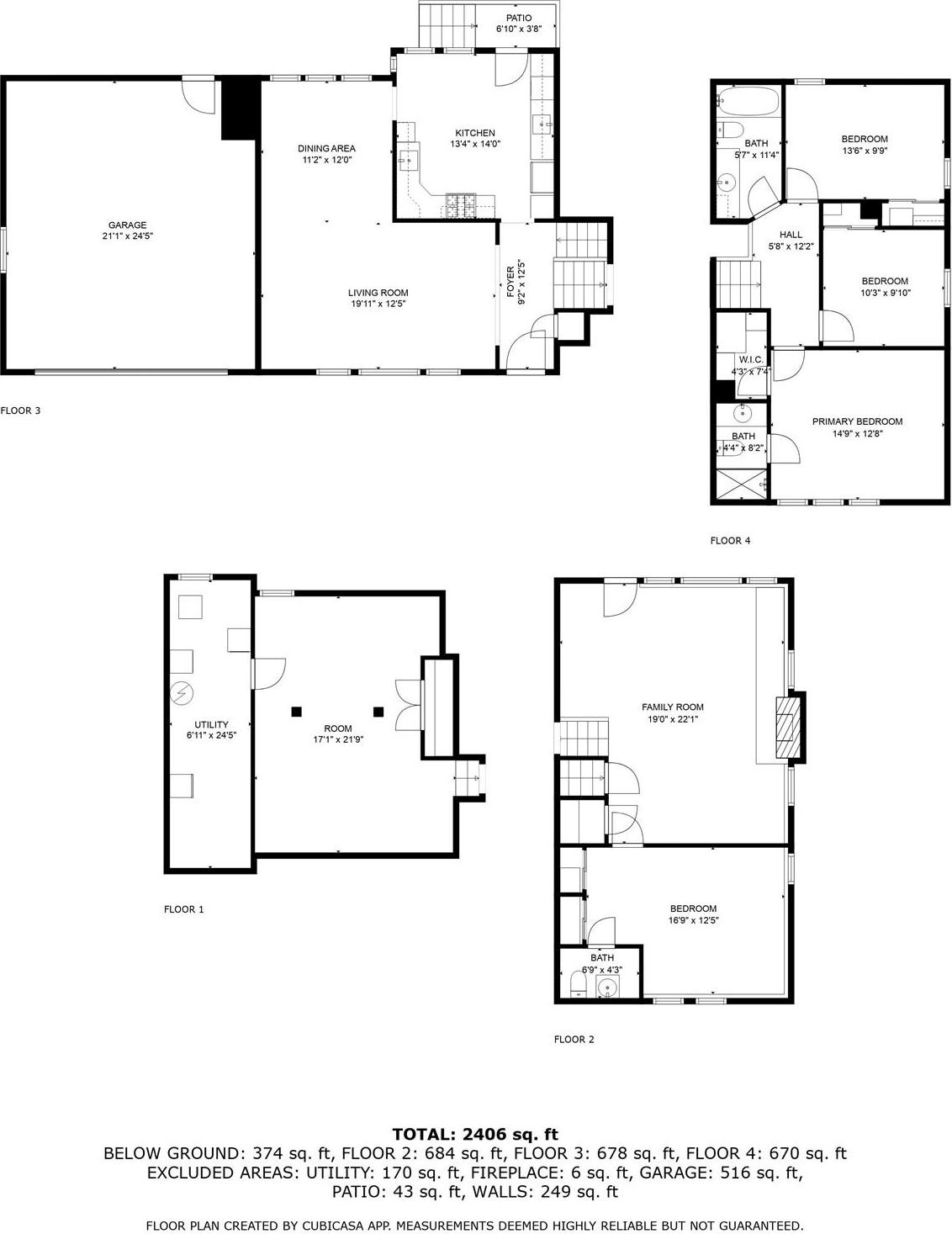
Welcome To Your New Home In The Most Beautiful And Prestigious Neighborhood In Massapequa, Harbor Green. This Huge 4 Bedroom/2.5 Bath Cadillac Split-level Home Features A Magnificent Yard Perfect For Entertaining, With An In-ground Pool With Waterfalls, A Grilling Station And A Bar. Paving Stones All Around The Patio, And The Driveway. Oversized 2 Car Garage. The Kitchen Has High-end Appliances: Gas 6-burner Capital Stove And A Sub-zero Refrigerator. The Family Room Has A Wood Burning Fireplace. There Is A Finished Basement With A Cedar Closet As Well. It's Within Walking Distance To The Exclusive Harbour Green Beach Club. Check Out All Of The Fun Activities They Offer At Https://harbourgreensc.wildapricot.org/
| Location/Town | Oyster Bay |
| Area/County | Nassau County |
| Post Office/Postal City | Massapequa |
| Prop. Type | Single Family House for Sale |
| Style | Split Level |
| Tax | $20,236.00 |
| Bedrooms | 4 |
| Total Rooms | 8 |
| Total Baths | 3 |
| Full Baths | 2 |
| 3/4 Baths | 1 |
| Year Built | 1959 |
| Basement | Finished |
| Construction | Other |
| Lot SqFt | 11,330 |
| Cooling | Central Air |
| Heat Source | Hot Water, Oil |
| Util Incl | Electricity Connected |
| Days On Market | 13 |
| Parking Features | Driveway, Garage, Garage Door Opener |
| Tax Assessed Value | 814 |
| School District | Massapequa |
| Middle School | Berner Middle School |
| Elementary School | Birch Lane Elementary School |
| High School | Massapequa High School |
| Features | Built-in features, marble counters, original details, storage, washer/dryer hookup |
| Listing information courtesy of: Blackstone Realty | |