RealtyDepotNY
Cell: 347-219-2037
Fax: 718-896-7020

























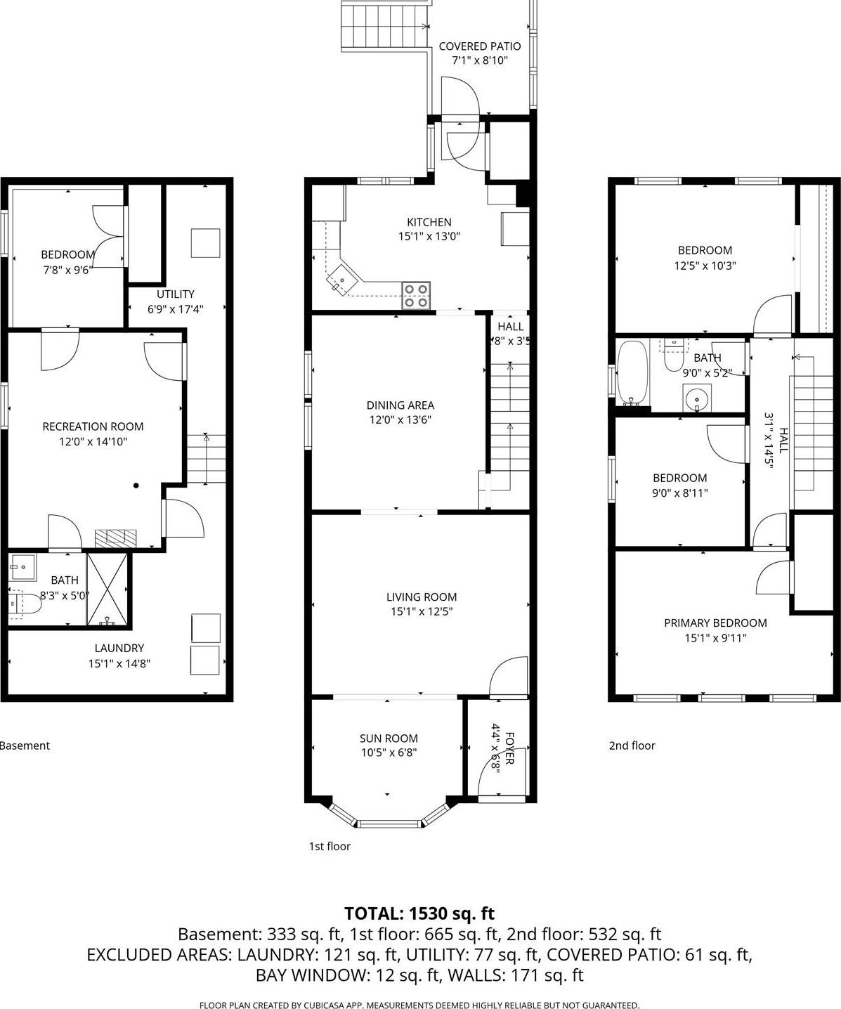
Welcome To This Well-maintained Two-story Semi-detached Single-family Home Located In The Desirable Middle Village Neighborhood Of Queens, Ideally Positioned Between Ridgewood And Maspeth. Set On A 19.17 × 103 Ft Lot, This Inviting Home Offers A Comfortable Layout With Generous Natural Light Throughout. The Main Level Features A Spacious Living Room, Formal Dining Room, And A Bright Eat-in Kitchen Equipped With Newer Lg Appliances, Including Refrigerator, Oven, Microwave, And Dishwasher. The Second Floor Offers Three Well-proportioned Bedrooms And A Full Bathroom, Providing A Practical And Functional Living Arrangement. The Fully Finished Basement Expands The Living Space And Includes A Full Bathroom Along With A Washer And Dryer, Offering Flexibility For Recreation, Gym, Library, Workspace, Or Additional Living Use. A Sunroom At The Rear Of The Home Overlooks A Private Backyard, Creating A Pleasant Space For Relaxation Or Outdoor Gatherings. The Property Also Includes A Shared Driveway. Conveniently Located Near The Shopping And Dining Options Along Metropolitan Avenue And The Nearby Metro Mall, Which Includes Retailers Such As Bj's Wholesale Club, Amazon Distribution Center, Raymour & Flanigan, Burlington, And Puregym, Providing Convenient Access To Shopping And Everyday Services. Outdoor Recreation Is Available At Nearby Juniper Valley Park, Which Offers Sports Fields, Playgrounds, And Green Space. Public Transportation Is Accessible With The Nearby New York City Subway M Train And Multiple Local Bus Routes. Property Highlights Include A Semi-detached Single-family Layout With Three Bedrooms And Two Full Bathrooms, A Fully Finished Basement With Full Bath, Washer And Dryer, An Eat-in Kitchen With Newer Appliances, A Sunroom Overlooking A Private Backyard, Shared Driveway Access, And A 19.17 × 103 Ft Lot. This Is An Excellent Opportunity To Own A Well-cared-for Home In A Convenient And Established Queens Neighborhood.
| Location/Town | New York |
| Area/County | Queens |
| Post Office/Postal City | Middle Village |
| Prop. Type | Single Family House for Sale |
| Style | A-Frame |
| Tax | $4,584.00 |
| Bedrooms | 3 |
| Total Rooms | 7 |
| Total Baths | 2 |
| Full Baths | 2 |
| Year Built | 1920 |
| Basement | Finished, Full |
| Construction | Frame |
| Lot SqFt | 1,975 |
| Cooling | Wall/Window Unit(s) |
| Heat Source | Hot Water, Other |
| Util Incl | Electricity Available |
| Days On Market | 4 |
| Parking Features | Driveway |
| Tax Assessed Value | 47220 |
| School District | Queens24 |
| Middle School | Civic Leadership Academy |
| Elementary School | Ps 153 Maspeth Elementary |
| High School | Grover Cleveland High School |
| Features | Other |
| Listing information courtesy of: Prime America Real Estate Inc | |