RealtyDepotNY
Cell: 347-219-2037
Fax: 718-896-7020
















































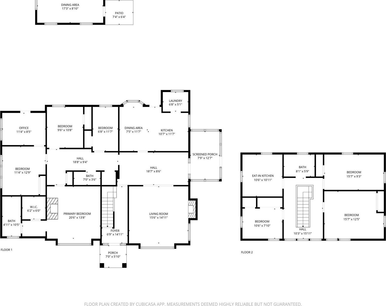
Multi-family Retreat With Pool Great Opportunity To Purchase A Property To Generate Rental Income To Provide Financial Stability And Help Cover Monthly Expenses Also Great For Investors Discover This Beautifully Maintained Multi-family Property Offering A Perfect Blend Of Space, Updates, And Character. The Main Home Features Two Distinct Units. The Lower Level Includes 3 Spacious Bedrooms, 2 Full Baths, A Versatile Den, And A Private Office—ideal For Today’s Work-from-home Lifestyle. The Upper Level Offers 2 Bedrooms, 1 Full Bath, A Bright Living Room, And A Updated Kitchen. In Addition, A Charming Separate Studio Cottage Provides Extra Living Space Or Rental Income Potential. Each Unit Has Been Thoughtfully Updated With Granite Countertops, Tile And Hardwood Floors, And Modern Appliances, All Accented By Warm Woodwork Throughout. Step Outside To Your Private Oasis With An In-ground Pool (with New Cover) Surrounded By Nature For Ultimate Relaxation And Entertaining. This Rare Property Combines Functionality, Investment Opportunity, And Lifestyle—all In One.
| Location/Town | Ramapo |
| Area/County | Rockland County |
| Post Office/Postal City | Monsey |
| Prop. Type | Single Family House for Sale |
| Style | Colonial |
| Tax | $17,020.00 |
| Bedrooms | 5 |
| Total Baths | 4 |
| Full Baths | 4 |
| Year Built | 1875 |
| Basement | Storage Space, Unfinished |
| Construction | Clapboard |
| Total Units | 3 |
| Lot SqFt | 34,848 |
| Cooling | None |
| Heat Source | Baseboard |
| Util Incl | Electricity Connected, Natural Gas Connected, Sewer Connected, Water Connected |
| Pool | Diving Boa |
| Condition | Estimated |
| Patio | Patio |
| Days On Market | 30 |
| Window Features | ENERGY STAR Qualified Windows, Oversized Windows, Skylight(s) |
| Lot Features | Back Yard, Front Yard, Level, Near Public Transit, Near School, Near Shops |
| Parking Features | Detached, Driveway, Oversized |
| Units | 3 |
| School District | East Ramapo (Spring Valley) |
| Middle School | Pomona Middle School |
| Elementary School | Grandview Elementary School |
| High School | Ramapo High School |
| Features | First floor bedroom, first floor full bath, built-in features, eat-in kitchen, entrance foyer, natural woodwork, pantry, primary bathroom, master downstairs, recessed lighting, walk-in closet(s), washer/dryer hookup |
| Listing information courtesy of: Century 21 Full Service Realty | |