RealtyDepotNY
Cell: 347-219-2037
Fax: 718-896-7020






























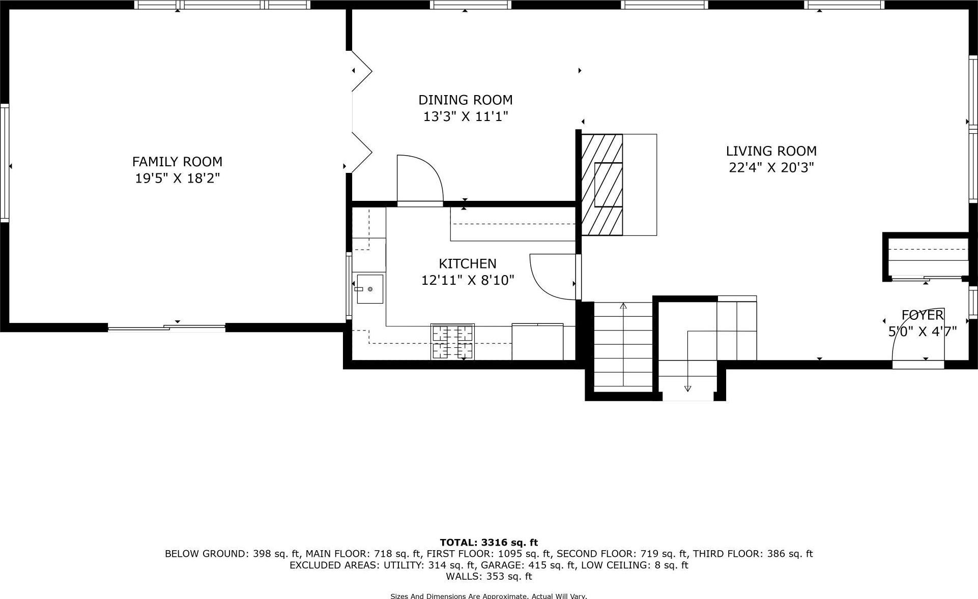
Versatile Living Meets Prime Location! Welcome To 1901 New Hyde Park Road – A Rare And Flexible Opportunity In The Heart Of New Hyde Park. This Unique Split-level Home Seamlessly Blends Residential Comfort With Professional Potential. Formerly A Doctor’s Office On The Main Level, The Layout Has Been Thoughtfully Reimagined To Create An Open, Inviting Space Ideal For Extended Family Living, A Home-based Business, Or A Multi-generational Setup. With 5 Spacious Bedrooms (with The Possibility For More), 2.5 Bathrooms, And Dual Entrances, This Home Offers Privacy And Adaptability. The Finished Basement Provides Bonus Space For Recreation, Office Use, Or Storage, While The Two-car Attached Garage Adds Convenience And Accessibility. 3, 400 Sf On .17 Acres, This Property Is A Standout In Both Form And Function. Whether You're A Professional Seeking A Work-from-home Setup Or A Family In Need Of Space To Grow, This Home Is Ready To Meet Your Needs In Style.
| Location/Town | North Hempstead |
| Area/County | Nassau County |
| Post Office/Postal City | New Hyde Park |
| Prop. Type | Single Family House for Sale |
| Style | Split Level |
| Tax | $18,891.00 |
| Bedrooms | 5 |
| Total Rooms | 14 |
| Total Baths | 3 |
| Full Baths | 2 |
| 3/4 Baths | 1 |
| Year Built | 1955 |
| Basement | Finished |
| Construction | Frame |
| Lot SqFt | 7,500 |
| Cooling | Central Air, Wall/Window Unit(s) |
| Heat Source | Natural Gas |
| Util Incl | Electricity Connected |
| Condition | Updated/Remodeled |
| Days On Market | 100 |
| Parking Features | Attached, Driveway, Garage |
| Tax Assessed Value | 945 |
| Tax Lot | 140 |
| School District | Sewanhaka Central |
| Middle School | New Hyde Park Memorial High Sc |
| Elementary School | New Hyde Park Road School |
| High School | New Hyde Park Memorial High Sc |
| Features | Entrance foyer, formal dining, primary bathroom |
| Listing information courtesy of: Keller Williams Rty Gold Coast | |