RealtyDepotNY
Cell: 347-219-2037
Fax: 718-896-7020





























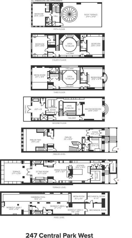
The William Noble House A Luxury Historic Landmark On Central Park West Directly Overlooking Central Park, This Architecturally Significant Residence Is One Of The Last Remaining Single-family Townhouses Along Central Park West. Spanning Over 12, 270 Square Feet Across Six Levels And More Than 22 Feet In Width, The Home Offers Unobstructed, Commanding Views Of The Park From Its Elegant And Symmetrical Queen Anne–style Façade. Upon Entry, A Few Steps Lead To A Grand Foyer, Followed By A Luminous And Expansive Main Living Room. With Soaring Ceilings And Remarkable Volume, The Space Is Crowned By A Dramatic Central Light Dome That Floods Every Floor With Natural Light. Just Below, A Dining Area And Kitchen Offer Generous Proportions For Entertaining. A Terrace On This Level Provides A Tranquil Outdoor Retreat In The Heart Of The City. On The Lower Level, The Residence Features A Nearly 60-foot Indoor Lap Pool And A Dedicated Home Fitness Area, Elevating The Standard Of In-home Wellness Amenities. A Private Elevator Provides Access To All Levels, Including The Second Floor, Which Hosts A Spacious Primary Suite, A Large Dressing Room, And A Private Bathroom With Access To A Second Terrace. The Third Floor Includes A Tiered Media Room And An Additional Guest Bedroom With Generous Proportions. The Fourth Floor Offers Two Large Bedrooms, Both With En-suite Bathrooms. The Top Floor Features A Bright And Airy Bedroom With Wide Windows Offering Open, Unobstructed City Views. A Rooftop Terrace Crowns The Property, Providing Panoramic Vistas Of Central Park. Ideally Located In The Heart Of The Upper West Side, The Property Offers Immediate Access To Central Park, The American Museum Of Natural History, And The Shops, Cafés, And Restaurants Of Columbus Avenue. With A Rich History, 247 Central Park West Has Been Home To Numerous Prominent Figures, Including Celebrated Artists, Influential Politicians, And Notable Families. While The Interiors Have Evolved Over Time, The Home’s Original Exterior Remains Remarkably Preserved — A Lasting Testament To Its Architectural And Historical Significance. Designed In 1887 By Renowned Architect Edward Angell And Commissioned By Visionary Developer William Noble (who Selected The Residence As His Personal Home), The Property Was Completed In 1889 As Part Of A Prestigious Row Of Nine Townhouses — Of Which Only Three Remain Today. This Is A Rare Opportunity To Acquire A True Landmark Townhouse In One Of Manhattan’s Most Iconic And Sought-after Locations.
| Location/Town | New York |
| Area/County | Manhattan |
| Post Office/Postal City | New York (Manhattan) |
| Prop. Type | Single Family House for Sale |
| Tax | $82,120.00 |
| Bedrooms | 5 |
| Total Rooms | 11 |
| Total Baths | 8 |
| Full Baths | 6 |
| 3/4 Baths | 2 |
| Year Built | 1900 |
| Construction | Other |
| Lot SqFt | 2,217 |
| Cooling | None |
| Heat Source | Other |
| Util Incl | None |
| Days On Market | 15 |
| Features | Elevator, entrance foyer, galley type kitchen, high ceilings, kitchen island, open kitchen |
| Listing information courtesy of: Barnes New York | |