RealtyDepotNY
Cell: 347-219-2037
Fax: 718-896-7020


















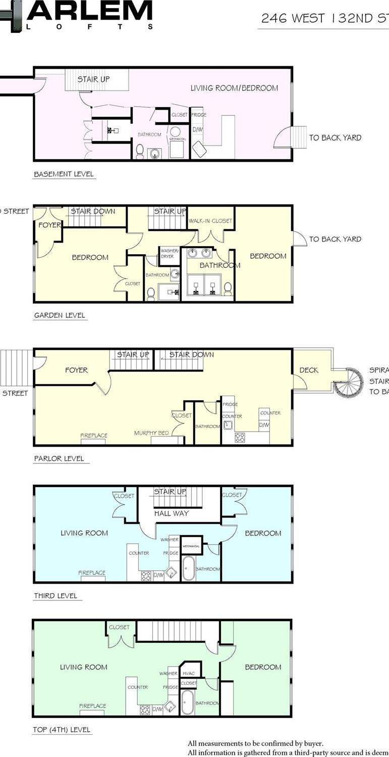
Attractively Located Adjacent To The Central Harlem West Historic District, This Elegant Neo-grec Legal Three-family Brownstone Townhouse With An Additional Owner's Basement Apartment Was Built In 1910 And Fully Renovated In 2005. Rents Are At Full Market Value, With The Rent Roll Currently At $135, 500, And The Property Has Potential For Excellent Cash On Cash Return For An Investor. The House Is Divided Into A Two-bedroom Garden Duplex With Access To The Planted Back Yard (with Shed) From Both Levels, And Two Charming One-bedroom Floor-through Rental Apartments. There Is Also A Basement Owner's Apartment With Back Yard Access, For A Total Of 4, 860 Square Feet Including The Finished Basement. Features Of The Property: Owner’s Duplex • Spacious Luxury 2-bedroom Garden Duplex Features Exposed Brick, Hardwood Floors, High Ceilings And Large Windows For Lots Of Natural Light, Extra Storage And Closets, And A Large Murphy Bed For Guests. • The Open Kitchen Has A Dishwasher And Granite Counters, And Access To The Private Deck With Staircase To The Sunny, Peaceful Back Yard • The Bathrooms Are Fully Tiled, With Rain Shower. • The Duplex Also Features Its Own Washer And Dryer, Central Hvac, And Recessed Led Lighting Two One-bedroom Apartments • The Two Loft-like One-bedroom, One-bathroom Floor-through Apartments On The Upper Two Floors Of The House Also Feature Exposed Brick, Hardwood Floors, Central Hvac And Lots Of Natural Light. • Both Have Open Kitchens With Dishwasher And Granite Counters, And The Bathrooms Are Fully Tiled With Bathtubs. • Both Apartments Also Feature In-unit Laundry And Recessed Led Lighting. Owner's Apartment • The Property Also Has A Charming Basement Owner's Studio Apartment, Perfect For A Pied-a-terre. • The Owner's Apartment Has A Full Bathroom And Kitchenette, Beautiful Finishes, Windows, And Access To The Back Yard. Neighborhood • This Lovely Townhouse Property Is Just A Few Steps From Harlem’s Restaurant Row And Shopping On 125th Street. • Conveniently Close To Transportation Options Including The 2/3 And B/c Subway Lines And The M2, M7 And M101 Bus Lines. • For Recreation, The Property Is Located Between Mount Morris Park And Morningside Park. This Property Will Be Delivered Vacant With All Paperwork Provided. Please Call Today For More Information And Your Private Showing!
| Location/Town | New York |
| Area/County | Manhattan |
| Post Office/Postal City | New York (Manhattan) |
| Prop. Type | Single Family House for Sale |
| Tax | $14,177.00 |
| Bedrooms | 5 |
| Total Baths | 5 |
| Full Baths | 5 |
| Year Built | 1910 |
| Basement | Finished, Full, Walk-Out Access |
| Construction | Brownstone |
| Total Units | 3 |
| Lot SqFt | 1,800 |
| Cooling | Central Air |
| Heat Source | Forced Air, Natural |
| Util Incl | Cable Connected, Electricity Connected, Natural Gas Connected, Phone Connected, Sewer Connected, Trash Collection Public, Water Connected |
| Days On Market | 20 |
| Window Features | Double Pane Windows |
| Parking Features | Open |
| Tax Assessed Value | 166620 |
| Units | 3 |
| Features | First floor bedroom, first floor full bath, breakfast bar, chefs kitchen, double vanity, entrance foyer, formal dining, granite counters, high ceilings, high speed internet, natural woodwork, open floorplan, open kitchen, primary bathroom, master downstairs, quartz/quartzite counters, recessed lighting, soaking tub, storage |
| Listing information courtesy of: Harlem Lofts Inc. | |